Gatineau (Hull)
Description de la propriété
Située dans le secteur recherché du Manoir-des-Trembles, cette propriété familiale se distingue par son architecture unique et son emplacement privilégié sur un grand terrain sans voisin arrière, dans une rue paisible en cul-de-sac. Vous tomberez sous le charme de sa cuisine entièrement rénovée, de son foyer au bois et de ses espaces lumineux parfaits pour la vie de famille. Elle offre 4 chambres, un bureau, 2 salles de bains complètes, 1 salle d'eau et un grand garage double. À proximité d'Ottawa et de tous les services essentiels. Venez visiter dès maintenant!
Détails
Proximité
Golf, Hôpital, Transport en commun, Université, Piste cyclable, Garderie/CPE
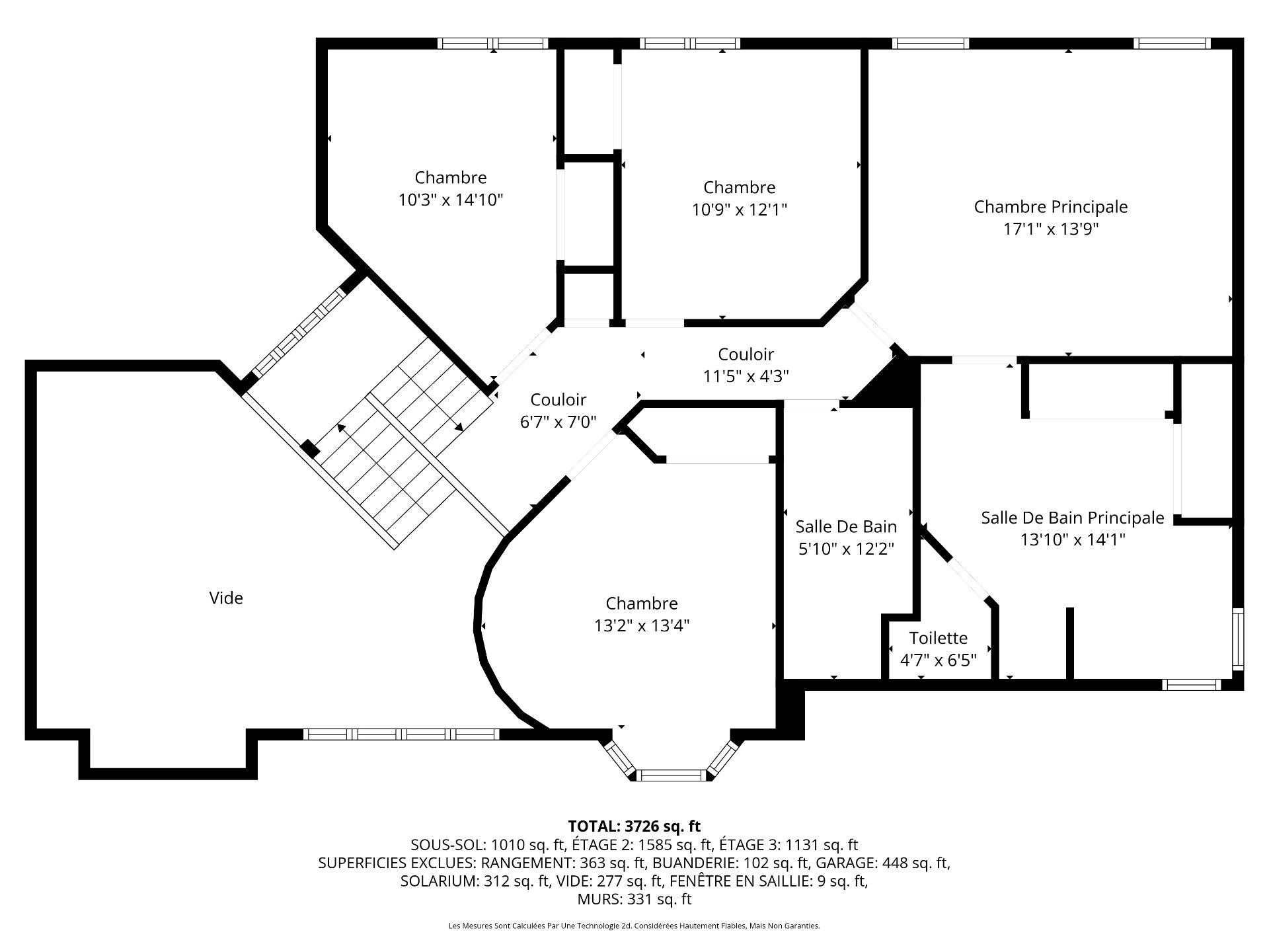
Dimension des pièces
| Pièce | Niveau | Dimensions | Couvre plancher |
|---|---|---|---|
| Hall d'entrée | 1er niveau/RDC | 6.11x9.5 P | Céramique |
| Boudoir | 1er niveau/RDC | 12.10x17.9 P | Bois |
| Salle à manger | 1er niveau/RDC | 12.9x13.2 P | Bois |
| Cuisine | 1er niveau/RDC | 11.6x13.8 P | Bois |
| Coin repas | 1er niveau/RDC | 8.9x11.1 P | Bois |
| Salon | 1er niveau/RDC | 19.9x18.0 P | Bois |
| Bureau à domicile | 1er niveau/RDC | 14.5x12.6 P | Bois |
| Salle d'eau | 1er niveau/RDC | 5.7x6.10 P | Céramique |
| Salle de lavage | 1er niveau/RDC | 5.1x6.8 P | Céramique |
| Solarium | 1er niveau/RDC | 25.7x11.10 P | Plancher flottant |
| Chambre à coucher principale | 2ième étage | 16.1x13.9 P | Tapis |
| Salle de bains | 2ième étage | 12.9x12.10 P | Céramique |
| Chambre à coucher | 2ième étage | 12.6x10.10 P | Tapis |
| Chambre à coucher | 2ième étage | 10.9x12.10 P | Tapis |
| Chambre à coucher | 2ième étage | 10.9x12.1 P | Tapis |
| Salle de bains | 2ième étage | 5.10x11.11 P | Céramique |
| Salle familiale | Sous-sol | 38.7x33.1 P | Couvre-sol souple |
| Atelier | Sous-sol | 19.7x6.4 P | Couvre-sol souple |
| Rangement | Sous-sol | 10.4x10.2 P | Béton |
| Rangement | Sous-sol | 13.5x28.0 P | Couvre-sol souple |
Taxes et dépenses
| Taxes scolaires | 1 102 $ |
| Taxes municipales | 5 748 $ |
| Coût d'énergie | 2 605 $ |
Bâtiment et intérieur de la propriété
| Chambres | 4 |
| Salles de bain | 2 |
| Salles d'eau | 1 |
| Nombre de pièces | 20 |
| Nombre de chambres hors sol | 4 |
| Aire habitable | 2740 PC |
| Délai d'occupation prévu | 60 jours |
| Éléments inclus lors de la vente | Fournaise, réservoir d'eau chaude, lave-vaisselle, cuisinière, laveuse et sécheuse, réfrigérateur, échangeur d'air et thermopompe. |
| Dimension de la façade du bâtiment | 14.7 M |
| Dimension de la profondeur du bâtiment | 16.7 M |
| Superficie du terrain | 1179.4 MC |
| Dimension de la façade du terrain | 11.08 M |
| Dimension de la profondeur du terrain | 106.44 M |
| Année de construction | 1990 |
| Évaluation municipale (terrain) | 340 100 $ |
| Évaluation municipale (bâtiment) | 363 000 $ |
| Évaluation municipale (total) | 703 100 $ |
| Année d'évaluation | 2022 |
| Bâtiment irrégulier | Oui |
| Terrain irrégulier | Oui |
| Allée | Double largeur ou plus, Pavé uni |
| Armoires | Stratifié |
| Mode de chauffage | Air soufflé |
| Approvisionnement en eau | Municipalité |
| Énergie pour le chauffage | Électricité |
| Équipement disponible | Climatiseur central, Porte de garage électrique, Échangeur d'air |
| Fondation | Béton coulé |
| Foyers-poêles | Foyer au bois |
| Garage | Double largeur ou plus, Intégré |
| Revêtements | Brique, Vinyle |
| Particularités | Aucun voisin à l'arrière, Cul-de-sac, Boisé |
| Salle de bains/salle d'eau | Attenante à la chambre principale, Douche indépendante |
| Sous-sol | 6 pieds et plus, Partiellement aménagé |
| Stationnement | Extérieur, Au garage |
| Système d'égouts | Municipal |
| Toiture | Bardeaux d'asphalte |
| Topographie | Plat |
| Vue | Autre |
| Zonage | Résidentiel |
Addendas
| Découvrez cette impressionnante propriété située dans le |
| secteur recherché du Manoir-des-Trembles, un emplacement |
| prisé de Gatineau reconnu pour sa tranquillité, sa verdure |
| et sa proximité avec Ottawa. Dès votre arrivée, |
| l'architecture distinctive et les grandes fenêtres |
| cathédrales de cette demeure dégagent une élégance rare et |
| intemporelle. |
| L'intérieur vous accueille avec un espace de vie |
| spectaculaire à aire ouverte, baigné de lumière naturelle |
| grâce à son plafond cathédrale et sa fenestration |
| surdimensionnée. Les planchers de bois franc et les lignes |
| architecturales uniques créent une ambiance à la fois |
| chaleureuse et grandiose. |
| La cuisine rénovée plaira à coup sûr aux amateurs de |
| gastronomie : armoires blanches pleine hauteur, dosseret au |
| design contemporain, comptoirs impeccables et un grand îlot |
| central offrant un espace convivial pour cuisiner et |
| recevoir. Le coin repas, adjacent à la cuisine, s'ouvre sur |
| la cour arrière, facilitant les repas en famille ou les |
| soupers d'été sur la terrasse. |
| Le rez-de-chaussée comprend également un salon spacieux, |
| une salle à manger élégante, un bureau fermé idéal pour le |
| télétravail ainsi qu'une salle d'eau pratique. L'agencement |
| a été conçu pour offrir confort et fluidité dans la vie |
| quotidienne. |
| À l'étage, la suite des maîtres est tout simplement |
| remarquable : vaste chambre à coucher, salle de bains |
| attenante avec bain podium, douche indépendante et double |
| lavabo. Trois autres chambres bien proportionnées et une |
| deuxième salle de bains complètent cet étage, parfait pour |
| une grande famille. |
| Le sous-sol entièrement aménagé offre un immense espace |
| multifonction : grande salle familiale, atelier et espace |
| de rangement généreux, parfait pour les loisirs, le cinéma |
| maison ou une salle d'entraînement. |
| À l'extérieur, la propriété se démarque par son grand |
| terrain bordé d'arbres matures et son intimité absolue -- |
| aucun voisin à l'arrière! Le solarium 4 saisons et la vaste |
| terrasse permettent de profiter pleinement du cadre naturel |
| tout au long de l'année. C'est un véritable havre de paix |
| où la nature s'invite à la maison. |
| Le garage double ajoute au confort avec un espace généreux |
| pour véhicules et rangement. |
| Située à quelques minutes du centre-ville de Gatineau et |
| d'Ottawa, près des écoles, parcs, pistes cyclables et tous |
| les services essentiels, cette propriété combine à |
| merveille emplacement, espace et élégance. |
| Une maison entretenue avec soin, au design incomparable, |
| dans un environnement paisible et verdoyant. Elle saura |
| combler les besoins des familles exigeantes en quête de |
| confort, de luminosité et de tranquillité. |
| Venez découvrir tout ce qu'elle a à offrir -- une |
| opportunité rare dans l'un des secteurs les plus convoités |
| de Gatineau! |



















































