Longueuil (Saint-Hubert)
Description de la propriété
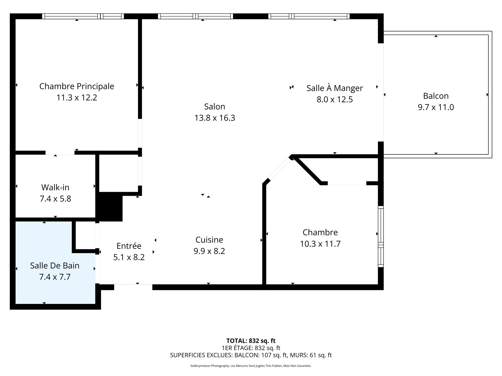
Situé dans un secteur paisible et recherché, ce condo moderne offre un espace lumineux à aire ouverte, une incroyable cuisine avec comptoirs en quartz, deux chambres confortables dont une avec walk-in, une salle de bain élégante et une buanderie discrète. Profitez d'un balcon couvert sous pergola pour vos moments de détente. Construction récente, bien entretenue, avec stationnement inclus et possibilité d'ajouter un espace supplémentaire ainsi qu'un cabanon. À proximité des services, parcs, écoles et axes routiers.
Détails
Proximité
Autoroute/Voie rapide, Cegep, Golf, Hôpital, Parc-espace vert, École primaire, École secondaire, Université, Piste cyclable, Ski alpin, Ski de fond, Garderie/CPE
Taxes et dépenses
| Taxes scolaires | 216 $ |
| Taxes municipales | 2 375 $ |
| Frais de copropriété | 1 908 $ |
Bâtiment et intérieur de la propriété
| Frais de copropriété | 1 908 $ |
| Chambres | 2 |
| Salles de bain | 1 |
| Nombre de pièces | 8 |
| Nombre de chambres hors sol | 2 |
| Aire habitable | 819 PC |
| Délai d'occupation prévu | 30 jours |
| Superficie du terrain | 76 MC |
| Année de construction | 2020 |
| Évaluation municipale (terrain) | 38 400 $ |
| Évaluation municipale (bâtiment) | 314 600 $ |
| Évaluation municipale (total) | 353 000 $ |
| Année d'évaluation | 2025 |
| Type de copropriété | Divise |
| Étage du condo | 2 |
| Nombre d'étages | 4 |
| Allée | Asphalte |
| Mode de chauffage | Plinthes électriques |
| Approvisionnement en eau | Municipalité |
| Énergie pour le chauffage | Électricité |
| Équipement disponible | Échangeur d'air, Thermopompe murale |
| Fenêtres | PVC |
| Stationnement | Extérieur |
| Système d'égouts | Municipal |
| Type de fenêtre | Manivelle |
| Toiture | Bardeaux d'asphalte |
| Topographie | Plat |
| Vue | Sur la ville |
| Zonage | Résidentiel |
Addendas
| Bienvenue dans ce superbe condo contemporain, niché au |
| coeur d'un quartier paisible et recherché de Saint-Hubert. |
| Situé au 3780 rue Médard-Émard, ce spacieux logement vous |
| offre une qualité de vie exceptionnelle grâce à son design |
| soigné, ses matériaux haut de gamme et son aménagement |
| intelligent. |
| Caractéristiques principales : |
| - Espace à aire ouverte combinant salon, salle à manger et |
| cuisine, baigné de lumière naturelle grâce aux grandes |
| fenêtres et à la porte-patio. |
| - Comptoirs de quartz! |
| - Deux chambres confortables, dont une principale avec |
| grand walk-in et ambiance apaisante. |
| - Salle de bain stylée avec bain-douche en céramique effet |
| marbre, vanité en bois et accents noirs pour une touche |
| contemporaine. |
| - Buanderie pratique pour laveuse-sécheuse superposées, |
| discrètement intégrées dans un espace fermé. |
| - Balcon sous pergola, idéal pour profiter des belles |
| journées. |
| Atouts supplémentaires : |
| - 1 Stationnement extérieur inclus, possibilité d'acheter |
| un 2e stationnement ainsi qu'un cabanon en surplus. |
| - Construction récente et bien entretenue |
| - À proximité des services, parcs, écoles, axes routiers et |
| transports en commun |





























