Gatineau (Hull)
Description de la propriété
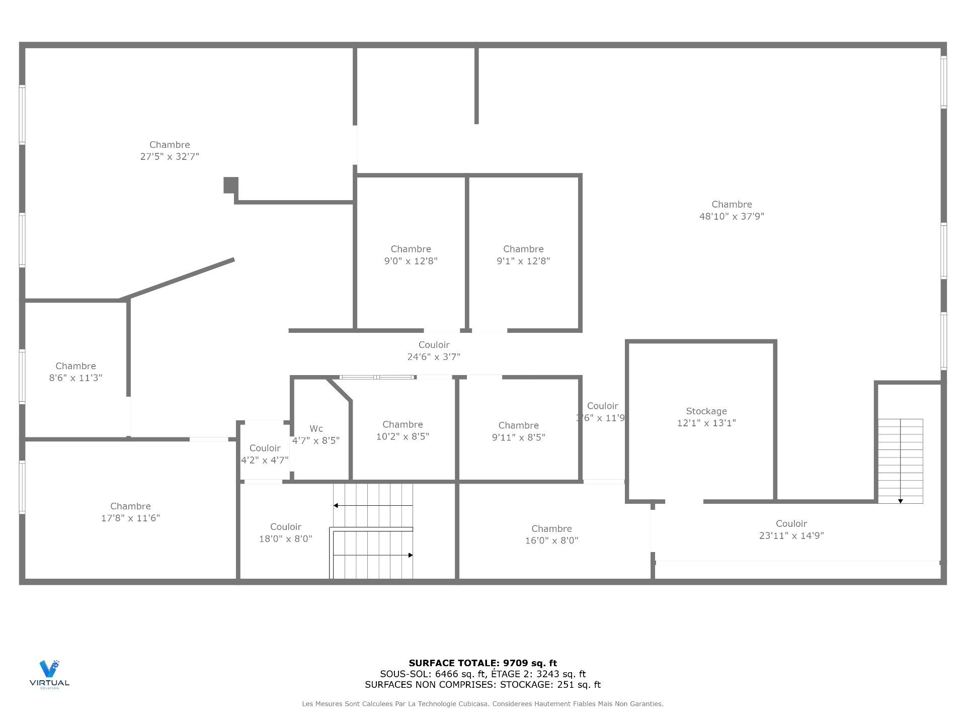
Espace d'Affaires Premium - 10 000 pi² à Louer et/ou à vendre. Disponible Maintenant! Offrez à votre entreprise un emplacement stratégique au 170 rue Deveault, Gatineau (Hull). 10 000 pi² d'espace polyvalent pour bureaux, entrepôt ou projet sur mesure Location flexible : louez en totalité ou en partie, selon vos besoins Visibilité maximale et accès rapide aux autoroutes 5 et 50, à 5 min d'Ottawa Un lieu conçu pour votre croissance. Venez voir tout ce que vous pouvez y bâtir! 2 entrée électrique de 60 amp et 400 amp (347/600V et 120/240V)
Détails
Proximité
Autoroute/Voie rapide, Transport en commun
Taxes et dépenses
| Taxes scolaires | 240 $ |
| Taxes municipales | 41 778 $ |
| Frais de copropriété | 1 200 $ |
Bâtiment et intérieur de la propriété
| Frais de copropriété | 1 200 $ |
| Aire habitable | 10304 PC |
| Délai d'occupation prévu | 10 jours |
| Dimension de la façade du bâtiment | 19 M |
| Dimension de la profondeur du bâtiment | 12.85 M |
| Année de construction | 1972 |
| Évaluation municipale (terrain) | 572 000 $ |
| Évaluation municipale (bâtiment) | 1 227 700 $ |
| Évaluation municipale (total) | 1 799 700 $ |
| Année d'évaluation | 2024 |
| Type de copropriété | Divise |
| Bâtiment irrégulier | Oui |
| Approvisionnement en eau | Municipalité |
| Système d'égouts | Municipal |
| Zonage | Commercial |
Addendas
| Emplacement stratégique : Situé dans le quartier Hull, à |
| proximité du centre-ville de Gatineau, cet emplacement |
| offre un accès facile aux principales routes et au centre |
| d'Ottawa, ce qui est idéal pour attirer une clientèle |
| diverse. |
| Accessibilité : L'adresse est facilement accessible en |
| voiture et en transport en commun, avec des options de |
| stationnement disponibles, facilitant l'accès pour les |
| clients et les employés. |
| Proximité des services : Le secteur est bien desservi par |
| des commerces, restaurants, services publics et autres |
| commodités, ce qui crée un environnement pratique et |
| dynamique pour les affaires. |
| Quartier en développement : Hull est une zone en croissance |
| avec des projets de développement et de revitalisation, |
| offrant des opportunités de croissance et d'expansion pour |
| les entreprises établies dans le quartier. |
| Visibilité : Le 170 Rue Deveault est bien situé pour |
| bénéficier d'une bonne visibilité et attirer l'attention |
| des passants et des clients potentiels. |
| Diversité de l'offre immobilière : Selon le type d'espace |
| disponible (commercial, bureaux, etc.), cette propriété |
| peut offrir une flexibilité dans l'aménagement pour |
| répondre aux besoins spécifiques des locataires. |
| Zoning |
| 5891Traiteurs |
| 6112Service spécialisé relié à l'activité bancaire |
| 6122Service de crédit agricole, commercial et individuel |
| 6131Maison de courtiers et de négociants en valeurs |
| mobilières et émissions d'obligations |
| 6153Service de lotissement et de développement des |
| biens-fonds |
| 6155Service conjoint concernant les biens-fonds, les |
| assurances, les prêts et les lois |
| 6159Autres services reliés aux biens-fonds. |
| 6221Service photographique (incluant les services |
| commerciaux) |
| 6222Service de finition de photographies. |
| 6235Salon de massage |
| 6312Service d'affichage à l'extérieur. |
| 6319Autres services publicitaires |
| 6331Service direct de publicité par la poste. |
| 6332Service de photocopie et de reprographie |
| 6333Service d'impression numérique. |
| 6335Service de location de boîtes postales (sauf le |
| publipostage) |
| 6362Centre de recherche en transport, communication, |
| télécommunication et urbanisme |
| 6367Centre de recherche en mathématique et informatique |
| 6368Centre de recherche d'activités émergentes (sont |
| incluses les technologies langagières et la photonique). |
| 6422Service de réparation et d'entretien de radios, de |
| téléviseurs et d'appareils électroniques |
| 6439Service de réparation d'autres véhicules légers |
| (incluant uniquement les véhicules non motorisés). |
| 6493Service de réparation de montres, d'horloges et |
| bijouterie. |
| 6496Service de réparation et d'entretien de matériel |
| informatique. |
| 6497Service d'affûtage d'articles de maison. |
| 6499Autres services de réparation et d'entretien. |
| 6514Service de laboratoire médical. |
| 6515Service de laboratoire dentaire. |
| 6553Service de conception de sites Web int |


















































































