Saint-Colomban
Description de la propriété
!! Sous garantie GCR !! Splendide maison farmhouse moderne pratiquement neuve située à Saint-Colomban, au coeur d'un environnement boisé et paisible. Cette magnifique propriété offre des espaces de vie lumineux et ouverts, une cuisine moderne au goût du jour et de grandes fenêtres donnant sur la nature. Matériaux de qualité, finition soignée et architecture chaleureuse. Un endroit parfait pour profiter de la tranquillité de la forêt tout en habitant une demeure au cachet unique. Vous aurez la possibilité d'ajouté 2 à 3 chambres au sous-sol ainsi qu'une salle de bain complète pour combler vos besoins familiaux!
Détails
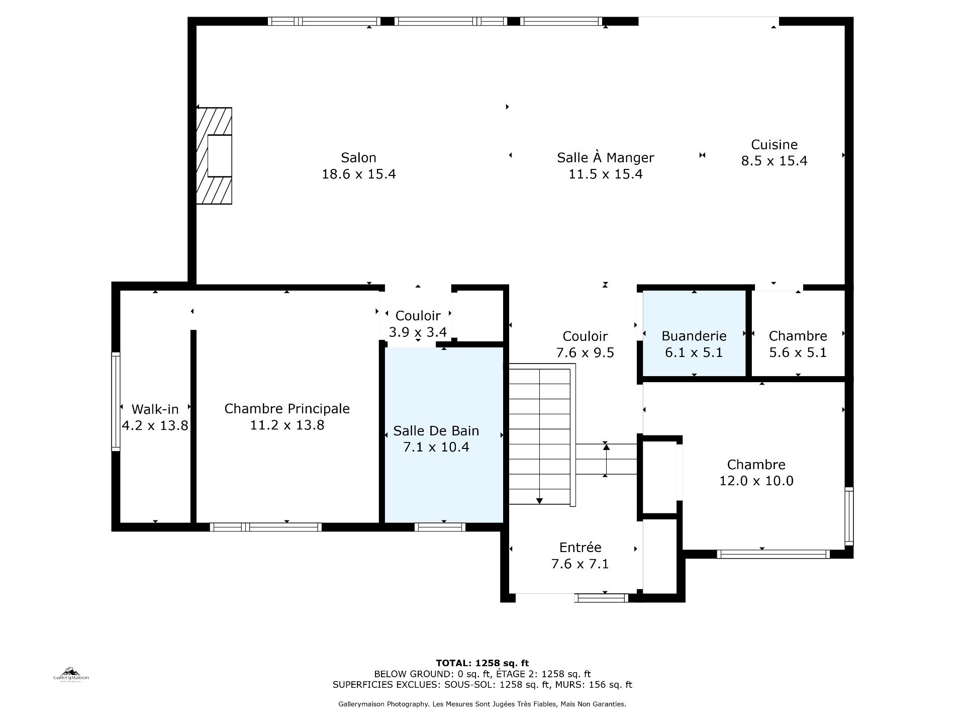
Dimension des pièces
| Pièce | Niveau | Dimensions | Couvre plancher |
|---|---|---|---|
| Hall d'entrée | 1er niveau/RDC | 7.6x7.1 P | Céramique |
| Chambre à coucher | 1er niveau/RDC | 12.0x10.0 P | Plancher flottant |
| Chambre à coucher principale | 1er niveau/RDC | 11.2x13.8 P | Plancher flottant |
| Salon | 1er niveau/RDC | 18.6x15.4 P | Plancher flottant |
| Salle à manger | 1er niveau/RDC | 11.5x15.4 P | Plancher flottant |
| Salle de bains | 1er niveau/RDC | 7.1x10.4 P | Céramique |
| Cuisine | 1er niveau/RDC | 8.5x15.4 P | Céramique |
| Back kitchen | 1er niveau/RDC | 5.6x5.1 P | Céramique |
| Salle familiale | Sous-sol | 43.1x33.8 P | Béton |
Taxes et dépenses
| Taxes municipales | 2 962 $ |
| Taxes scolaires | 185 $ |
Bâtiment et intérieur de la propriété
| Chambres | 2 |
| Salles de bain | 1 |
| Nombre de pièces | 10 |
| Nombre de chambres hors sol | 2 |
| Aire habitable | 1258 PC |
| Délai d'occupation prévu | 15 jours |
| Éléments inclus lors de la vente | Stores, rideaux, luminaires |
| Éléments exclus lors de la vente | Borne électrique FLO, lave-vaisselle (option d'achat). |
| Dimension de la façade du bâtiment | 13.69 M |
| Dimension de la profondeur du bâtiment | 9.91 M |
| Superficie du terrain | 4009 MC |
| Dimension de la façade du terrain | 50 M |
| Dimension de la profondeur du terrain | 80 M |
| Année de construction | 2024 |
| Évaluation municipale (terrain) | 170 200 $ |
| Évaluation municipale (bâtiment) | 408 600 $ |
| Évaluation municipale (total) | 578 800 $ |
| Année d'évaluation | 2025 |
| Bâtiment irrégulier | Oui |
| Superficie du bâtiment | 127.81 MC |
| Terrain irrégulier | Oui |
| Mode de chauffage | Plinthes électriques |
| Approvisionnement en eau | Puits artésien |
| Énergie pour le chauffage | Électricité |
| Fondation | Béton coulé |
| Particularités | Boisé |
| Sous-sol | 6 pieds et plus, Partiellement aménagé |
| Système d'égouts | Champ d'épuration, Fosse septique |
| Zonage | Résidentiel |
Addendas
| Bienvenue dans cette splendide propriété de style farmhouse |
| moderne, pratiquement neuve, située dans un cadre |
| enchanteur au coeur de la forêt de Saint-Colomban. |
| Dès votre arrivée, vous serez charmé par l'architecture |
| chaleureuse et intemporelle de la maison, mariant |
| élégamment le cachet rustique et le confort contemporain. |
| À l'intérieur, les espaces sont vastes, lumineux et pensés |
| pour la vie familiale et la convivialité. La cuisine |
| moderne, véritable coeur de la maison, propose un design |
| raffiné et des matériaux de qualité. De grandes fenêtres |
| panoramiques vous offrent une immersion constante dans la |
| nature environnante. Vous aurez la possibilité d'ajouté des |
| chambres au sous-sol ainsi qu'une salle de bain complète! |
| Ayant un système de filtration d'eau haut de gamme, vous |
| n'aurez jamais à vous soucier de la qualité de votre eau! |
| Le terrain boisé garantit intimité et tranquillité, tout en |
| étant à proximité des services essentiels, des écoles et |
| des accès routiers. Vous profiterez ainsi d'un parfait |
| équilibre entre vie paisible en forêt et commodités |
| modernes. |
| Cette propriété est idéale pour ceux qui souhaitent |
| s'installer sans compromis, dans un environnement où il |
| fait bon vivre, se ressourcer et créer de précieux |
| souvenirs. |

































