Nouveau prix
286 900 $
11 Rue de la Falaise 1
Gatineau (Hull)
Gatineau (Hull)
Type
Appartement
Chambres
3
Aire habitable
86.5 MC
Salles de bain
1
MLS® 14451236
Description de la propriété
DISPONIBLE MAINTENANT. Très beau condo de 3 chambres situé dans le secteur très recherché des Hautes Plaines à proximité du terrain de golf, du Parc de la Gatineau, et de toutes les commodités. À quelques minutes de plusieurs commerces dont épicerie, pharmacie, restaurants et plus.
Détails
Proximité
Autoroute/Voie rapide, Cegep, Golf, Parc-espace vert, École primaire, École secondaire, Transport en commun, Piste cyclable, Garderie/CPE
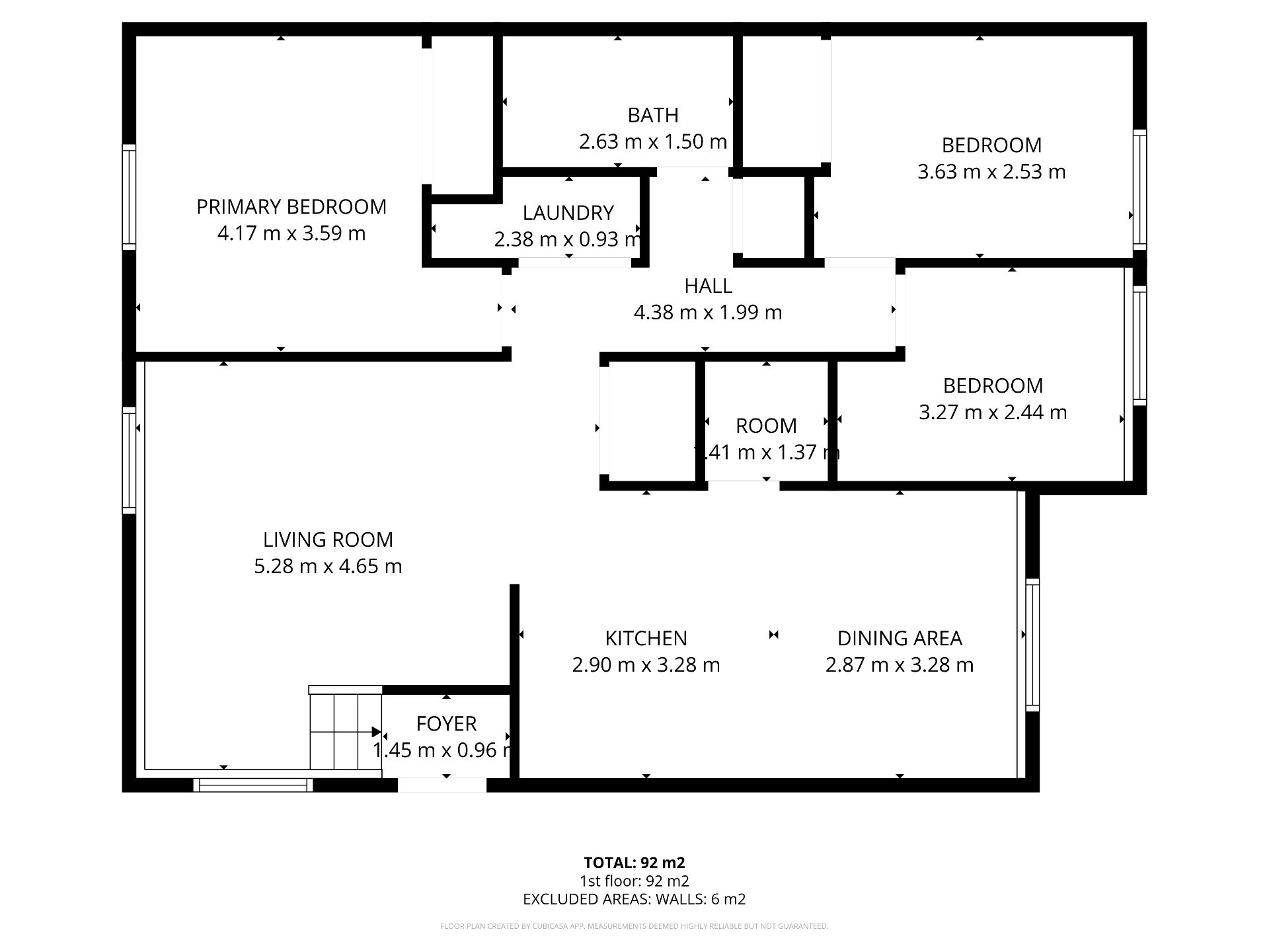
Dimension des pièces
| Pièce | Niveau | Dimensions | Couvre plancher |
|---|---|---|---|
| Hall d'entrée | 1er niveau/RDC | 3.8x3.5 P | Céramique |
| Salon | 1er niveau/RDC | 13.2x12 P | Plancher flottant |
| Cuisine | 1er niveau/RDC | 10.6x9.9 P | Plancher flottant |
| Salle à manger | 1er niveau/RDC | 10.6x8.7 P | Plancher flottant |
| Rangement | 1er niveau/RDC | 4.8x5 P | Plancher flottant |
| Chambre à coucher principale | 1er niveau/RDC | 11.9x10.8 P | Plancher flottant |
| Chambre à coucher | 1er niveau/RDC | 10.11x7.11 P | Plancher flottant |
| Chambre à coucher | 1er niveau/RDC | 8.4x11.9 P | Plancher flottant |
| Salle de bains | 1er niveau/RDC | 4.10x8.9 P | Céramique |
| Salle de lavage | 1er niveau/RDC | 7.8x3.2 P | Céramique |
Taxes et dépenses
| Taxes scolaires | 174 $ |
| Taxes municipales | 2 034 $ |
| Frais de copropriété | 3 192 $ |
Bâtiment et intérieur de la propriété
| Frais de copropriété | 3 192 $ |
| Chambres | 3 |
| Salles de bain | 1 |
| Nombre de pièces | 10 |
| Nombre de chambres hors sol | 3 |
| Aire habitable | 86.5 MC |
| Délai d'occupation prévu | 15 jours |
| Éléments inclus lors de la vente | Lave-vaisselle |
| Dimension de la façade du bâtiment | 10.58 M |
| Dimension de la profondeur du bâtiment | 8.31 M |
| Superficie du terrain | 150.6 MC |
| Année de construction | 1989 |
| Évaluation municipale (terrain) | 55 500 $ |
| Évaluation municipale (bâtiment) | 219 400 $ |
| Évaluation municipale (total) | 274 900 $ |
| Année d'évaluation | 2025 |
| Type de copropriété | Divise |
| Étage du condo | TE |
| Nombre d'étages | 3 |
| Bâtiment irrégulier | Oui |
| Superficie du bâtiment | 86.5 MC |
| Allée | Asphalte |
| Armoires | Mélamine |
| Mode de chauffage | Plinthes électriques |
| Approvisionnement en eau | Municipalité |
| Énergie pour le chauffage | Électricité |
| Fenêtres | PVC |
| Revêtements | Brique |
| Restrictions/Permissions | Location court terme non permise, Non-fumeurs |
| Stationnement | Extérieur |
| Système d'égouts | Municipal |
| Toiture | Bardeaux d'asphalte |
| Topographie | Plat |
| Zonage | Résidentiel |
Addendas
| - Un stationnement |
| - une remise extérieure |
| - un grand rangement intérieur |
| - Location à court terme interdite |
| - Location à long terme permise (bail requis) |
| - Interdiction de consommation de cannabis dans les unités, |
| balcons et parties communes |
| - possibilité de louer un 2e stationnement 45$/mois: liste |
| d'attente possible. |
| - La copropriété est bien gérée et stable |






























