Ripon
Description de la propriété
JUSTE DU WOW! Bienvenue au 24 rue Coursol à Ripon. Maison centenaire! Située dans la municipalité de Ripon, cette maison unifamiliale offre un espace de vie pratique et fonctionnel, parfait pour une petite famille ou pour quelqu'un qui recherche la tranquillité de la campagne.La propriété comprend 3 chambres à coucher. On y retrouve aussi une salle de bain complète et une salle de lavage séparée, offrant un espace pratique pour le quotidien. À l'extérieur, le terrain offre un bel espace pour profiter de la nature, jardiner ou aménager selon vos besoins. Une piscine hors terre permet également de profiter pleinement des saisons chaudes.
Visites libres
Dimanche 16 novembre de 14:00 à 16:00Détails
Proximité
Golf, École primaire, Ski de fond, Garderie/CPE
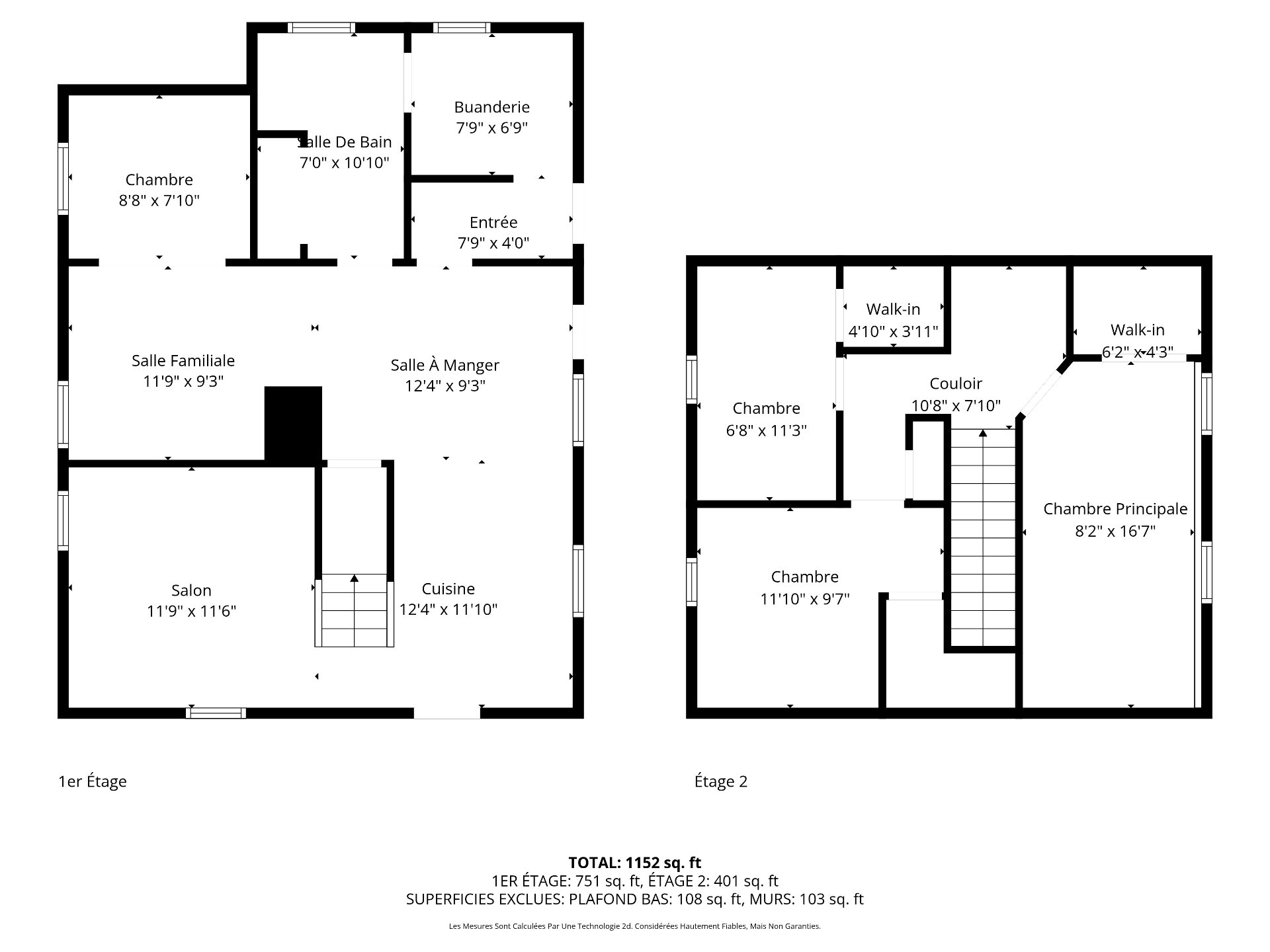
Dimension des pièces
| Pièce | Niveau | Dimensions | Couvre plancher |
|---|---|---|---|
| Hall d'entrée | 1er niveau/RDC | 7.9x4 P | Linoléum |
| Salle à manger | 1er niveau/RDC | 12.4x9.3 P | Linoléum |
| Cuisine | 1er niveau/RDC | 12.4x11.10 P | Linoléum |
| Salle familiale | 1er niveau/RDC | 11.9x9.3 P | Bois |
| Salon | 1er niveau/RDC | 11.9x11.6 P | Bois |
| Salon | 1er niveau/RDC | 8.8x7.10 P | Bois |
| Salle de bains | 1er niveau/RDC | 7x10.10 P | Céramique |
| Salle de lavage | 1er niveau/RDC | 7.9x6.9 P | Céramique |
| Chambre à coucher principale | 2ième étage | 8.2x16.7 P | Plancher flottant |
| Chambre à coucher | 2ième étage | 6.8x11.3 P | Plancher flottant |
| Chambre à coucher | 2ième étage | 11.10x9.7 P | Plancher flottant |
Taxes et dépenses
| Taxes municipales | 1 555 $ |
| Taxes scolaires | 70 $ |
Bâtiment et intérieur de la propriété
| Chambres | 3 |
| Salles de bain | 1 |
| Nombre de pièces | 13 |
| Nombre de chambres hors sol | 3 |
| Délai d'occupation prévu | 30 jours |
| Éléments inclus lors de la vente | Luminaires, poulailler, lave-vaisselle, laveuse, sécheuse, poêle, réfrigérateur, meuble garde-manger, meuble dans la salle de bain. |
| Dimension de la façade du bâtiment | 8.25 M |
| Dimension de la profondeur du bâtiment | 10.53 M |
| Superficie du terrain | 1446.4 MC |
| Dimension de la façade du terrain | 30.46 M |
| Dimension de la profondeur du terrain | 50.63 M |
| Année de construction | 1860 |
| Évaluation municipale (terrain) | 23 900 $ |
| Évaluation municipale (bâtiment) | 120 400 $ |
| Évaluation municipale (total) | 144 300 $ |
| Année d'évaluation | 2025 |
| Superficie du bâtiment | 86.87 MC |
| Allée | Double largeur ou plus, Non pavée |
| Aménagement du terrain | Clôturé, Paysager |
| Mode de chauffage | Air soufflé, Plinthes électriques |
| Approvisionnement en eau | Municipalité |
| Énergie pour le chauffage | Électricité, Mazout |
| Équipement disponible | |
| Fenêtres | PVC |
| Fondation | Béton coulé, Bloc de béton |
| Revêtements | Vinyle |
| Particularités | Boisé |
| Piscine | Hors-terre |
| Sous-sol | Vide sanitaire |
| Stationnement | Extérieur |
| Système d'égouts | Champ d'épuration, Fosse septique |
| Toiture | Tôle |
| Topographie | Plat |
| Zonage | Résidentiel |
Addendas
| ******** JUSTE DU WOW ******** |
| Bienvenue au 24 rue Coursol à Ripon. Maison centenaire! |
| Cette maison unifamiliale située à Ripon représente une |
| belle occasion pour quiconque souhaitant s'établir dans un |
| environnement calme et verdoyant, tout en profitant d'un |
| espace de vie fonctionnel et accessible. Que ce soit pour |
| une première propriété, une résidence secondaire ou |
| simplement un endroit pour décrocher de la ville, cette |
| maison saura répondre à vos besoins essentiels tout en |
| offrant un cadre de vie paisible. |
| Au rez-de-chaussée, vous trouverez un hall d'entrée, le |
| salon, la salle à manger, la cuisine, ainsi qu'une salle de |
| bain complète et une salle de lavage séparée, offrant tout |
| le nécessaire pour le quotidien. |
| À l'étage, la maison comprend 3 chambres à coucher, dont |
| deux disposent de walk-in, offrant un espace de rangement |
| généreux et pratique pour la famille. |
| À l'extérieur, le terrain spacieux permet de profiter de |
| l'air libre, de jardiner ou d'aménager selon vos besoins. |
| Une piscine hors terre est également installée, parfaite |
| pour se rafraîchir pendant les journées chaudes. |
| Située dans un secteur calme, cette propriété convient à |
| ceux qui souhaitent vivre dans un environnement paisible |
| tout en restant à proximité des services essentiels. |


































