Cantley
Description de la propriété
Bienvenue au 51 rue Seurat à Cantley. Cette superbe propriété située sur un terrain d'un peu plus d'un acre boisé, vous offre 3 chambres à coucher avec la possibilité d'une 4e au sous-sol. Un beau salon lumineux et une grande cuisine et salle à manger pour recevoir vos invités. Un sous-sol style walk-out avec la possibilité de faire un logement parental avec son entrée indépendante. Cette propriété est parfaite pour accueillir une famille et idéale pour les amoureux de plein air. Ne manquez pas cette unique opportunité, contactez moi dès maintenant pour une visite ou pour plus d'information.
Détails
Proximité
Golf, Parc-espace vert, École primaire, Piste cyclable, Ski alpin, Ski de fond, Garderie/CPE
Dimension des pièces
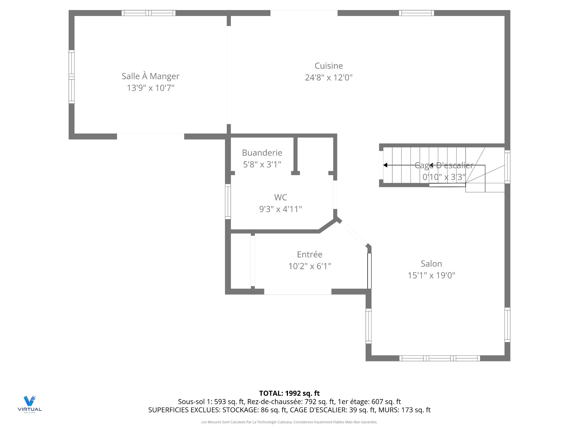
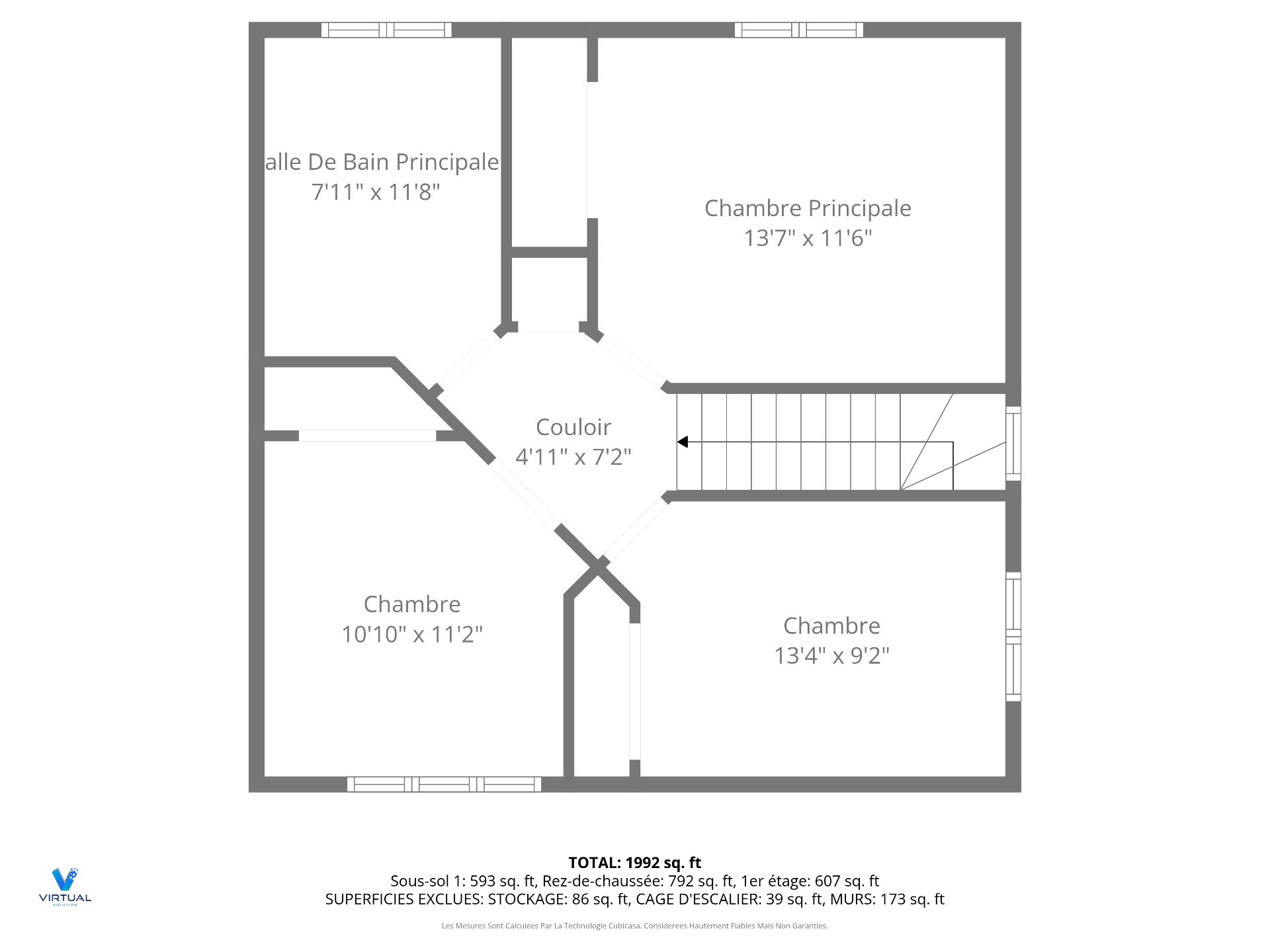
| Pièce | Niveau | Dimensions | Couvre plancher |
|---|---|---|---|
| Hall d'entrée | 1er niveau/RDC | 10.2x6.1 P | Céramique |
| Salon | 1er niveau/RDC | 15.1x19.0 P | Bois |
| Cuisine | 1er niveau/RDC | 24.8x12.0 P | Céramique |
| Salle à manger | 1er niveau/RDC | 13.9x10.7 P | Céramique |
| Salle d'eau | 1er niveau/RDC | 9.3x4.11 P | Céramique |
| Chambre à coucher principale | 2ième étage | 13.7x11.6 P | Plancher flottant |
| Chambre à coucher | 2ième étage | 13.4x9.2 P | Plancher flottant |
| Chambre à coucher | 2ième étage | 10.10x11.2 P | Plancher flottant |
| Salle de bains | 2ième étage | 7.11x11.8 P | Céramique |
| Salle familiale | Sous-sol | 24.4x17.3 P | Plancher flottant |
| Rangement | Sous-sol | 12.4x7.0 P | Plancher flottant |
| Rangement | Sous-sol | 12.0x11.6 P | Plancher flottant |
Taxes et dépenses
| Taxes municipales | 4 500 $ |
| Taxes scolaires | 500 $ |
Bâtiment et intérieur de la propriété
| Chambres | 3 |
| Salles de bain | 1 |
| Salles d'eau | 1 |
| Nombre de pièces | 12 |
| Nombre de chambres hors sol | 3 |
| Aire habitable | 1880 PC |
| Délai d'occupation prévu | 15 jours |
| Éléments inclus lors de la vente | Électroménagers tous vendu sans garantie légale, stores et luminaires, chauffe-eau |
| Dimension de la façade du bâtiment | 12.29 M |
| Dimension de la profondeur du bâtiment | 9.79 M |
| Superficie du terrain | 58478 PC |
| Dimension de la façade du terrain | 231 P |
| Dimension de la profondeur du terrain | 319 P |
| Année de construction | 2006 |
| Évaluation municipale (terrain) | 142 900 $ |
| Évaluation municipale (bâtiment) | 396 300 $ |
| Évaluation municipale (total) | 539 200 $ |
| Année d'évaluation | 2026 |
| Bâtiment irrégulier | Oui |
| Terrain irrégulier | Oui |
| Allée | Non pavée |
| Mode de chauffage | Plinthes électriques |
| Approvisionnement en eau | Puits artésien |
| Énergie pour le chauffage | Électricité |
| Fenêtres | PVC |
| Fondation | Béton coulé |
| Revêtements | Vinyle |
| Particularités | Boisé |
| Salle de bains/salle d'eau | Douche indépendante |
| Sous-sol | 6 pieds et plus, Entrée indépendante, Totalement aménagé |
| Stationnement | Extérieur |
| Système d'égouts | Biofiltre |
| Type de fenêtre | Manivelle |
| Toiture | Bardeaux d'asphalte |
| Topographie | En pente, Plat |
| Zonage | Résidentiel |


























































