Cantley
Description de la propriété
Charmante maison de campagne entièrement rénovée offrant 4 chambres spacieuses et 2 salles de bain complètes. D'une superficie d'environ 2 700 pi², elle propose des espaces lumineux, modernes et confortables. Cuisine et salles de bain rénovées avec goût. Garage simple attaché. Située sur un magnifique terrain de 1,2 acre au bout d'un cul-de-sac paisible, cette propriété vous assure intimité et tranquillité en pleine nature. Piscine et spa. Possibilité d'aménager un logement parental au rez-de-jardin (à confirmer avec la municipalité). Propriété idéale pour les amateurs d'espace et de calme. Une seule visite vous convaincra !
Détails
Proximité
Parc-espace vert, École primaire, Piste cyclable, Garderie/CPE
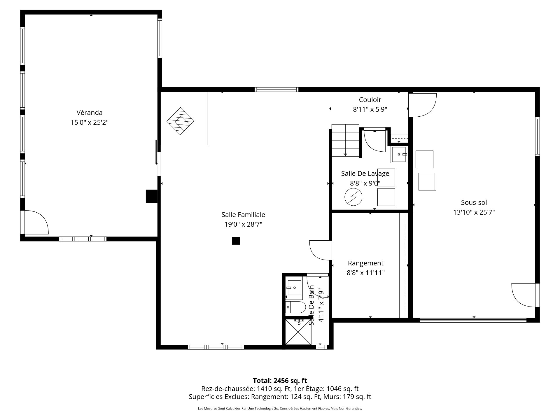
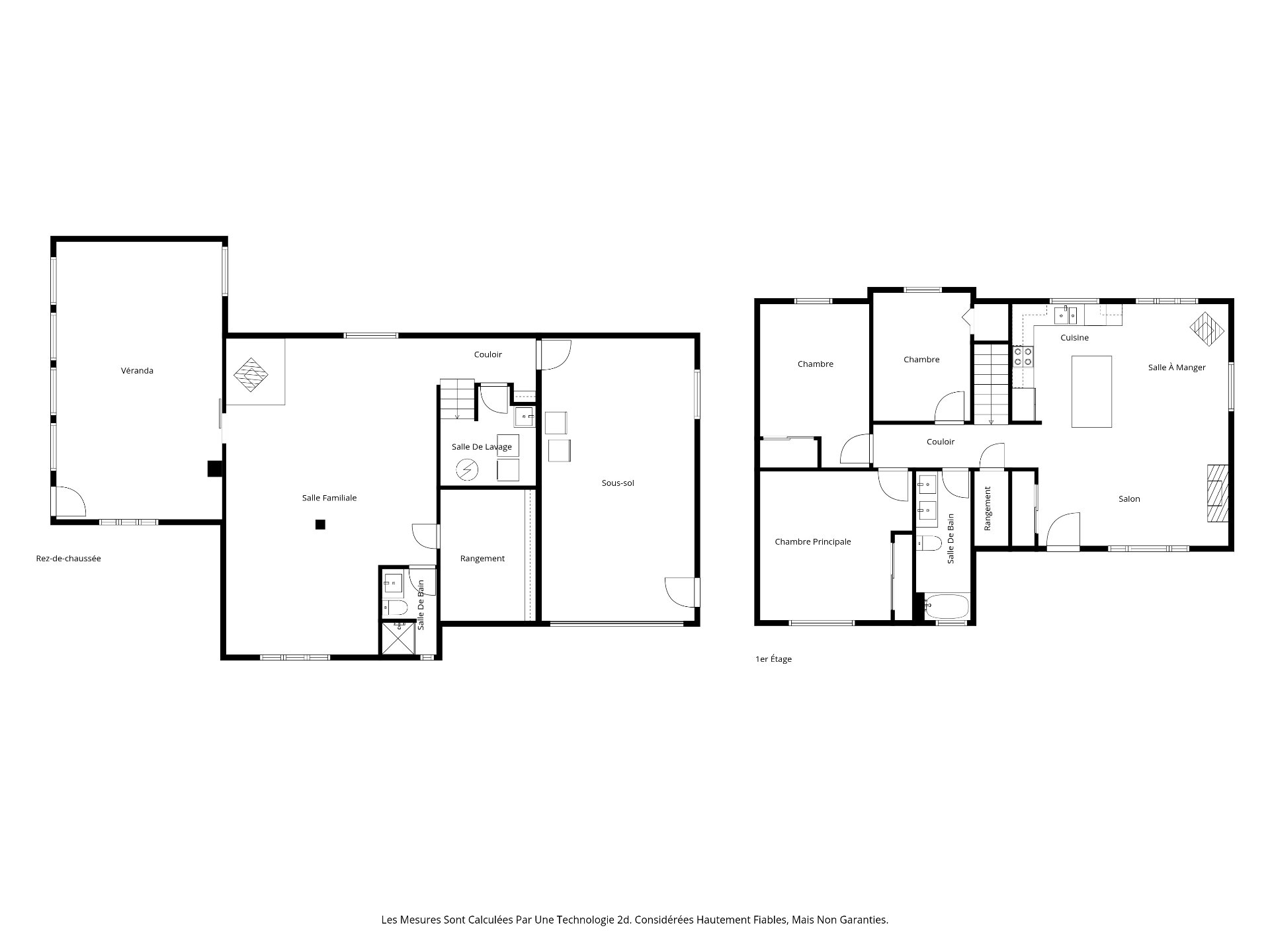
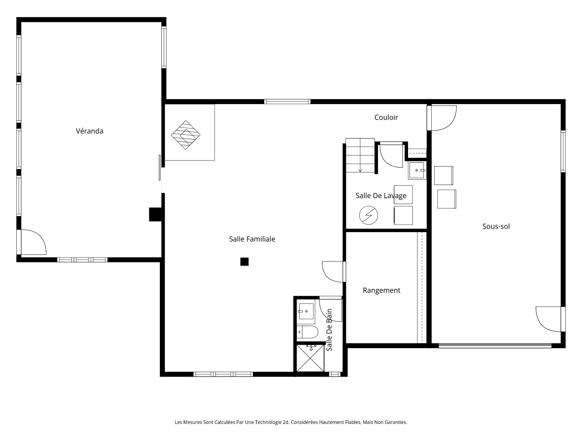
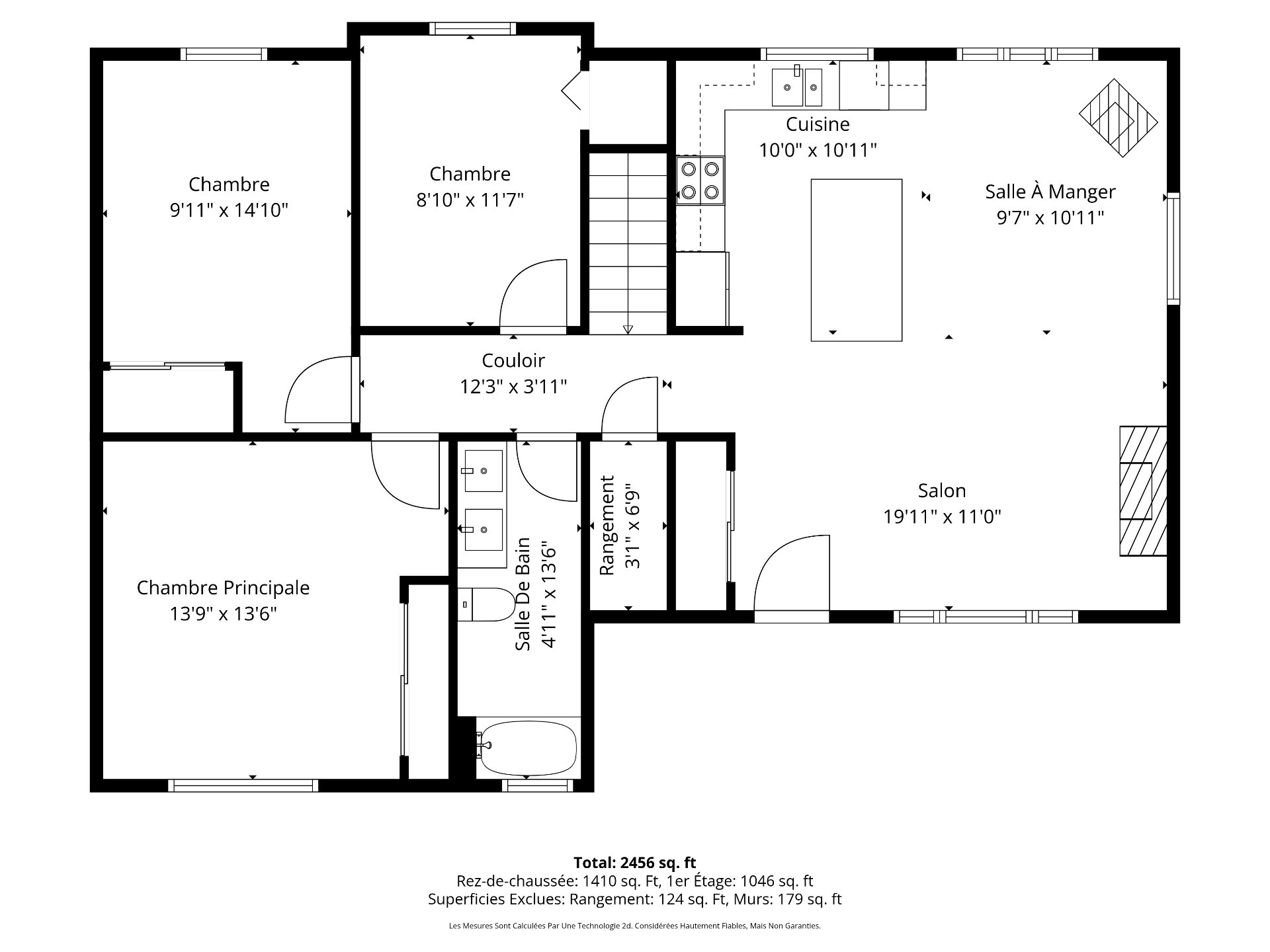
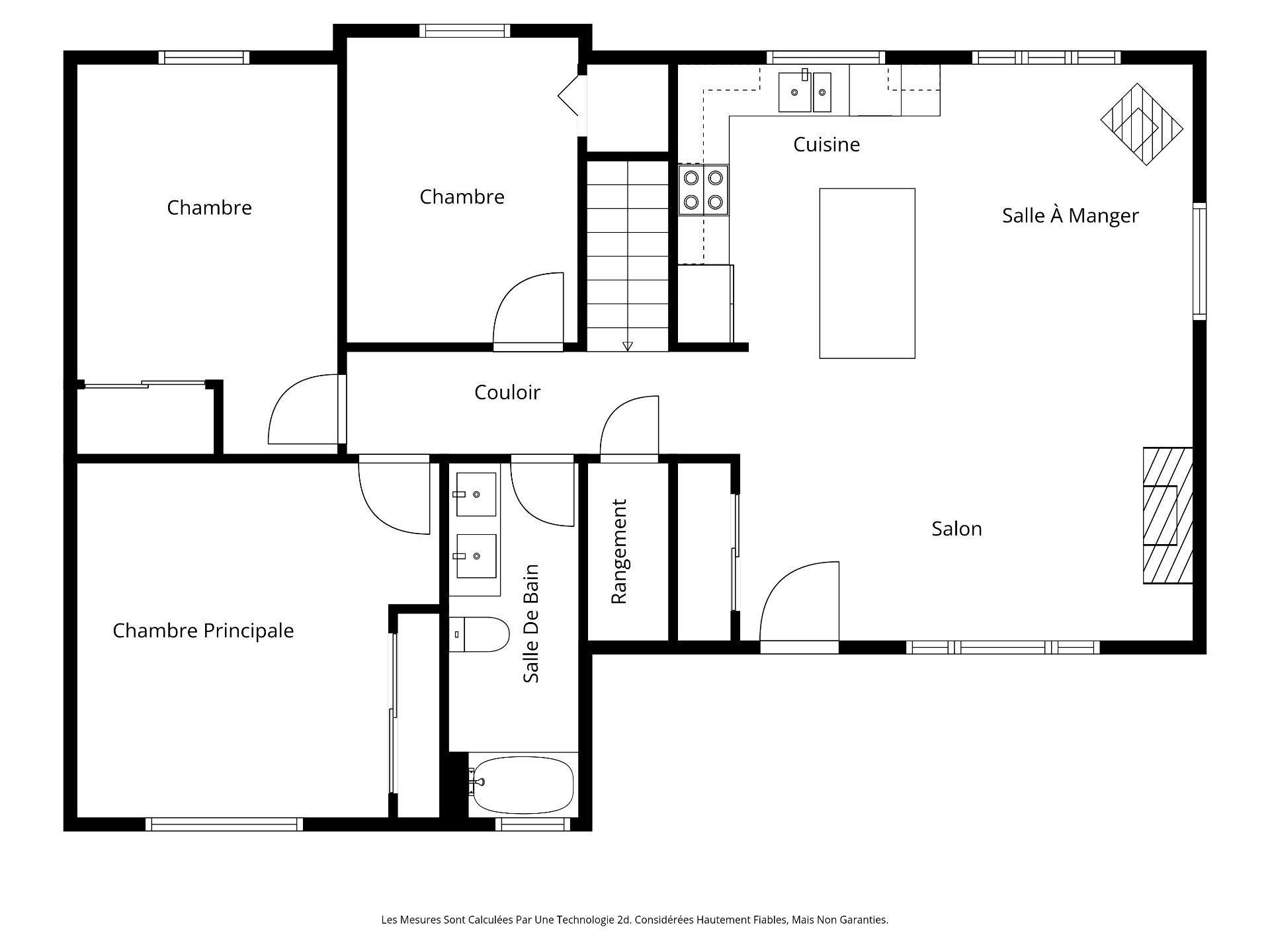
Dimension des pièces
| Pièce | Niveau | Dimensions | Couvre plancher |
|---|---|---|---|
| Hall d'entrée | 1er niveau/RDC | 9x4.5 P | Céramique |
| Salon | 1er niveau/RDC | 14.8x12 P | Plancher flottant |
| Salle à manger | 1er niveau/RDC | 13.3x21 P | Céramique |
| Rangement | 1er niveau/RDC | 9x2.9 P | Céramique |
| Salle de bains | 1er niveau/RDC | 14.10x5.4 P | Céramique |
| Chambre à coucher | 1er niveau/RDC | 12.7x9.3 P | Plancher flottant |
| Chambre à coucher | 1er niveau/RDC | 10.5x13.10 P | Plancher flottant |
| Chambre à coucher principale | 1er niveau/RDC | 14x15 P | Plancher flottant |
| Salle familiale | Sous-sol | 14x10 P | Plancher flottant |
| Salon | Sous-sol | 14.9x14.9 P | Plancher flottant |
| Chambre à coucher | Sous-sol | 29x15.4 P | Plancher flottant |
| Salle de bains | Sous-sol | 11.5x5.4 P | Epoxy |
| Rangement | Sous-sol | 8x9 P | Plancher flottant |
| Salle de lavage | Sous-sol | 11.6x8.8 P | Béton |
| Hall entrée garage | Sous-sol | 5.10x4 P | Céramique |
Taxes et dépenses
| Taxes scolaires | 396 $ |
| Taxes municipales | 4 539 $ |
| Coût d'énergie | 56 $ |
Bâtiment et intérieur de la propriété
| Chambres | 4 |
| Salles de bain | 2 |
| Nombre de pièces | 15 |
| Nombre de chambres hors sol | 3 |
| Nombre de chambres au sous-sol | 1 |
| Aire habitable | 291.9 MC |
| Éléments inclus lors de la vente | Cuisinière, réfrigérateur, lave-vaisselle, lave-linge, sèche-linge, luminaires, foyer à gaz, foyer électrique et foyer à pellets, chauffe-eau, meuble TV et télévision dans le salon.Spa et piscine, avec accessoires. Tondeuse à gazon et souffleuse à neige à |
| Éléments exclus lors de la vente | réservoir propane (loué) |
| Dimension de la façade du bâtiment | 13.17 M |
| Dimension de la profondeur du bâtiment | 18.81 M |
| Superficie du terrain | 4985 MC |
| Dimension de la façade du terrain | 34 M |
| Dimension de la profondeur du terrain | 146.61 M |
| Année de construction | 1988 |
| Évaluation municipale (terrain) | 166 200 $ |
| Évaluation municipale (bâtiment) | 491 400 $ |
| Évaluation municipale (total) | 657 600 $ |
| Année d'évaluation | 2026 |
| Bâtiment irrégulier | Oui |
| Terrain irrégulier | Oui |
| Allée | Asphalte, Double largeur ou plus |
| Aménagement du terrain | Paysager |
| Mode de chauffage | Plinthes à convection, Plinthes électriques |
| Approvisionnement en eau | Puits artésien |
| Énergie pour le chauffage | Électricité |
| Équipement disponible | Échangeur d'air, Thermopompe murale, Porte de garage électrique |
| Fenêtres | PVC |
| Fondation | Béton coulé |
| Foyers-poêles | Foyer aux granules, Foyer au gaz |
| Garage | Attaché, Simple largeur, Chauffé |
| Revêtements | Aluminium, Vinyle, Brique |
| Piscine | Chauffée, Hors-terre |
| Salle de bains/salle d'eau | Douche indépendante |
| Sous-sol | 6 pieds et plus, Entrée indépendante, Totalement aménagé |
| Stationnement | Extérieur, Au garage |
| Système d'égouts | Champ d'épuration, Fosse septique |
| Type de fenêtre | Manivelle, Porte-fenêtre |
| Toiture | Bardeaux d'asphalte |
| Topographie | En pente |
Addendas
| Propriété de campagne entièrement rénovée à Cantley |
| * Maison située à moins de 8 minutes du pont Alonzo-Wright |
| * 4 chambres à coucher de bonnes dimensions |
| * 2 salles de bain complètes |
| * Superficie habitable d'environ 2 700 pi²( incluant le |
| rez-de-jardin) |
| * Espaces de vie lumineux, modernes et bien aménagés |
| * Cuisine rénovée avec goût incluant un petit garde manger |
| `walk inn` |
| * Salles de bain rénovées |
| * Garage simple attaché |
| * Thermopompe |
| * Plusieurs inclusions |
| * Magnifique terrain de 1,2 acre |
| * Située dans un cul-de-sac tranquille |
| * Environnement paisible offrant intimité et tranquillité |
| * Idéale pour les amateurs de nature et d'espace |
| * Propriété clé en main |
| * Plusieurs rénovations effectuées au fil des années |
| * Possiblité d'amménager un bureau à domicile ou un |
| logement parental au rez-de-Jardin (à vérifier avec la |
| municipalité) |
| Pour de plus amples infomations ou pour planifier une |
| visite: 819-923-4703 ou sebastien@dggroupe.com |







































































