Gatineau (Hull)
Description de la propriété
Une perle rare! Propriété intergénérationnelle idéalement située dans le secteur prisé des Hautes-Plaines. La maison principale, entièrement rénovée, propose 4 chambres à coucher, 2 salles de bain, un bureau lumineux et un sous-sol entièrement aménagé. Une superbe addition construite en 2020, sur 2 étages, offre un logement supplémentaire de 2 chambres et 1 salle de bain & 1 salle d'eau. Le terrain plat, paysagé, clôturé et intime, se transforme en véritable oasis avec spa, patio, piscine creusée chauffée et de nombreux espaces de rangement. Nichée dans un secteur paisible et recherché, cette propriété conjugue confort moderne et polyvalence.
Détails
Proximité
Autoroute/Voie rapide, Cegep, Golf, Hôpital, Parc-espace vert, École primaire, École secondaire, Transport en commun, Piste cyclable, Ski alpin, Ski de fond, Garderie/CPE
Dimension des pièces
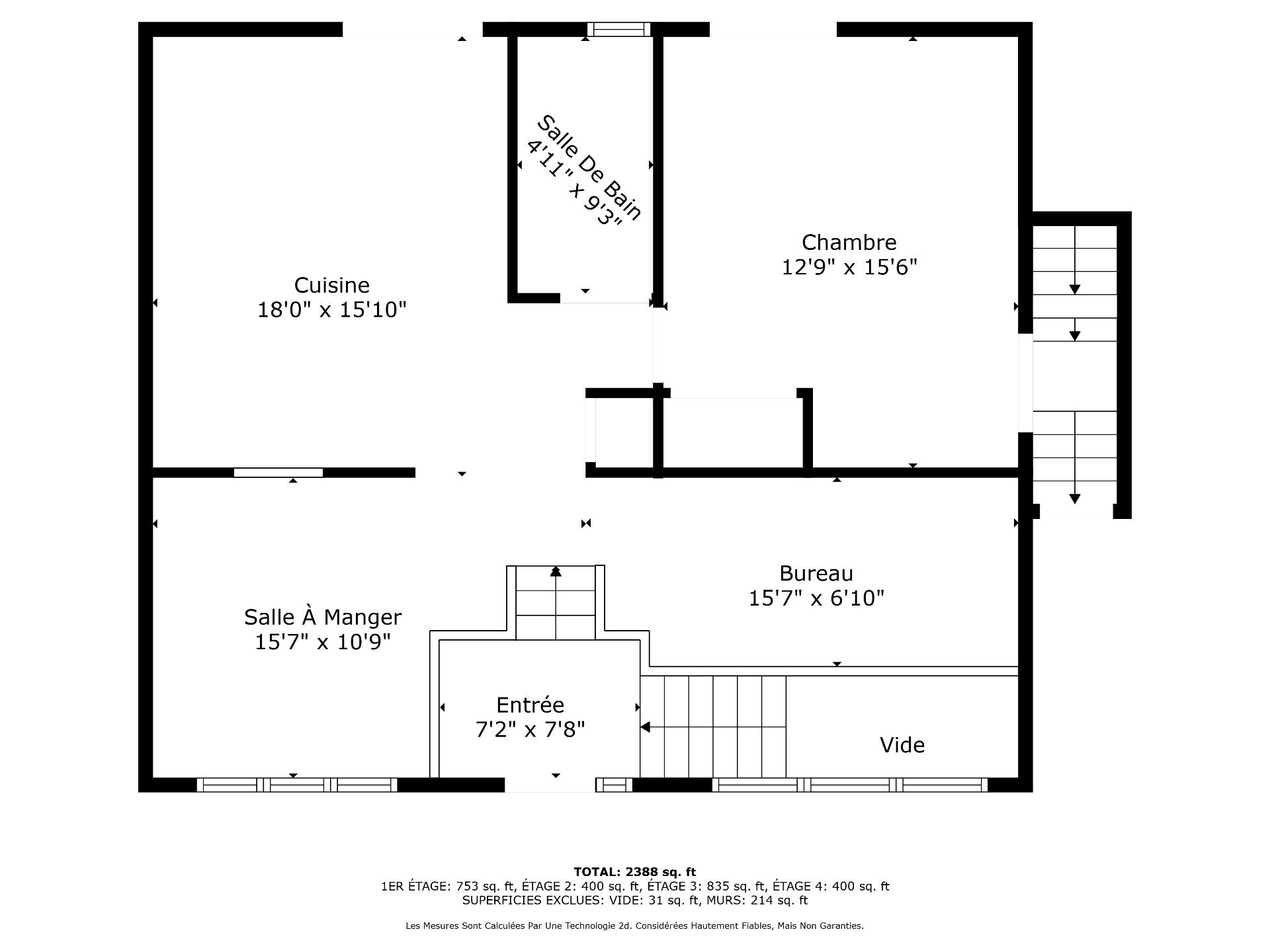
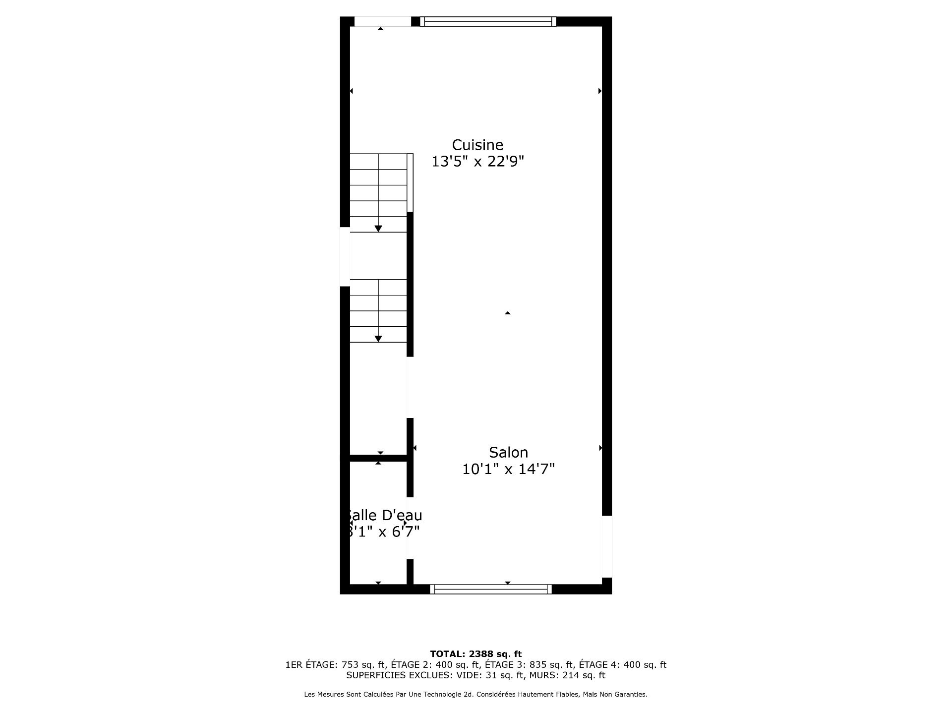
| Pièce | Niveau | Dimensions | Couvre plancher |
|---|---|---|---|
| Hall d'entrée | 1er niveau/RDC | 4.2x8.3 P | Couvre-sol souple |
| Cuisine | 1er niveau/RDC | 9.2x16.7 P | Couvre-sol souple |
| Salon | 1er niveau/RDC | 10.2x12.7 P | Couvre-sol souple |
| Salle d'eau | 1er niveau/RDC | 3x6.5 P | Couvre-sol souple |
| Chambre à coucher | 2ième étage | 8.7x13.7 P | Bois |
| Salle de bains | 2ième étage | 7.2x10.9 P | Céramique |
| Chambre à coucher | 2ième étage | 9.9x13.6 P | Bois |
| Hall d'entrée | 1er niveau/RDC | 5.2x7.7 P | Céramique |
| Salle à manger | 1er niveau/RDC | 9.9x10.7 P | Bois |
| Bureau à domicile | 1er niveau/RDC | 7.2x12.4 P | Plancher flottant |
| Cuisine | 1er niveau/RDC | 12.8x15.4 P | Céramique |
| Salle de bains | 1er niveau/RDC | 4.11x9.2 P | Céramique |
| Chambre à coucher | 1er niveau/RDC | 12x15.3 P | Bois |
| Salle familiale | Sous-sol | 14.9x11.9 P | Plancher flottant |
| Salle de lavage | Sous-sol | 5.1x4.9 P | Plancher flottant |
| Chambre à coucher | Sous-sol | 14.8x11.8 P | Plancher flottant |
| Rangement | Sous-sol | 9.7x5.2 P | Béton |
| Chambre à coucher | Sous-sol | 12.4x10.8 P | Plancher flottant |
| Salle de bains | Sous-sol | 4.9x7.1 P | Céramique |
| Chambre à coucher | Sous-sol | 9.9x11.7 P | Plancher flottant |
Taxes et dépenses
| Taxes scolaires | 538 $ |
| Taxes municipales | 6 213 $ |
| Coût d'énergie | 4 240 $ |
Bâtiment et intérieur de la propriété
| Chambres | 7 |
| Salles de bain | 2 |
| Nombre de pièces | 13 |
| Nombre de chambres hors sol | 4 |
| Nombre de chambres au sous-sol | 3 |
| Aire habitable | 1882 PC |
| Délai d'occupation prévu | 15 jours |
| Éléments inclus lors de la vente | Spa et accessoires. |
| Éléments exclus lors de la vente | Lave-vaisselle |
| Dimension de la façade du bâtiment | 47 P |
| Superficie du terrain | 807 MC |
| Dimension de la façade du terrain | 17 M |
| Dimension de la profondeur du terrain | 46.42 M |
| Année de construction | 1983 |
| Évaluation municipale (terrain) | 297 900 $ |
| Évaluation municipale (bâtiment) | 511 000 $ |
| Évaluation municipale (total) | 808 900 $ |
| Année d'évaluation | 2025 |
| Bâtiment irrégulier | Oui |
| Superficie du bâtiment | 1383 PC |
| Allée | Double largeur ou plus, Pavé uni |
| Aménagement du terrain | Clôturé, Paysager, Patio |
| Mode de chauffage | Plinthes électriques, Radiant |
| Approvisionnement en eau | Municipalité |
| Énergie pour le chauffage | Électricité |
| Fenêtres | Bois, PVC |
| Fondation | Béton coulé |
| Revêtements | Granulat (agrégat), Fibre pressée, Brique |
| Particularités | Intergénération |
| Piscine | Chauffée, Creusée |
| Restrictions/Permissions | Animaux permis |
| Salle de bains/salle d'eau | Douche indépendante |
| Sous-sol | 6 pieds et plus, Totalement aménagé |
| Stationnement | Extérieur |
| Système d'égouts | Municipal |
| Type de fenêtre | Coulissante, Porte-fenêtre, Manivelle |
| Toiture | Membrane élastomère, Tôle |
| Topographie | Plat |
| Zonage | Résidentiel |
Addendas
| Possibilité de revenus, ou possibilité pour location de |
| chambreur pour étudiants. |
| Ensemble de la propriété |
| - 6 chambres à coucher, 1 espace bureau et 3 salles de bain |
| complètes et une salle d'eau. |
| - Concept intergénérationnel communicant, alliant intimité |
| et convivialité |
| - Maison rénovée + ajout en 2020, offrant confort moderne |
| et flexibilité |
| Maison principale |
| - Complètement rénovée avec une grande cuisine moderne et |
| fonctionnelle |
| - Rez-de-chaussée : 1 chambre à coucher, 1 bureau et 1 |
| salle de bain |
| - Sous-sol aménagé : 3 chambres supplémentaires et 1 salle |
| de bain complète |
| - Espaces lumineux, chaleureux et pensés pour la vie |
| familiale |
| Logement intergénérationnel |
| - Entrée indépendante et accès direct à la cour arrière |
| - Rez-de-chaussée : aire ouverte avec cuisine, salle à |
| manger, salon et une salle d'eau. |
| - Planchers radiants à l'air pour un confort optimal |
| - Étage : 2 chambres à coucher, dont une avec patio privé |
| surplombant la cour, et 1 salle de bain avec deuxième |
| installation laveuse-sécheuse |
| Espaces extérieurs et localisation |
| - Cour privée, magnifiquement paysagée et entièrement |
| clôturée |
| - Spa, grand deck, piscine creusée au sel 14 x 32 chauffée, |
| coins détente et espaces de rangement |
| - Située dans le secteur très prisé des Hautes-Plaines, |
| paisible et familial |
| - À proximité du Parc de la Gatineau, des sentiers de plein |
| air, de plusieurs écoles, commerces, restaurants et de |
| l'autoroute 5 |
| - Accès rapide au village de Wakefield, au village de |
| Chelsea, ainsi qu'au centre-ville de Gatineau et Ottawa |





































































