Otter Lake
Description de la propriété
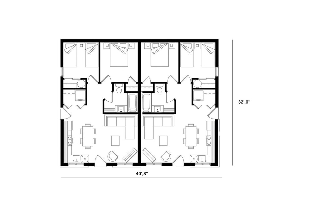
Investisseurs, soyez les premiers à réserver votre quadruplex rentable dans le tout nouveau projet domiciliaire Otter Lake Village. Situé à seulement 1 heure de Gatineau et d'Ottawa, au coeur de la charmante municipalité d'Otter Lake.L'immeuble à construire, érigé sur un vaste terrain boisé d'un acre, se trouve à distance de marche de l'école. Chaque bâtiment propose :2 appartements de 2 chambres et 2 appartements de 1 chambre avec bureau.Ce quadruplex génère un revenu brut annuel estimé à 67 200 $.Tous nos immeubles sont entièrement personnalisables : plans intérieurs, couleurs extérieures, revêtements de plancher et plus encore.
Détails
Dimension des pièces
| Pièce | Niveau | Dimensions | Couvre plancher |
|---|---|---|---|
| Salon | 1er niveau/RDC | 10x12 P | Couvre-sol souple |
| Cuisine | 1er niveau/RDC | 10x12 P | Couvre-sol souple |
| Chambre à coucher | 1er niveau/RDC | 10x10 P | Couvre-sol souple |
| Chambre à coucher | 1er niveau/RDC | 9x9 P | Couvre-sol souple |
| Salle de bains | 1er niveau/RDC | 8x6 P | Couvre-sol souple |
| Salon | 1er niveau/RDC | 10x12 P | Couvre-sol souple |
| Cuisine | 1er niveau/RDC | 10x12 P | Couvre-sol souple |
| Chambre à coucher | 1er niveau/RDC | 9x9 P | Couvre-sol souple |
| Chambre à coucher principale | 1er niveau/RDC | 10x10 P | Couvre-sol souple |
| Salle de bains | 1er niveau/RDC | 8x6 P | Couvre-sol souple |
| Salon | 2ième étage | 10x12 P | Couvre-sol souple |
| Cuisine | 2ième étage | 10x12 P | Couvre-sol souple |
| Bureau à domicile | 2ième étage | 9x9 P | Couvre-sol souple |
| Chambre à coucher | 2ième étage | 10x10 P | Couvre-sol souple |
| Salle de bains | 2ième étage | 8x6 P | Couvre-sol souple |
| Salon | 2ième étage | 10x12 P | Couvre-sol souple |
| Cuisine | 2ième étage | 10x12 P | Couvre-sol souple |
| Bureau à domicile | 2ième étage | 9x9 P | Couvre-sol souple |
| Chambre à coucher | 2ième étage | 10x10 P | Couvre-sol souple |
| Salle de bains | 2ième étage | 8x6 P | Couvre-sol souple |
Taxes et dépenses
| Taxes municipales | 74 $ |
| Taxes scolaires | 0 $ |
Bâtiment et intérieur de la propriété
| Chambres | 2 |
| Salles de bain | 1 |
| Nombre de pièces | 4 |
| Aire habitable | 2560 PC |
| Délai d'occupation prévu | 30 jours |
| Éléments inclus lors de la vente | Garantie GCR 5 Ans |
| Dimension de la façade du bâtiment | 40 P |
| Dimension de la profondeur du bâtiment | 32 P |
| Superficie du terrain | 3856 MC |
| Dimension de la façade du terrain | 85 M |
| Dimension de la profondeur du terrain | 45 M |
| Évaluation municipale (terrain) | 15 400 $ |
| Évaluation municipale (total) | 15 400 $ |
| Année d'évaluation | 2025 |
| Nombre d'étages | 2 |
| Code année construction | À construire |
| Superficie du bâtiment | 1280 PC |
| Revenus bruts potentiels | 67 200 $ |
| Base de sous-sol | Dalle de béton au sol |
| Mode de chauffage | Plinthes électriques |
| Approvisionnement en eau | Municipalité |
| Énergie pour le chauffage | Électricité |
| Système d'égouts | Système BIONEST |
| Zonage | Résidentiel |
Addendas
| 4 Plex à Construire |
| - 2 unités de 2 Chambres Valeur locative 1400$ / Mois |
| - 2 unités de 1 Chambre + Bureau Valeur Locative de 1400$ / |
| Mois |
| Situer dans le nouveau cartier Otter lake Village, à |
| seulement 1h de Gatineau / Ottawa. À 2 minutes de marche de |
| l'école. |
| ++ Terrain de 1 acre en nature |
| ++ Eau de la ville |
| ++ Revenue brute de 67 200$ |
| Inclusion |
| Finitions intérieures |
| Gypse |
| Peinture blanche |
| Plancher de vinil au choix |
| Portes et poignées intérieures |
| Cadrages et plinthes en MDF |
| Salle de bain |
| Céramique salle de bain |
| Panneau décoratif ou céramique douche |
| Bain douche |
| Robinetteries |
| Vanité |
| Miroir |
| Espace pour la laveuse et la sécheuse |
| Cuisine |
| Comptoir stratifié |
| Armoire PVC de 8' |
| Évier en acier inoxydable |
| Robinetterie |
| Hotte de poêle (Stainless) |
| Électricité |
| Panneau de 100 ampères et mât électrique incluant les |
| disjoncteurs (par appartement) |
| Plinthes électriques et thermostats électroniques |
| Interrupteurs et prises électriques intérieures et |
| extérieures |
| Luminaires extérieurs |
| Détecteurs de fumée électriques / batterie |
| Échangeur d'air, récupérateur de chaleur |
| Prise pour borne de recharge véhicule électrique |
| Charpente |
| Isolation des murs laine R20 + Enermax |
| Isolation du toit R40 + par vapeur |
| Plafond de 9' RDC |
| Finition extérieure |
| Porte et fenêtre extérieur PVC Noir |
| Vinyl de couleur au choix, standart |
| Poutre de bois si applicable |
| Toiture en bardeau au choix de couleur Garantie 25 ans |
| Toiture en tôle disponible en option |
| Porte d'acier isolée, porte-patio et poignées si applicable |
| Fascias et soffites noir |
| Stationnement en gravier |
| Plomberie |
| Accessoire de plomberie de base chromé |
| Toilette de base 2 pièce |
| Bain acrylique |
| Douche téléphone |
| Tuyauterie en Pex |
| Chauffe eau électrique 20 gallon (par appartement) |
| Fondation |
| Dalle de béton coulé |
| Mur de fondation contre la gelé |
| Crépi de ciment sur les murs de la fondation |
| Services |
| Système septique standard,6 chambres à coucher |
| Eau de la ville |
| En Option |
| Plancher radiant électrique au RC inclus PROMO |
| Thermopompe (4) inclus PROMO |








