Gatineau (Gatineau)
Description de la propriété
Maison unifamiliale à paliers multiples, entièrement rénovée avec goût et des matériaux de qualité. Avec ses 1800 pc de superficie, elle offre 5 chambres spacieuses, 3 salles de bains complètes. Sa grande cuisine lumineuse et son garage pratique sauront vous séduire, tout comme sa cour intime. Planchers chauffants partout au rez-de-chaussée et dans la salle de bain à l'étage pour un confort optimal. Située en plein coeur du centre-ville de Gatineau, cette propriété conjugue élégance, confort et emplacement exceptionnel pour créer la maison de vos rêves.
Détails
Proximité
Autoroute/Voie rapide, Cegep, Golf, Hôpital, École primaire, École secondaire, Transport en commun, Piste cyclable, Garderie/CPE
Dimension des pièces
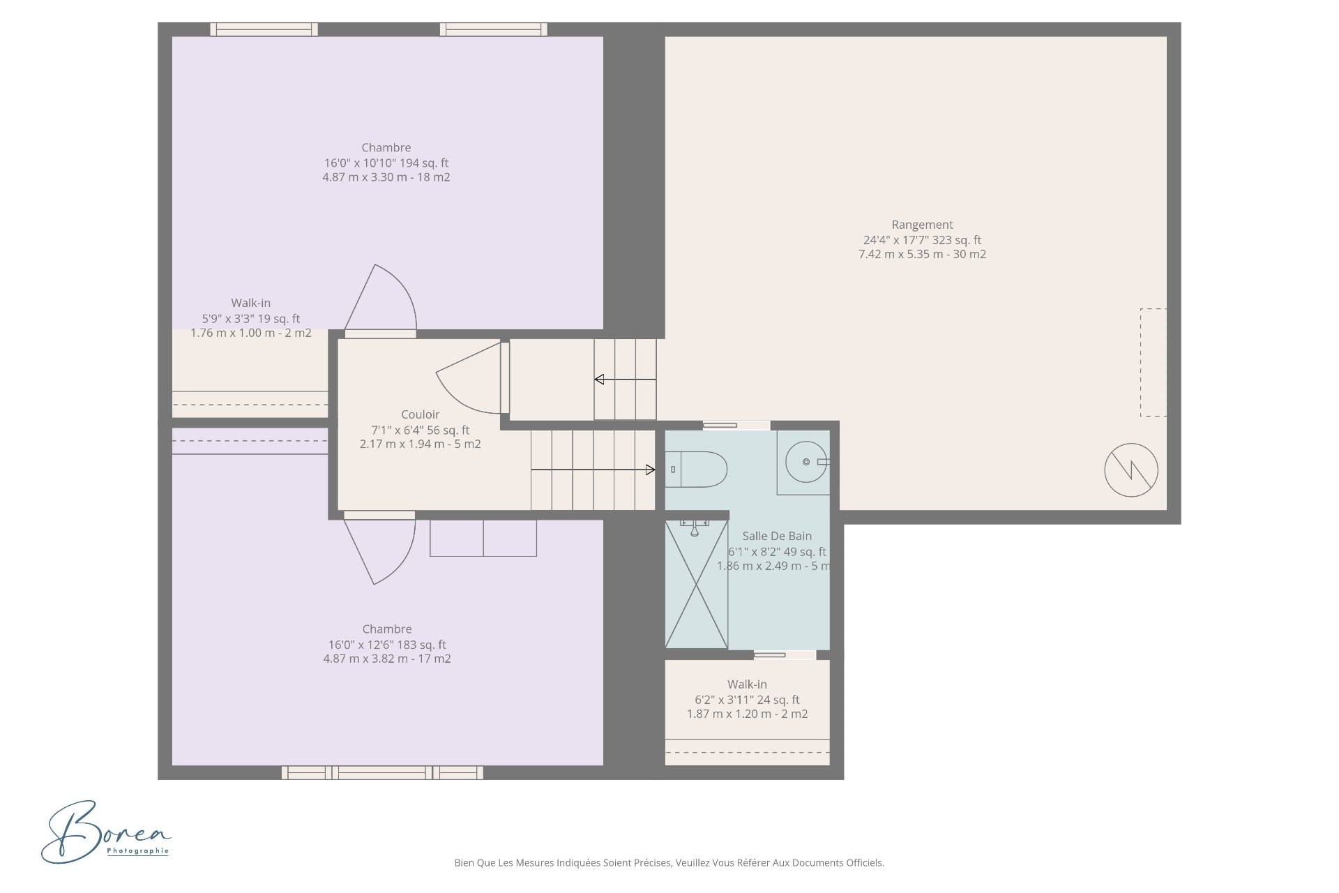
| Pièce | Niveau | Dimensions | Couvre plancher |
|---|---|---|---|
| Cuisine | 1er niveau/RDC | 14.6x17.0 P | Céramique |
| Salle à manger | 1er niveau/RDC | 13.1x17.5 P | Céramique |
| Salon | 1er niveau/RDC | 19.8x11.7 P | Céramique |
| Hall d'entrée | 1er niveau/RDC | 12.11x7.9 P | Céramique |
| Salle de bains | 1er niveau/RDC | 6.8x5.10 P | Céramique |
| Chambre à coucher principale | 2ième étage | 14.5x14.2 P | Plancher flottant |
| Chambre à coucher | 2ième étage | 13.4x9.7 P | Plancher flottant |
| Chambre à coucher | 2ième étage | 9.6x9.9 P | Plancher flottant |
| Salle de bains | 2ième étage | 10.2x7.0 P | Céramique |
| Chambre à coucher | Sous-sol | 10.6x16.2 P | Linoléum |
| Chambre à coucher | Sous-sol | 16.2x8.8 P | Linoléum |
| Rangement | Sous-sol 2 | 19.3x16.11 P | Béton |
| Salle de bains | Sous-sol 2 | 8.4x6.7 P | Céramique |
Taxes et dépenses
| Taxes municipales | 4 788 $ |
| Taxes scolaires | 433 $ |
Bâtiment et intérieur de la propriété
| Chambres | 5 |
| Salles de bain | 3 |
| Nombre de pièces | 14 |
| Nombre de chambres hors sol | 3 |
| Nombre de chambres au sous-sol | 2 |
| Aire habitable | 1800 PC |
| Éléments inclus lors de la vente | Le poêle, le réfrigérateur, la laveuse et la sécheuse, le lave-vaisselle, la tondeuse électrique, table de ping pong et air hockey ainsi que certains pôles et rideaux. |
| Éléments exclus lors de la vente | Certains pôles et rideaux ainsi que la borne de recharge pour voiture électrique (le branchement demeurera toutefois en place). Le spa (peut être inclus durant la négociation, il est neuf 2023). |
| Dimension de la façade du bâtiment | 11.68 M |
| Dimension de la profondeur du bâtiment | 11.77 M |
| Superficie du terrain | 472.8 MC |
| Dimension de la façade du terrain | 15.5 M |
| Dimension de la profondeur du terrain | 30.5 M |
| Année de construction | 1986 |
| Évaluation municipale (terrain) | 189 100 $ |
| Évaluation municipale (bâtiment) | 451 900 $ |
| Évaluation municipale (total) | 641 000 $ |
| Année d'évaluation | 2025 |
| Bâtiment irrégulier | Oui |
| Superficie du bâtiment | 114 MC |
| Allée | Asphalte, Pavé uni |
| Aménagement du terrain | Terrain/cour bordé de haies |
| Armoires | Thermoplastique |
| Mode de chauffage | Autre, Plinthes électriques |
| Approvisionnement en eau | Municipalité |
| Énergie pour le chauffage | Électricité |
| Équipement disponible | Porte de garage électrique, Thermopompe murale |
| Fenêtres | PVC |
| Fondation | Béton coulé |
| Garage | Attaché, Simple largeur, Chauffé |
| Revêtements | Brique, Vinyle |
| Salle de bains/salle d'eau | Douche indépendante |
| Sous-sol | Partiellement aménagé |
| Stationnement | Extérieur, Au garage |
| Système d'égouts | Municipal |
| Type de fenêtre | Manivelle |
| Toiture | Bardeaux d'asphalte |
| Topographie | Plat |
| Zonage | Résidentiel |
Addendas
| Maison unifamiliale à paliers multiples offrant 1800 pc de |
| confort et de style. |
| 5 chambres à coucher : 3 à l'étage et 2 au sous-sol, |
| parfaites pour une grande famille ou pour créer bureaux et |
| espaces polyvalents. |
| Rénovations majeures et magnifiques : look moderne, |
| lumineux et pratique, maximisant chaque espace de la maison. |
| Grand espace de vie à aire ouverte avec céramique au |
| rez-de-chaussée, idéal pour accueillir famille et amis. |
| Cuisine spacieuse et fonctionnelle, rénovée avec des |
| matériaux de qualité et un design contemporain. |
| 3 salles de bains complètes, soigneusement rénovées pour |
| allier confort et style. |
| Planchers chauffants partout au rez-de-chaussée et dans la |
| salle de bain à l'étage pour un confort optimal. |
| Garage attenant, pratique pour vos véhicules et rangement |
| supplémentaire. |
| Palier multiple, apportant charme et cachet unique à la |
| propriété. |
| Profitez d'un espace de vie optimisé avec énormément de |
| rangement à chaque niveau. |
| Grande entrée et nombreux rangements, optimisant |
| l'organisation et la fonctionnalité au quotidien. |
| Cour arrière invitante, parfaite pour les moments de |
| détente et les activités extérieures. |
| Située dans le centre-ville de Gatineau, à proximité de : |
| Écoles, garderies et parcs pour toute la famille |
| Commerces, restaurants et cafés branchés |
| Accès rapide aux transports et aux grands axes routiers |
| Services essentiels et commodités à quelques minutes à pied |
| Maison lumineuse et bien pensée, offrant un mélange unique |
| de confort, modernité et cachet. |
| C'est la propriété que vous recherchiez à Gatineau, prête à |
| accueillir votre famille et vos projets de vie. |












































