Gatineau (Aylmer)
Description de la propriété
Secteur Hull. Belle maison en rangée avec garage située sur une petite rue privée et tranquille, directement en avant de l'école. Rez-de-chaussée de concept aire ouverte pouvant bien accueillir vos invités. De la salle à manger vous avez accès à votre cour arrière. A l'étage, présentement la 3e chambre à coucher est utilisée comme loft ou salle familiale mais pourrait être une 3e chambre à coucher. Grande chambre des maîtres avec la salle de bains communicante qui vous offre une grande douche en verre de 3' X 5' et le bain séparé. L'emplacement pour laveuse et sécheuse se trouve aussi à l'étage. (Voir addenda)
Détails
Proximité
Cegep, Parc-espace vert, École primaire, École secondaire, Transport en commun, Piste cyclable, Ski de fond, Garderie/CPE
Dimension des pièces
| Pièce | Niveau | Dimensions | Couvre plancher |
|---|---|---|---|
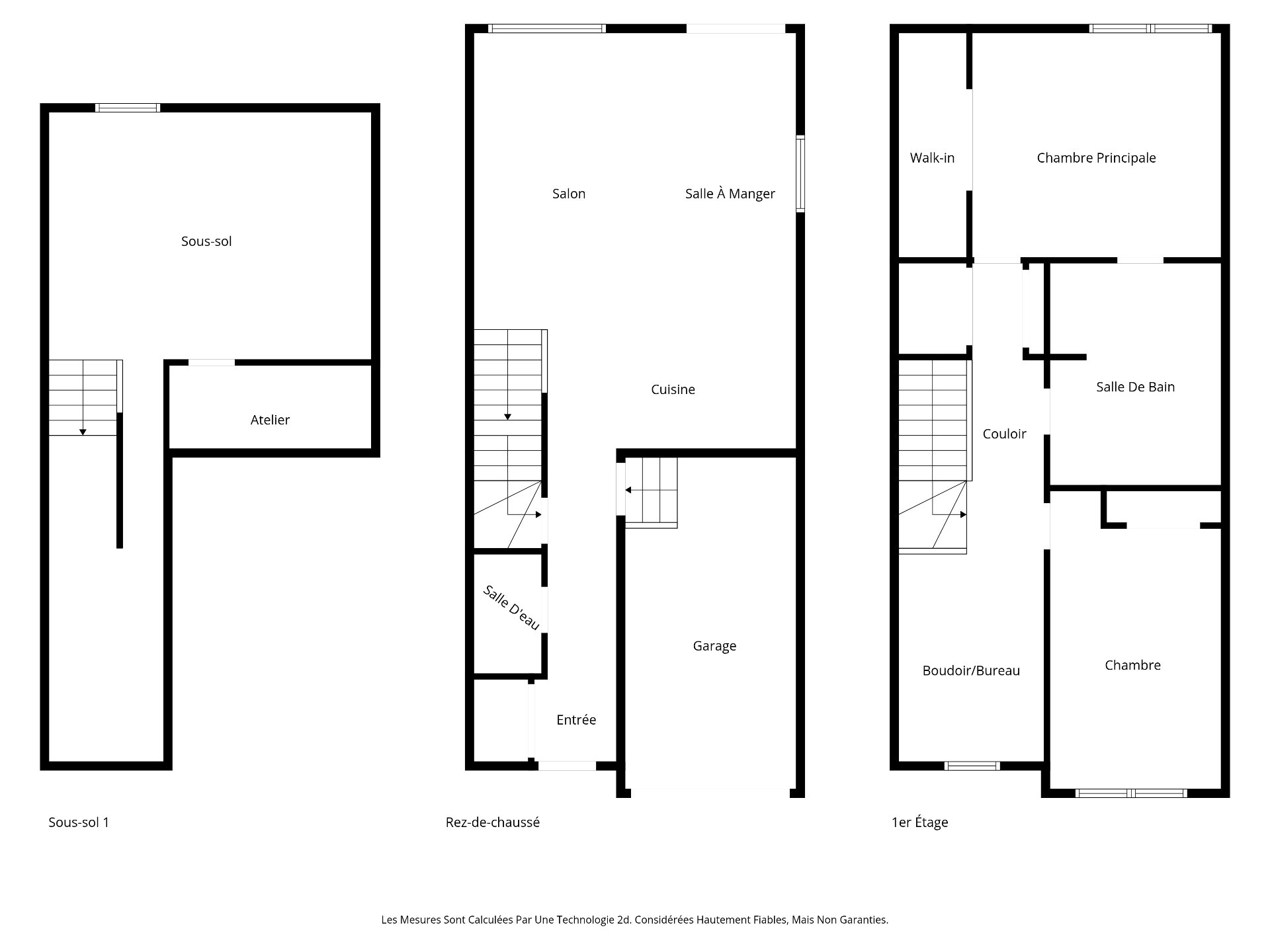
| Hall d'entrée | 1er niveau/RDC | 5.11x5.0 P | Céramique |
| Salle d'eau | 1er niveau/RDC | 3.5x5.11 P | Céramique |
| Cuisine | 1er niveau/RDC | 11.0x11.0 P | Céramique |
| Salle à manger | 1er niveau/RDC | 8.2x11.4 P | Bois |
| Salon | 1er niveau/RDC | 13.3x9.4 P | Bois |
| Chambre à coucher principale | 2ième étage | 13.11x14.6 P | Tapis |
| Salle de bains | 2ième étage | 9.7x12.6 P | Céramique |
| Chambre à coucher | 2ième étage | 9.8x14.5 P | Tapis |
| Bureau à domicile | 2ième étage | 12.9x8.4 P | Tapis |
Taxes et dépenses
| Taxes municipales | 4 444 $ |
| Taxes scolaires | 376 $ |
| Frais commun/Loyer de base | 912 $ |
Bâtiment et intérieur de la propriété
| Chambres | 3 |
| Salles de bain | 1 |
| Salles d'eau | 1 |
| Nombre de pièces | 9 |
| Nombre de chambres hors sol | 3 |
| Aire habitable | 1600 PC |
| Délai d'occupation prévu | 60 jours |
| Éléments inclus lors de la vente | Cuisinière, réfrigérateur, lave-vaisselle, laveuse, sécheuse. |
| Éléments exclus lors de la vente | Rideaux. Tous les luminaires(seront remplacés par les originaux). Chauffe-eau et fournaise loués. |
| Dimension de la façade du bâtiment | 20 P |
| Dimension de la profondeur du bâtiment | 47 P |
| Superficie du terrain | 2898 PC |
| Dimension de la façade du terrain | 24 P |
| Dimension de la profondeur du terrain | 120 P |
| Année de construction | 2016 |
| Évaluation municipale (terrain) | 124 000 $ |
| Évaluation municipale (bâtiment) | 427 900 $ |
| Évaluation municipale (total) | 551 900 $ |
| Année d'évaluation | 2026 |
| Bâtiment irrégulier | Oui |
| Allée | Asphalte |
| Aménagement du terrain | Paysager |
| Armoires | Mélamine |
| Mode de chauffage | Air soufflé |
| Approvisionnement en eau | Municipalité |
| Énergie pour le chauffage | Gaz naturel |
| Fenêtres | PVC |
| Fondation | Autre |
| Garage | Attaché |
| Appareils en location | Appareils de chauffage, Chauffe-eau |
| Revêtements | Bois, Vinyle, Pierre, Brique |
| Particularités | Cul-de-sac, Rue privée |
| Salle de bains/salle d'eau | Attenante à la chambre principale |
| Sous-sol | Non aménagé |
| Stationnement | Extérieur, Au garage |
| Système d'égouts | Municipal |
| Type de fenêtre | Manivelle |
| Toiture | Bardeaux d'asphalte |
| Zonage | Résidentiel |
Addendas
| * Le sous-sol n'est pas aménagé alors cela vous laisse |
| l'opportunité de l'aménager selon vos besoins. |
| * Le Plateau de la Capitale vous offre toutes les |
| commodités dont vous avez besoin en étant à distance de |
| marche du Parc de la Gatineau et à proximité d'Ottawa. |





























