Otter Lake
Après TPS/TVQ et remboursements si applicable
Description de la propriété
Superbe maison neuve à construire de style moderne, érigée sur dalle de béton, offrant confort et efficacité. Cette propriété bénéficie de la garantie GCR de 5 ans, vous assurant une tranquillité d'esprit. Située dans le nouveau projet domiciliaire Otter Lake Village, à seulement 1 h 20 de Gatineau/Ottawa, cette propriété profite d'un emplacement idéal, à distance de marche de l'école et des services. Offre promotionnelle : recevez sans frais un plancher radiant ainsi qu'une thermopompe, pour un confort optimal en toute saison. Une occasion unique de devenir propriétaire d'une maison moderne dans un environnement paisible et recherché.
Détails
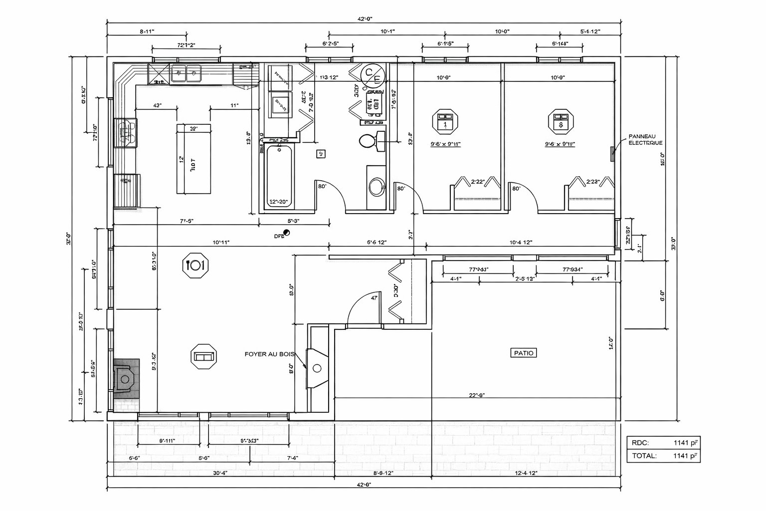
Dimension des pièces
| Pièce | Niveau | Dimensions | Couvre plancher |
|---|---|---|---|
| Salon | 1er niveau/RDC | 18.1x18.1 P | Couvre-sol souple |
| Chambre à coucher principale | 1er niveau/RDC | 9.6x9.11 P | Couvre-sol souple |
| Cuisine | 1er niveau/RDC | 12.9x10.9 P | Couvre-sol souple |
| Salle familiale | Sous-sol 2 | 28x36 P | Couvre-sol souple |
| Chambre à coucher | 1er niveau/RDC | 9.6x12.11 P | Couvre-sol souple |
Taxes et dépenses
| Taxes municipales | 0 $ |
| Taxes scolaires | 0 $ |
Bâtiment et intérieur de la propriété
| Chambres | 2 |
| Salles de bain | 1 |
| Nombre de pièces | 5 |
| Nombre de chambres hors sol | 2 |
| Aire habitable | 2016 PC |
| Délai d'occupation prévu | 15 jours |
| Dimension de la façade du bâtiment | 28 P |
| Dimension de la profondeur du bâtiment | 36 P |
| Superficie du terrain | 36061 MC |
| Dimension de la façade du terrain | 67 M |
| Dimension de la profondeur du terrain | 45 M |
| Évaluation municipale (terrain) | 13 900 $ |
| Évaluation municipale (total) | 13 900 $ |
| Année d'évaluation | 2025 |
| Code année construction | À construire |
| Superficie du bâtiment | 1008 PC |
| Terrain irrégulier | Oui |
| Mode de chauffage | Plinthes électriques, Radiant |
| Approvisionnement en eau | Puits artésien |
| Énergie pour le chauffage | Électricité |
| Fondation | Béton coulé |
| Sous-sol | 6 pieds et plus, Non aménagé |
| Système d'égouts | Champ d'épuration, Fosse septique |
| Toiture | Membrane élastomère |
| Vue | Panoramique |
| Zonage | Résidentiel |
Addendas
| Contacter Jonathan Houde Courtier immobilier RE/MAX |
| 819-351-0111 |
| Inclusion |
| Finitions intérieures |
| Gypse |
| Peinture blanche |
| Plancher de vinyle au choix |
| Portes et poignées intérieures |
| Cadrages et plinthes en MDF |
| Escalier en particule et OSB (si applicable) |
| Salle de bain |
| Céramique salle de bain |
| Panneau décoratif ou céramique douche |
| Bain douche |
| Robinetteries |
| Vanité |
| Miroir |
| Espace pour la laveuse et la sécheuse |
| Cuisine |
| Comptoir stratifié |
| Armoire PVC de 8' avec panneau décoratif de 9' |
| Évier double en acier inoxydable |
| Robinetterie |
| Hotte de poêle (Stainless) |
| Électricité |
| Panneau de 200 ampères et mât électrique incluant les |
| disjoncteurs |
| Plinthes électriques et thermostats électroniques |
| Interrupteurs et prises électriques intérieures et |
| extérieures |
| Luminaires extérieurs |
| Détecteurs de fumée électriques / batterie |
| Échangeur d'air, récupérateur de chaleur |
| Prise pour borne de recharge véhicule électrique |
| Charpente |
| Isolation des murs laine R20 + Enermax |
| Isolation du toit R40 + par vapeur |
| Plafond cathédrale si applicable |
| Plafond de 9' RDC |
| Plafond de 8' 2e Étage |
| Plafond en pin 2e Étage |
| Finition extérieur |
| Porte et fenêtre extérieur PVC Noir |
| Bas de mur en façade simili pierre |
| Revêtement type Canexel en façade, couleur au choix |
| Vinyle de couleur standard pour les autres cotés |
| Poutre de bois si applicable |
| Toiture en bardeau au choix de couleur garantie 25 ans |
| Porte d'acier isolée, porte patio et poignées si applicable |
| Fascias et soffites noir |
| Stationnement en gravier |
| Plomberie |
| Accessoire de plomberie de base chromé |
| Toilette de base 2 pièces |
| Bain acrylique |
| Douche téléphone |
| Tuyauterie en Pex |
| Chauffe-eau électrique 40 gallons |
| Fondation |
| Dalle de béton coulée |
| Mur de fondation contre la gelée |
| Crépi de ciment sur les murs de la fondation |
| Services |
| Système septique standard de 2 chambres à coucher |
| ** GARANTIE GRC DE 5 ANS ** |
| **PROMO POMPE À CHALEUR GRATUITE** |
| **PROMO PLANCHER RADIANT GRATUIT** |




















