Notre-Dame-de-Pontmain
Description de la propriété
Superbe propriété ayant subit une transformation intemporelle au fil des dernières années. Nichée au bord du Lac des Ours elle offre 4 chambres spacieuses et 2 salles de bain complètes, immense terrasse fermée, chauffée et avec vue sur l'eau, garage double, salle familiale avec walkout. Elle vous séduira par son design lumineux, fenestration abondante, plafonds cathédrales avec poutres de bois et ses vues imprenables sur l'eau. Idéale comme résidence principale, chalet 4 saisons ou investissement, avec location à court terme permise. Un cadre unique alliant confort, modernité et nature. Venez réécrire vos anecdotes d'été avec vos proches ici!
Détails
Dimension des pièces
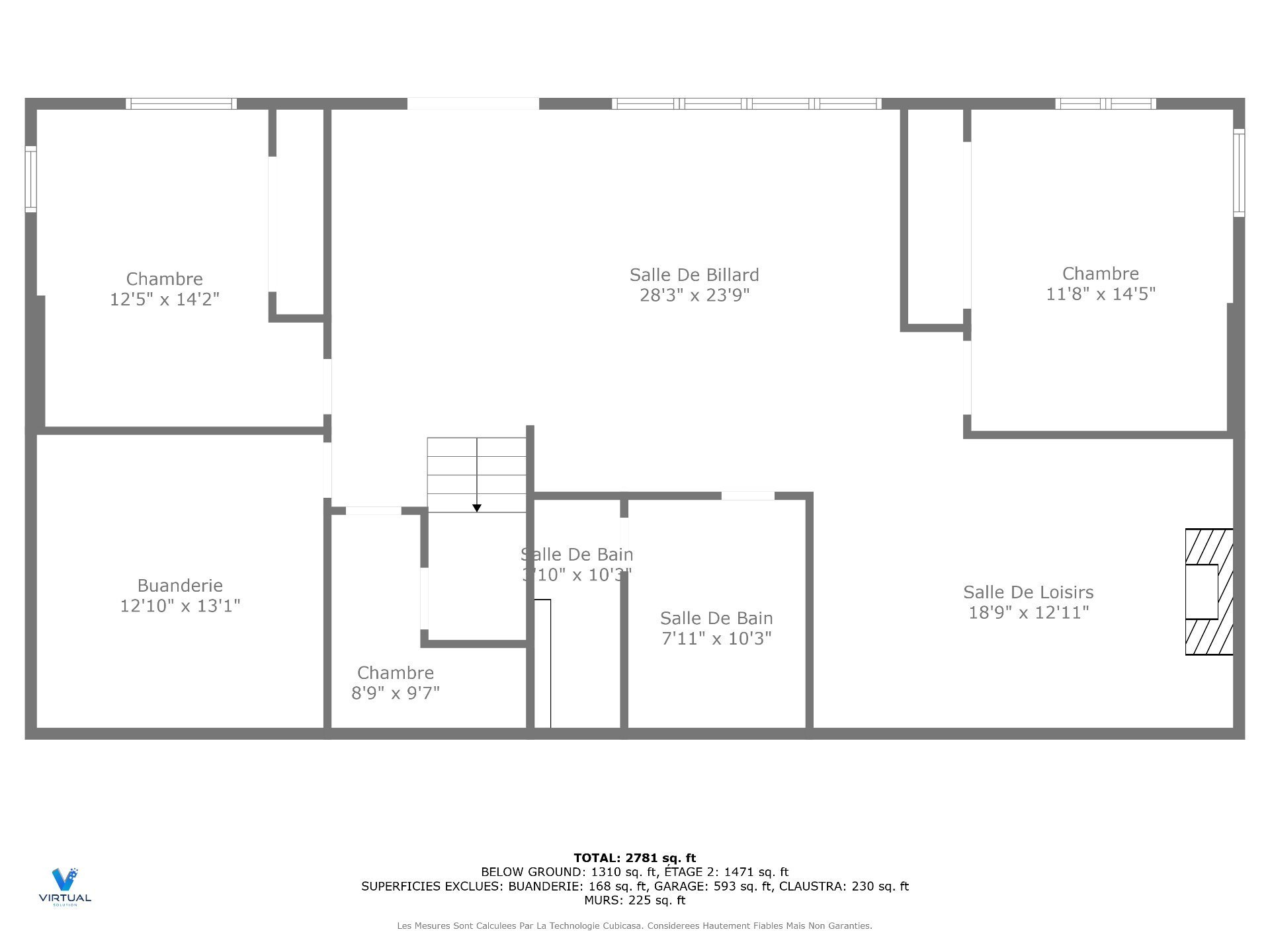
| Pièce | Niveau | Dimensions | Couvre plancher |
|---|---|---|---|
| Hall d'entrée | 1er niveau/RDC | 6.3x8.10 P | Céramique |
| Salon | 1er niveau/RDC | 15.4x13.7 P | Bois |
| Cuisine | 1er niveau/RDC | 16.8x12.4 P | Céramique |
| Salle à manger | 1er niveau/RDC | 12.9x12.4 P | Céramique |
| Chambre à coucher principale | 1er niveau/RDC | 19.3x12.0 P | Bois |
| Salle de bains | 1er niveau/RDC | 10.11x11.10 P | Céramique |
| Salle de lavage | 1er niveau/RDC | 11.10x8.6 P | Céramique |
| Chambre à coucher | 1er niveau/RDC | 11.10x11.2 P | Bois |
| Rangement | 1er niveau/RDC | 6.5x4.10 P | Bois |
| Salle familiale | Sous-sol | 28.3x23.9 P | Plancher flottant |
| Chambre à coucher | Sous-sol | 14.2x12.5 P | Plancher flottant |
| Salle de bains | Sous-sol | 10.3x7.11 P | Céramique |
| Chambre à coucher | Sous-sol | 14.5x11.8 P | Plancher flottant |
| Salon | Sous-sol | 18.9x12.11 P | Plancher flottant |
| Salle mécanique | Sous-sol | 13.1x12.10 P | Béton |
| Salle de pêche | Sous-sol | 9.7x8.9 P | Plancher flottant |
Taxes et dépenses
| Taxes municipales | 2 700 $ |
| Taxes scolaires | 200 $ |
Bâtiment et intérieur de la propriété
| Chambres | 4 |
| Salles de bain | 2 |
| Nombre de pièces | 16 |
| Nombre de chambres hors sol | 2 |
| Nombre de chambres au sous-sol | 2 |
| Aire habitable | 217.9 MC |
| Éléments inclus lors de la vente | Tous les électroménagers, tous les meubles, Luminaires, toile, table de billard, table de ping-pong, table de baby foot, aspirateur central, chauffe-eau, fournaise, système d'adoucisseur d'eau UV, génératrice, prise niveau 2 pour voitures électrique. |
| Éléments exclus lors de la vente | Système de caméras et système d'alarme, Téléviseur et système de son (Sous-sol), bateau, tracteur à gazon et effets personnel des vendeur. |
| Dimension de la façade du bâtiment | 17.05 M |
| Dimension de la profondeur du bâtiment | 17.2 M |
| Superficie du terrain | 5306.4 MC |
| Dimension de la façade du terrain | 50.88 M |
| Dimension de la profondeur du terrain | 87.05 M |
| Année de construction | 2009 |
| Évaluation municipale (terrain) | 164 000 $ |
| Évaluation municipale (bâtiment) | 491 400 $ |
| Évaluation municipale (total) | 655 400 $ |
| Année d'évaluation | 2026 |
| Bâtiment irrégulier | Oui |
| Superficie du bâtiment | 214 MC |
| Terrain irrégulier | Oui |
| Allée | Double largeur ou plus, Non pavée |
| Aménagement du terrain | Terrain/cour bordé de haies, Paysager |
| Armoires | Bois |
| Mode de chauffage | Air soufflé |
| Approvisionnement en eau | Puits artésien |
| Énergie pour le chauffage | Gaz naturel |
| Équipement disponible | Meublé, Adoucisseur d'eau, Échangeur d'air, Climatiseur central, Système d'alarme, Borne de recharge - niveau 2, Porte de garage électrique, Installation aspirateur central |
| Fenêtres | PVC |
| Fondation | Béton coulé |
| Foyers-poêles | Foyer au gaz |
| Garage | Attaché, Double largeur ou plus |
| Revêtements | Brique, Vinyle |
| Particularités | Accès à l'eau, Villégiature/Chalet, Navigable, Bordé par l'eau, Aucun voisin à l'arrière |
| Restrictions/Permissions | Location permise court terme, Non-fumeurs |
| Salle de bains/salle d'eau | Baignoire à remous, Douche indépendante |
| Services disponibles | Détecteur d'incendie |
| Sous-sol | 6 pieds et plus, Entrée indépendante, Totalement aménagé |
| Stationnement | Extérieur, Au garage |
| Système d'égouts | Champ d'épuration, Fosse septique |
| Type de fenêtre | Guillotine, Porte-fenêtre, Manivelle |
| Toiture | Bardeaux d'asphalte |
| Topographie | En pente, Plat |
| Vue | Sur l'eau, Panoramique, Sur la montagne |
| Zonage | Résidentiel, Villégiature |
Addendas
| **Propriété d'exception au bord de l'eau** |
| *Le zonage permet les établissements d'hébergement, donc la |
| location à court terme peut être autorisée. Une demande |
| doit être présentée à la CITQ et à la municipalité. |
| Rez-de-chaussée : |
| *Fenêtres aux 4 côtés, becaucoup de luminosité naturelle. |
| *Concept à aire ouverte avec plafond cathédrale munit de |
| poutres en bois dans le salon et la salle à manger. |
| *Planchers de bois franc en érable et de céramique. |
| *Cuisine avec énormément de rangement avec un ilot en un |
| morceau et des comptoirs en granit à 2pouces d'paisseur. |
| *Chambres des maîtres avec walk-in et armoires de rangement. |
| *Espace laveuse/sécheuse au RDC et donnant accès au garage. |
| *Plancher chauffant dans la salle de bain principale. |
| *Vue panoramique sur l'eau, du salon, de la chambre des |
| maîtres, salle à manger et du patio! |
| *Poêle au gaz propane au centre de l'aire ouverte. |
| *Accès directement au RDC sur le vaste patio (gazebo avec |
| moustiquaires inclus) |
| *Air climatisé centrale, adoucisseur d'eau au sel. |
| *Immense Douche indépendante en verre et bain |
| surdumensionné pour 2 personnes. |
| Sous-sol : |
| *Totalement aménagé avec espace de jeux et salon privé. |
| *Grande salle familiale avec vue sur l'eau et walk-out |
| *2 chambes aux extrémités pour recevoir vos invités. |
| *Atelier de pêche avec armoires de rangement. |
| Garage : |
| *Attaché, double largeur, isolé et chauffé |
| Extérieur : |
| *Vaste patio avec une vue directe sur l'eau. |
| *Une grange pouvant servir de remise. |
| *Grande entrée en gravier et caméras partout. |
| *Terrain de de presque 60 000 pieds carrés. |
| *Connection pour BBQ sur gros réservoir de propane. |





















































