Cantley
Description de la propriété
Découvrez ce superbe bungalow de 4 chambres et 3 salles de bain, niché dans un cul-de-sac paisible à Cantley. Cette propriété moderne, entretenue avec un soin méticuleux, offre une luminosité exceptionnelle grâce à sa fenestration abondante. Le coeur de la maison propose un espace de vie spectaculaire avec un îlot de cuisine de 10 pieds, des comptoirs en quartz et un grand garde-manger de style "walk-in pantry" attenant, idéal pour les passionnés de cuisine. Vous serez séduit par le vaste terrain paysager offrant intimité et tranquillité dans votre spa. La propriété comprend également un grand garage double détaché, isolé et chauffé.
Détails
Proximité
Autoroute/Voie rapide, Golf, Transport en commun, Ski alpin, Ski de fond, Garderie/CPE
Dimension des pièces
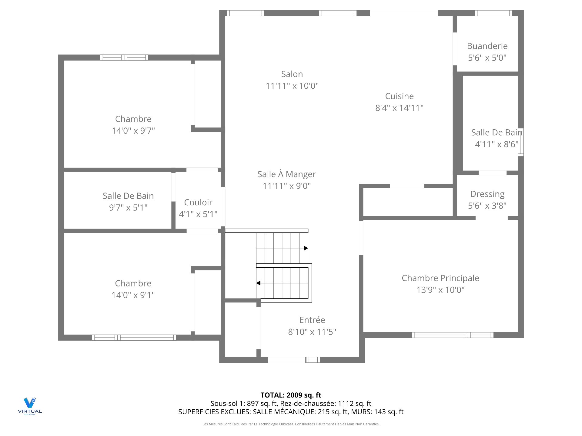
| Pièce | Niveau | Dimensions | Couvre plancher |
|---|---|---|---|
| Hall d'entrée | 1er niveau/RDC | 8.10x11.5 P | Céramique |
| Salle à manger | 1er niveau/RDC | 11.11x9 P | Céramique |
| Salon | 1er niveau/RDC | 11.11x10 P | Bois |
| Cuisine | 1er niveau/RDC | 8.4x14.11 P | Céramique |
| Salle de lavage | 1er niveau/RDC | 5.6x5 P | Céramique |
| Chambre à coucher principale | 1er niveau/RDC | 13.9x10 P | Bois |
| walk-in | 1er niveau/RDC | 5.6x3.8 P | Bois |
| Salle de bains | 1er niveau/RDC | 4.11x8.6 P | Céramique |
| Chambre à coucher | 1er niveau/RDC | 14x9.7 P | Bois |
| Chambre à coucher | 1er niveau/RDC | 14x9.1 P | Bois |
| Salle de bains | 1er niveau/RDC | 9.7x5.1 P | Céramique |
| Salle familiale | Sous-sol | 26.1x28.2 P | Couvre-sol souple |
| Chambre à coucher | Sous-sol | 13.11x11.10 P | Couvre-sol souple |
| Salle de bains | Sous-sol | 11.11x5.5 P | Céramique |
| salle méchanique | Sous-sol | 14x12.4 P | Béton |
| salle méchanique | Sous-sol | 12.3x4.11 P | Béton |
Taxes et dépenses
| Taxes municipales | 3 990 $ |
| Taxes scolaires | 233 $ |
Bâtiment et intérieur de la propriété
| Chambres | 4 |
| Salles de bain | 3 |
| Nombre de pièces | 16 |
| Nombre de chambres hors sol | 3 |
| Nombre de chambres au sous-sol | 1 |
| Aire habitable | 114.8 MC |
| Délai d'occupation prévu | 60 jours |
| Éléments inclus lors de la vente | Rideaux et poles, aspirateur central et accessoires, spa (sept 2022), gazebo (sept 2022), remise (sept. 2022), bacs à fleur (derrière le garage), lave-vaisselle |
| Éléments exclus lors de la vente | Foyers extérieurs, foyer électrique (intérieur), bacs à fleur en plastiques, deux réfrigérateurs, four, micro-onde, congélateur, meubles extérieurs et intérieurs. |
| Dimension de la façade du bâtiment | 13.01 M |
| Dimension de la profondeur du bâtiment | 9.37 M |
| Superficie du terrain | 6313.6 MC |
| Dimension de la façade du terrain | 60.46 M |
| Dimension de la profondeur du terrain | 109.95 M |
| Année de construction | 2020 |
| Évaluation municipale (terrain) | 91 400 $ |
| Évaluation municipale (bâtiment) | 479 800 $ |
| Évaluation municipale (total) | 571 200 $ |
| Année d'évaluation | 2026 |
| Bâtiment irrégulier | Oui |
| Terrain irrégulier | Oui |
| Allée | Double largeur ou plus, Non pavée |
| Aménagement du terrain | Paysager |
| Armoires | Mélamine |
| Mode de chauffage | Air soufflé |
| Approvisionnement en eau | Puits artésien |
| Énergie pour le chauffage | Électricité |
| Équipement disponible | Adoucisseur d'eau, Thermopompe centrale, Échangeur d'air, Installation aspirateur central |
| Fenêtres | PVC |
| Fondation | Béton coulé |
| Garage | Chauffé, Détaché |
| Revêtements | Autre, Vinyle, Pierre, Brique |
| Particularités | Aucun voisin à l'arrière, Cul-de-sac, Boisé |
| Salle de bains/salle d'eau | Attenante à la chambre principale, Douche indépendante |
| Sous-sol | 6 pieds et plus, Totalement aménagé |
| Stationnement | Extérieur, Au garage |
| Système d'égouts | Système BIONEST |
| Type de fenêtre | Manivelle |
| Toiture | Bardeaux d'asphalte |
| Topographie | Plat |
| Vue | Sur la montagne, Panoramique |
| Zonage | Résidentiel |
Addendas
| L'ÉLÉGANCE AU COEUR DE LA NATURE : UN HAVRE DE PAIX MODERNE |
| À CANTLEY |
| Découvrez cette propriété d'exception, un bungalow |
| contemporain où le luxe discret rencontre la sérénité de la |
| forêt. Située à la fin d'un cul-de-sac paisible, cette |
| demeure de 4 chambres à coucher et 3 salles de bain |
| complètes représente l'équilibre parfait entre un design |
| sophistiqué et une fonctionnalité pensée pour la vie de |
| famille moderne. |
| + Une Luminosité Inégalée et un Design Épuré |
| Vous serez frappé par la clarté qui inonde chaque pièce. |
| Grâce à une fenestration stratégiquement positionnée, la |
| lumière naturelle agit comme un véritable élément |
| architectural, mettant en valeur les lignes épurées et les |
| matériaux haut de gamme. |
| + Le Rêve des Passionnés de Cuisine |
| Le coeur de la maison bat dans l'aire ouverte, où la |
| cuisine se transforme en un espace de réception magistral. |
| Dominée par un îlot central de 10 pieds, elle invite à la |
| convivialité. Les comptoirs en quartz offrent une surface |
| de travail généreuse, tandis que le vaste garde-manger de |
| style « walk-in pantry » permet une organisation |
| impeccable, dissimulant les petits électroménagers pour |
| préserver l'esthétique minimaliste de la pièce. Que ce soit |
| pour un café matinal rapide ou pour préparer un festin |
| gastronomique, cet espace répondra aux exigences des chefs |
| les plus pointilleux. |
| + Un Sanctuaire Extérieur Privé |
| Le terrain, vaste et paysager avec art, est une extension |
| naturelle de l'espace de vie intérieur. Ici, l'intimité est |
| totale. Imaginez vos soirées d'été sous le grand gazebo du |
| patio, suivies d'un moment de détente absolue dans le spa |
| privé sous les étoiles. La tranquillité du voisinage et |
| l'absence de circulation font de cette cour arrière un |
| véritable sanctuaire où le temps semble s'arrêter. |
| + Espace et Polyvalence |
| Avec ses quatre chambres spacieuses, la propriété s'adapte |
| à tous vos besoins : chambres d'enfants, suites d'invités |
| ou bureau à domicile pour le télétravail. Les trois salles |
| de bain complètes, finies avec des matériaux de qualité, |
| assurent confort et fluidité lors des matins pressés. |
| + Le Garage : Le Paradis du Bricoleur |
| En plus du charme de la maison, la propriété comprend un |
| grand garage double détaché. Entièrement isolé et chauffé, |
| cet espace est bien plus qu'un simple lieu de |
| stationnement. C'est l'endroit idéal pour vos projets |
| mécaniques, un atelier de menuiserie ou pour ranger vos |
| véhicules récréatifs et équipements sportifs, le tout à |
| l'abri des intempéries. |
| + Un Emplacement de Choix |
| Vivre à Cantley, c'est choisir un mode de vie actif et |
| paisible, tout en restant à proximité des services |
| essentiels et des attraits de la région de l'Outaouais. Ne |
| manquez pas cette opportunité rare d'acquérir une résidence |
| où chaque détail a été pensé pour le bien-être de se de ses |
| occupants. Une visite suffit pour tomber sous le charme de |
| ce bijou niché dans son écrin de verdure. |















































































