Cantley
Description de la propriété
**AUBAINE** PRESTIGE, VUE PANORAMIQUE ET BI-GÉNÉRATION! Bienvenue dans cette unique et spacieuse propriété intergénérationnelle de plus de 4 000 PI.CA. Située dans un cul de sac, cette propriété d'exception offre un cadre de vie idéal pour les familles recherchant espace, confort et tranquillité. Vous serez charmés par ses pièces vastes et lumineuses, ses 4 chambres à coucher, ses 2 salles de bain complètes. Le logement intergénérationnel permet une grande flexibilité, avec une entrée indépendante. Prix sous l'évaluation municipale. Une opportunité exceptionnelle à saisir moins chère que le prix payé en 2022!
Détails
Proximité
Autoroute/Voie rapide, Golf, Parc-espace vert, École primaire, Ski alpin, Garderie/CPE
Dimension des pièces
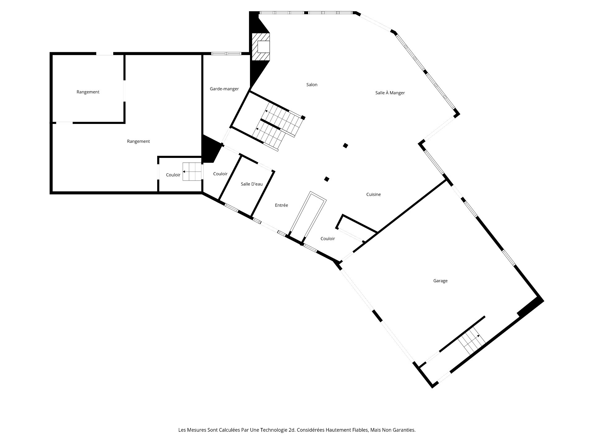
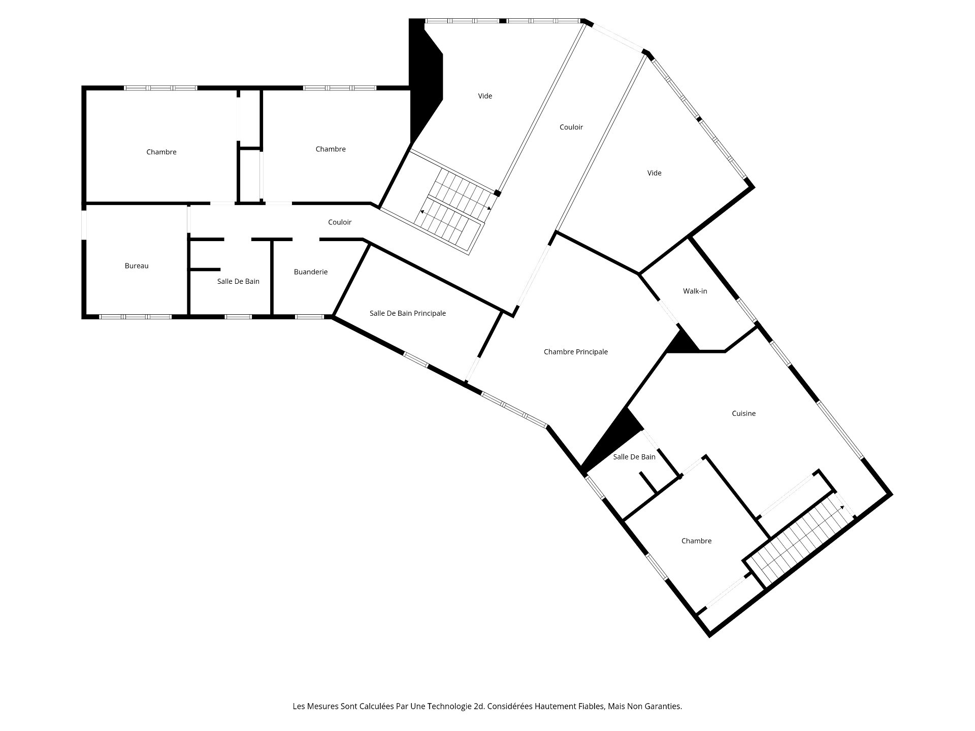
| Pièce | Niveau | Dimensions | Couvre plancher |
|---|---|---|---|
| Hall d'entrée | 2ième étage | 3.5x9.6 P | Céramique |
| Cuisine | 2ième étage | 22.3x16.0 P | Céramique et bois |
| Chambre à coucher | 2ième étage | 12.4x11.4 P | Bois |
| Salle de bains | 2ième étage | 8.5x6.5 P | Céramique |
| Hall d'entrée | 1er niveau/RDC | 6.10x9.3 P | Céramique |
| Cuisine | 1er niveau/RDC | 18.10x18.3 P | Céramique |
| Salle à manger | 1er niveau/RDC | 21.11x6.0 P | Bois |
| Salle d'eau | 1er niveau/RDC | 8.9x6.1 P | Céramique |
| Salon | 1er niveau/RDC | 17.7x21.11 P | Bois |
| Rangement | 1er niveau/RDC | 27.0x24.4 P | Béton |
| Rangement | 1er niveau/RDC | 14.9x8.2 P | Bois |
| Chambre à coucher principale | 2ième étage | 17.6x19.1 P | Bois |
| Salle de bains | 2ième étage | 15.7x8.8 P | Céramique |
| Salle de lavage | 2ième étage | 8.5x9.7 P | Céramique |
| Chambre à coucher | 2ième étage | 11.7x15.8 P | Bois |
| Chambre à coucher | 2ième étage | 11.7x16.4 P | Bois |
| Bureau à domicile | 2ième étage | 12.3x11.0 P | Bois |
| Salle familiale | Sous-sol | 40.10x47.0 P | Béton |
| Rangement | Sous-sol | 25.4x24.3 P | Béton |
| Salle de bains | Sous-sol | 6.4x12.6 P | Béton |
| Salle mécanique | Sous-sol | 11.0x12.3 P | Béton |
Taxes et dépenses
| Taxes municipales | 6 859 $ |
| Taxes scolaires | 675 $ |
Bâtiment et intérieur de la propriété
| Chambres | 4 |
| Salles de bain | 2 |
| Salles d'eau | 1 |
| Nombre de pièces | 18 |
| Nombre de chambres hors sol | 4 |
| Aire habitable | 3792 PC |
| Délai d'occupation prévu | 30 jours |
| Éléments inclus lors de la vente | Lave-vaisselle, réfrigérateur (2), cuisinière (2), laveuse et sécheuse, laveuse/sécheuse combinée dans la suite, support mural de télévision au salon, caméras (8) et système de sécurité, système de filtration d'eau, aspirateur central, rangement PAX dans |
| Superficie du terrain | 4947.8 MC |
| Année de construction | 2013 |
| Évaluation municipale (terrain) | 124 200 $ |
| Évaluation municipale (bâtiment) | 901 700 $ |
| Évaluation municipale (total) | 1 025 900 $ |
| Année d'évaluation | 2023 |
| Superficie du bâtiment | 2160 PC |
| Allée | Asphalte, Pavé uni, Double largeur ou plus |
| Aménagement du terrain | Patio, Paysager |
| Armoires | Thermoplastique |
| Mode de chauffage | Air soufflé, Plinthes électriques |
| Approvisionnement en eau | Puits artésien |
| Énergie pour le chauffage | Bois, Électricité |
| Équipement disponible | Échangeur d'air, Adoucisseur d'eau, Climatiseur mural, Climatiseur central, Borne de recharge - niveau 2, Système d'alarme, Installation aspirateur central |
| Fenêtres | PVC |
| Fondation | Béton coulé |
| Foyers-poêles | Foyer au bois, Poêle à bois |
| Garage | Attaché, Intégré, Double largeur ou plus |
| Revêtements | Autre, Pierre, Bois |
| Particularités | Aucun voisin à l'arrière, Intergénération, Cul-de-sac, Boisé |
| Salle de bains/salle d'eau | Attenante à la chambre principale, Douche indépendante |
| Sous-sol | 6 pieds et plus, Entrée indépendante, Non aménagé |
| Stationnement | Extérieur, Au garage |
| Système d'égouts | Champ d'épuration, Fosse septique |
| Type de fenêtre | Coulissante, Porte-fenêtre, Manivelle |
| Toiture | Bardeaux d'asphalte |
| Topographie | Escarpé |
| Vue | Sur la montagne, Panoramique |
| Zonage | Résidentiel |
Addendas
| ** Style unique et spacieuse |
| ** 4 000 pi. ca. |
| ** Avec logement intergénérationnel |
| ** 4 chambres à couchés |
| ** 2 salles de bains complètes + 1 salle d'eau |
| ** Garage double avec borne de recharge |
| ** Stationnement pour plusieurs voitures |
| ** Aspirateur central |
| ** Air climatisé central et mural |
| ** Échangeur d'air |
| ** Foyer au bois |
| ** Fenestration abondante |
| ** Terrain très boisé, privé. |
| ** Prix sous l'évaluation municipale |



















































