Gatineau (Aylmer)
Description de la propriété
Magnifique propriété jumelée de type « high ranch », idéalement située à quelques minutes à pied du centre-ville d'Aylmer. Cette maison lumineuse et bien entretenue offre 3 chambres à coucher, 1 salle de bain complète et une salle d'eau, une grande cuisine avec coin repas, ainsi qu'un salon chaleureux avec foyer et de grandes fenêtres laissant entrer une abondante lumière naturelle. Profitez d'une cour arrière spacieuse avec un beau jardin fleuri et un aménagement paysager réalisé avec soin.
Détails
Dimension des pièces
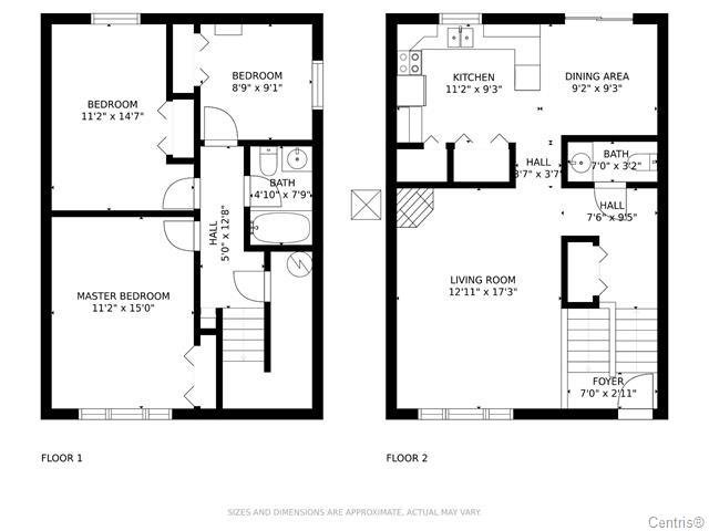
| Pièce | Niveau | Dimensions | Couvre plancher |
|---|---|---|---|
| Salon | 1er niveau/RDC | 17.3x12.1 P | Plancher flottant |
| Salle à manger | 1er niveau/RDC | 9.2x9.3 P | Plancher flottant |
| Cuisine | 1er niveau/RDC | 11.2x9.3 P | Linoléum |
| Salle d'eau | 1er niveau/RDC | 7x3.2 P | Linoléum |
| Chambre à coucher principale | Sous-sol | 15x11.2 P | Plancher flottant |
| Chambre à coucher | Sous-sol | 11.2x14.7 P | Plancher flottant |
| Chambre à coucher | Sous-sol | 8.9x9.1 P | Plancher flottant |
| Chambre à coucher | Sous-sol | 4.10x7.9 P | Linoléum |
Bâtiment et intérieur de la propriété
| Chambres | 3 |
| Salles de bain | 1 |
| Salles d'eau | 1 |
| Nombre de pièces | 8 |
| Nombre de chambres au sous-sol | 3 |
| Aire habitable | 707.19 PC |
| Délai d'occupation prévu | 15 jours |
| Éléments inclus lors de la vente | Entièrement meublé (tous les électroménagers de cuisine (Whirlpool, 2017), laveuse et sécheuse, lave-vaisselle, cuisinière et hotte, réfrigérateur, tous les luminaires, toutes les tringles, moustiquaires, miroirs, commode, lit queen avec matelas, 2 sofas, |
| Dimension de la façade du bâtiment | 33 P |
| Dimension de la profondeur du bâtiment | 121 P |
| Dimension de la façade du terrain | 33 P |
| Dimension de la profondeur du terrain | 121 P |





















