La Pêche
Description de la propriété
Condo unique bord de l'eau avec vue imprenable sur la rivière Gatineau au coeur du charmant village de Wakefield. Offrant une superficie exceptionnelle de 1 420pi², cette unité lumineuse bénéficie de fenêtres sur 3 côtés, inondant l'espace de lumière naturelle. Elle propose 2 grandes chambres, 2 salles de bain complètes et 1 espace bureau. Magnifiquement amélioré avec planchers de bois, cuisine haut de gamme avec îlot surdimensionné et garde-manger walk-in. Profitez de 2 balcons, 3 stationnements et rangement extérieur. Accès à une communauté recherchée avec piscine, marina, gym et plus. Un style de vie incomparable à 30 minutes d'Ottawa.
Détails
Proximité
Autoroute/Voie rapide, Golf, Hôpital, Parc-espace vert, École primaire, École secondaire, Transport en commun, Piste cyclable, Ski alpin, Ski de fond, Garderie/CPE
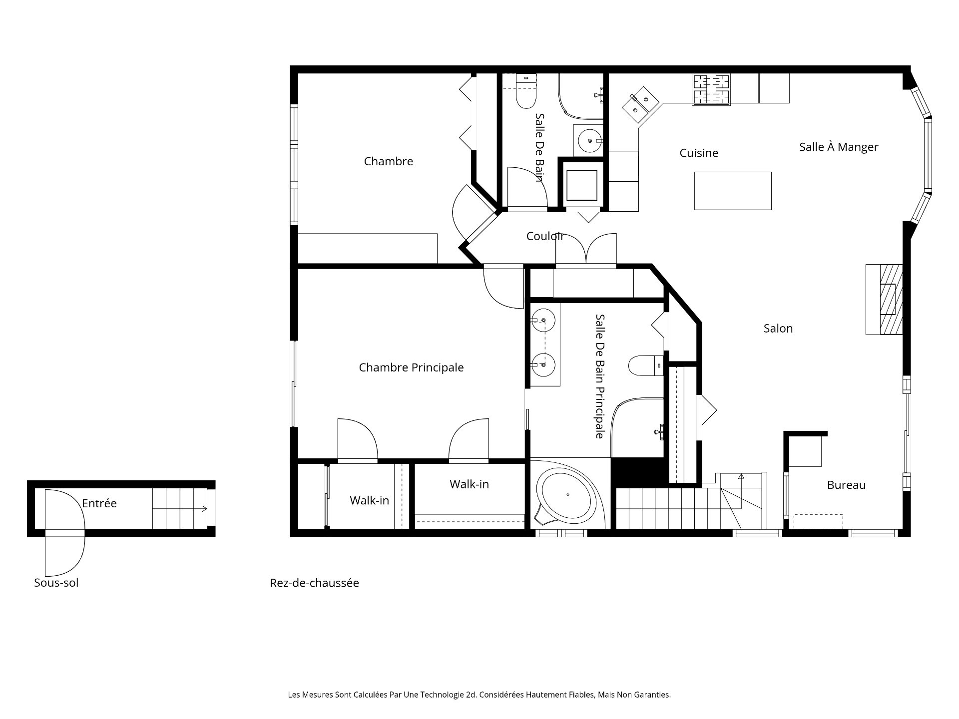
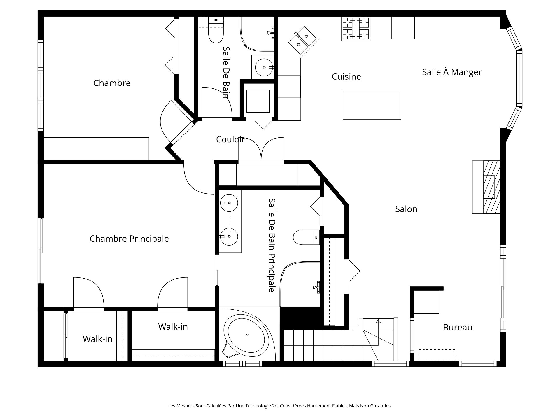
Dimension des pièces
| Pièce | Niveau | Dimensions | Couvre plancher |
|---|---|---|---|
| Hall d'entrée | 1er niveau/RDC | 4.0x4.0 P | Céramique |
| Salon | 1er niveau/RDC | 14.5x14.9 P | Bois |
| Bureau à domicile | 1er niveau/RDC | 7.3x8.5 P | Bois |
| Salle à manger | 1er niveau/RDC | 8.2x10.3 P | Bois |
| Cuisine | 1er niveau/RDC | 12.7x9.0 P | Céramique |
| Salle de bains | 1er niveau/RDC | 8.9x6.6 P | Céramique |
| Rangement | 1er niveau/RDC | 2.10x9.1 P | Céramique |
| Chambre à coucher | 1er niveau/RDC | 12.4x13.10 P | Bois |
| Chambre à coucher principale | 1er niveau/RDC | 12.11x16.2 P | Bois |
| Salle de bains | 1er niveau/RDC | 9.2x15.1 P | Céramique |
Taxes et dépenses
| Taxes scolaires | 364 $ |
| Taxes municipales | 4 041 $ |
| Coût d'énergie | 1 863 $ |
| Frais commun/Loyer de base | 6 732 $ |
| Frais de copropriété | 6 732 $ |
Bâtiment et intérieur de la propriété
| Frais de copropriété | 6 732 $ |
| Chambres | 2 |
| Salles de bain | 2 |
| Nombre de pièces | 12 |
| Nombre de chambres hors sol | 2 |
| Aire habitable | 130.7 MC |
| Délai d'occupation prévu | 15 jours |
| Éléments inclus lors de la vente | Réfrigérateur, plaque de cuisson, four encastré, lave-vaisselle, micro-ondes, laveuse sécheuse, deux climatiseurs muraux, lit escamotable Murphy, (sans matelas), stores et rideaux, auvent de patio, étagère de garde-manger, chauffe-eau, échangeur d'air, ra |
| Éléments exclus lors de la vente | Propane. |
| Superficie du terrain | 579.62 MC |
| Année de construction | 2005 |
| Évaluation municipale (terrain) | 145 600 $ |
| Évaluation municipale (bâtiment) | 467 600 $ |
| Évaluation municipale (total) | 613 200 $ |
| Année d'évaluation | 2026 |
| Type de copropriété | Divise |
| Étage du condo | 2 |
| Nombre d'étages | 2 |
| Allée | Non pavée |
| Aménagement du terrain | Patio, Paysager |
| Armoires | Bois |
| Mode de chauffage | Plinthes électriques |
| Approvisionnement en eau | Puits artésien |
| Énergie pour le chauffage | Électricité |
| Équipement disponible | Installation aspirateur central, Échangeur d'air, Climatiseur mural |
| Fenêtres | PVC |
| Foyers-poêles | Autre |
| Revêtements | Bois |
| Particularités | Bordé par l'eau, Navigable |
| Salle de bains/salle d'eau | Attenante à la chambre principale, Douche indépendante, Baignoire à remous |
| Services disponibles | Détecteur d'incendie, Salle d'exercice |
| Stationnement | Extérieur |
| Système d'égouts | Municipal |
| Type de fenêtre | Manivelle, Porte-fenêtre |
| Toiture | Bardeaux d'asphalte |
| Topographie | Plat |
| Vue | Sur l'eau, Sur la montagne |
| Zonage | Résidentiel |
Addendas
| - Superficie de 1 420 pi², bien au-dessus des standards |
| - Fenestration sur 3 côtés, offrant une luminosité |
| exceptionnelle toute la journée |
| - Vue directe sur la rivière Gatineau, sans vis-à-vis sur |
| les voisins |
| - 2 chambres à coucher et 2 salles de bain complètes |
| - Espace bureau semi-fermé avec rangement intégré |
| - 2 balcons, dont un avec auvent rétractable motorisé |
| (toile remplacée récemment) |
| - 3 espaces de stationnement et espace de rangement |
| extérieur |
| - Cuisine haut de gamme avec armoires en bois (frêne) |
| pleine hauteur |
| - Îlot surdimensionné avec verrerie, prise électrique |
| intégrée et rangement |
| - Comptoirs et finitions supérieurs incluant corian |
| - Garde-manger walk-in double avec tablettes coulissantes |
| - Céramique de qualité supérieure dans la cuisine et salle |
| de bain principale |
| - Planchers de bois d'ingénierie (frêne laminé, sablable et |
| vernis possible) |
| - Aspirateur central |
| - Deux systèmes de climatisation murale, dont un dans la |
| chambre principale |
| - Ventilateurs de plafond avec télécommande dans les |
| chambres |
| - Hotte de cuisine de qualité supérieure |
| - Douches améliorées avec robinetterie haut de gamme, |
| incluant douche pluie dans la salle de bain principale |
| - Lit escamotable intégré dans la 2e chambre |
| - Plafonds de 9 pieds |
| - Armoires surdimensionnées jusqu'au plafond |
| - Deux walk-in dans la chambre principale |
| - Nombreux espaces de rangement intégrés et optimisés |
| - Accès à une communauté exceptionnelle et conviviale |
| - Piscine creusée chauffée, salle d'entraînement, court de |
| tennis, marina avec accès à la rivière, supports à canots |
| et kayaks et jardin communautaire. |
| -Foyer extérieur |
| - Situé directement en bordure de la rivière Gatineau |
| - À proximité de la station de ski Vorlage |
| - À quelques minutes du village de Wakefield (cafés, |
| restaurants, boutiques) |
| - Près des écoles, garderies, épiceries, pharmacie et |
| services et à 30 minutes d'Ottawa |
























































