Gatineau (Hull)
Description de la propriété
Superbe quadruplex dans le secteur le plus recherché de Hull, à deux pas du pont Alexandra, du parc Jacques-Cartier et du Marché By. Construction 2004 entretenue avec soin. Comprend un 3 chambres avec garage, deux 2 chambres et un 1 chambre. Revêtement en brique, pierre de béton et fibre pressée, six thermopompes murales, escaliers et balcons en fibre de verre, cour clôturée avec gazon synthétique, revenus annuels de 102 000 $.
Détails
Proximité
Autoroute/Voie rapide, Cegep, Golf, Hôpital, Parc-espace vert, École primaire, École secondaire, Transport en commun, Université, Piste cyclable, Ski de fond, Garderie/CPE
Dimension des pièces
| Pièce | Niveau | Dimensions | Couvre plancher |
|---|---|---|---|
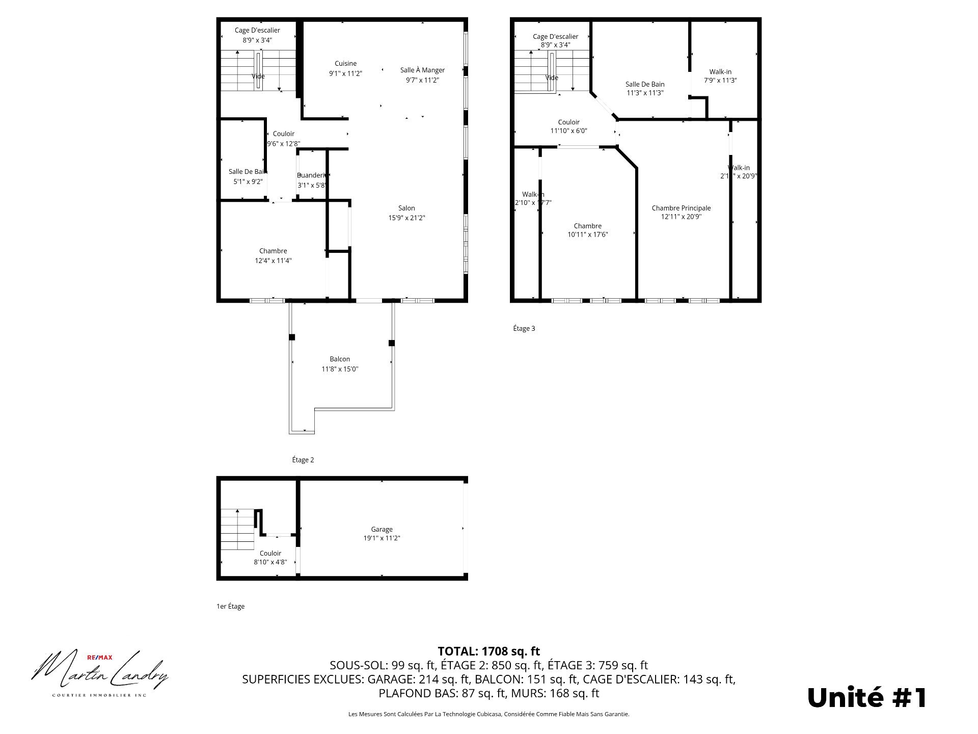
| Hall d'entrée | 1er niveau/RDC | 8.10x4.8 P | Céramique |
| Salon | 2ième étage | 21.2x15.8 P | Plancher flottant |
| Salle à manger | 2ième étage | 11.2x9.6 P | Plancher flottant |
| Cuisine | 2ième étage | 11.2x9.0 P | Céramique |
| Salle de bains | 2ième étage | 9.2x5.0 P | Céramique |
| Chambre à coucher | 2ième étage | 12.4x11.4 P | Plancher flottant |
| Chambre à coucher | 3ième étage | 17.6x11.0 P | Plancher flottant |
| Chambre à coucher principale | 3ième étage | 20.8x13.0 P | Plancher flottant |
| Salle de bains | 3ième étage | 11.2x11.2 P | Céramique |
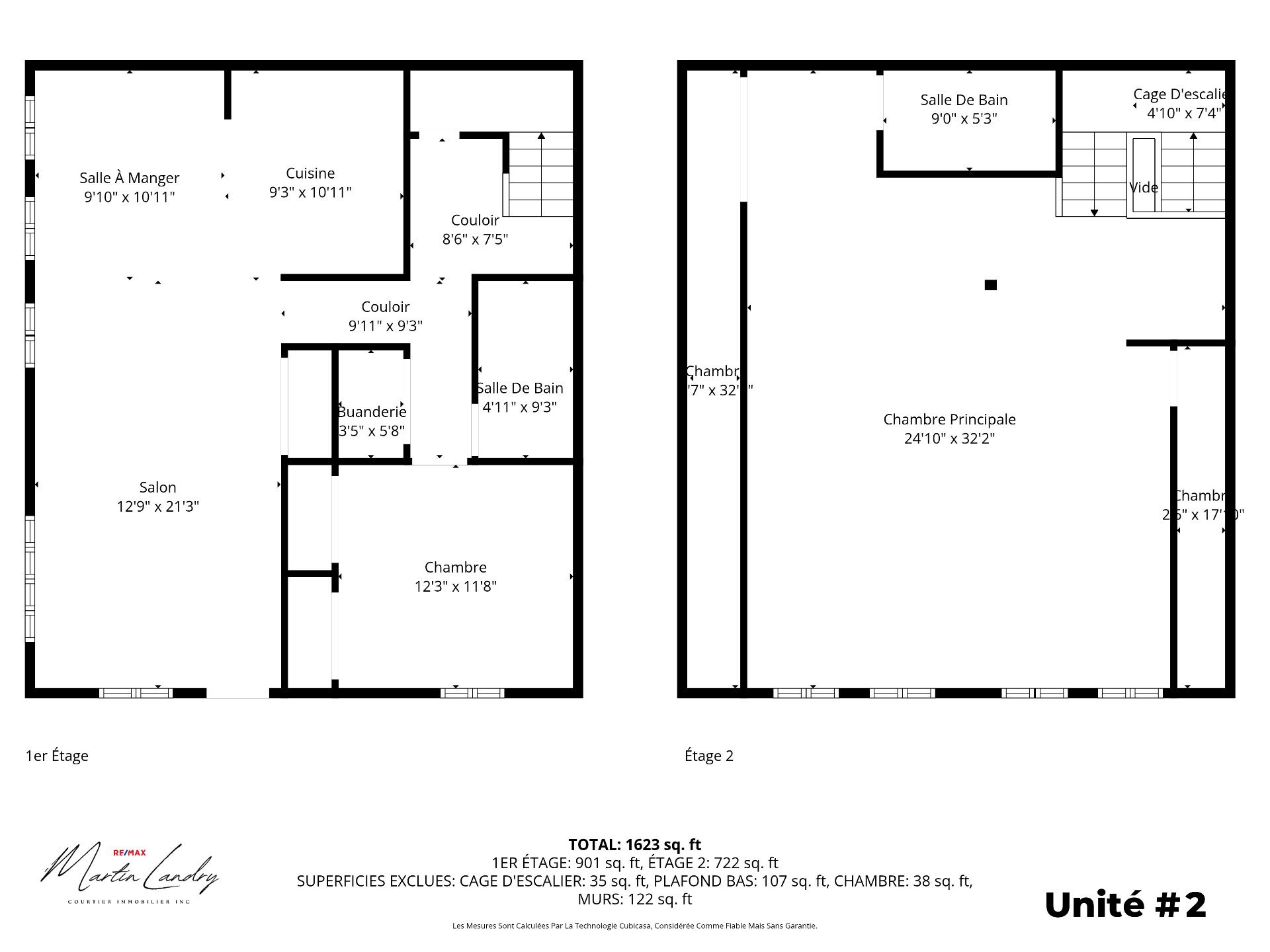
| Salon | 2ième étage | 21.2x12.8 P | Plancher flottant |
| Salle à manger | 2ième étage | 11.0x9.10 P | Plancher flottant |
| Cuisine | 2ième étage | 11.0x9.2 P | Céramique |
| Salle de bains | 2ième étage | 9.2x5.0 P | Céramique |
| Chambre à coucher | 2ième étage | 12.2x11.8 P | Plancher flottant |
| Chambre à coucher principale | 3ième étage | 32.2x24.10 P | Plancher flottant |
| Salle de bains | 3ième étage | 9.0x5.2 P | Céramique |
| Hall d'entrée | 1er niveau/RDC | 6.8x3.6 P | Céramique |
| Salon | 1er niveau/RDC | 15.4x11.0 P | Plancher flottant |
| Salle à manger | 1er niveau/RDC | 14.2x12.8 P | Plancher flottant |
| Cuisine | 1er niveau/RDC | 9.0x6.4 P | Céramique |
| Chambre à coucher | 1er niveau/RDC | 11.6x12.0 P | Plancher flottant |
| Salle de bains | 1er niveau/RDC | 9.2x4.8 P | Céramique |
| Chambre à coucher principale | 1er niveau/RDC | 11.6x11.0 P | Plancher flottant |
| Hall d'entrée | 1er niveau/RDC | 6.0x4.0 P | Céramique |
| Salon | 1er niveau/RDC | 14.6x10.0 P | Plancher flottant |
| Salle à manger | 1er niveau/RDC | 12.4x5.5 P | Plancher flottant |
| Cuisine | 1er niveau/RDC | 8.6x8.2 P | Céramique |
| Chambre à coucher | 1er niveau/RDC | 12.4x12.4 P | Plancher flottant |
| Salle de bains | 1er niveau/RDC | 7.10x5.2 P | Céramique |
| Salle de lavage | 1er niveau/RDC | 6.8x5.6 P | Céramique |
Taxes et dépenses
| Taxes scolaires | 950 $ |
| Taxes municipales | 11 371 $ |
| Assurances | 2 600 $ |
| Déneigement / pelouse | 600 $ |
| Coût d'énergie | 2 200 $ |
| Déchets | 400 $ |
| Autre | 1 300 $ |
Bâtiment et intérieur de la propriété
| Chambres | 3 |
| Salles de bain | 2 |
| Nombre de pièces | 10 |
| Aire habitable | 336.1 MC |
| Éléments inclus lors de la vente | Consultez l'Annexe AG-03254. |
| Dimension de la façade du bâtiment | 20.55 M |
| Dimension de la profondeur du bâtiment | 9.24 M |
| Superficie du terrain | 471.5 MC |
| Dimension de la façade du terrain | 30.28 M |
| Dimension de la profondeur du terrain | 16.89 M |
| Année de construction | 2004 |
| Évaluation municipale (terrain) | 495 100 $ |
| Évaluation municipale (bâtiment) | 879 400 $ |
| Évaluation municipale (total) | 1 374 500 $ |
| Année d'évaluation | 2025 |
| Nombre d'étages | 3 |
| Superficie du bâtiment | 189.67 MC |
| Terrain irrégulier | Oui |
| Revenus bruts potentiels | 102 000 $ |
| Allée | Asphalte |
| Aménagement du terrain | Clôturé, Paysager |
| Armoires | Bois |
| Mode de chauffage | Plinthes électriques |
| Approvisionnement en eau | Municipalité |
| Énergie pour le chauffage | Électricité |
| Équipement disponible | Échangeur d'air, Thermopompe murale |
| Fenêtres | PVC |
| Fondation | Béton coulé |
| Garage | Intégré, Simple largeur |
| Revêtements | Brique, Pierre de béton, Fibre pressée |
| Services disponibles | Détecteur d'incendie |
| Sous-sol | Entrée indépendante |
| Stationnement | Extérieur, Au garage |
| Système d'égouts | Municipal |
| Type de fenêtre | Manivelle |
| Toiture | Bardeaux d'asphalte |
| Topographie | Accidenté, Plat |
| Vue | Sur la ville |
| Zonage | Résidentiel |
Addendas
| Bienvenue au 303, rue Champlain, un quadruplex exceptionnel |
| idéalement situé dans l'un des quartiers les plus |
| prestigieux et agréables à pied de Hull. À quelques pas du |
| Parc Jacques-Cartier, du pont Alexandra et à quelques |
| minutes du ByWard Market d'Ottawa, cette propriété allie |
| emplacement de choix, qualité de construction et revenus |
| locatifs fiables. |
| Construite en 2004, cet impressionnant immeuble de trois |
| étages met en valeur un savoir-faire solide et des |
| matériaux faciles d'entretien. La façade combine brique, |
| pierre de béton et revêtement en fibre pressée, offrant à |
| la fois élégance et durabilité. Avec une superficie au sol |
| de 2 041 pi² sur un terrain de 5 075 pi², l'aménagement |
| propose des intérieurs spacieux tout en maximisant l'usage |
| de l'extérieur. |
| La propriété comprend quatre unités distinctes : |
| Une unité de 3 chambres sur deux niveaux avec garage privé. |
| Une unité de 2 chambres sur deux niveaux. |
| Une unité de 2 chambres sur un seul niveau. |
| Un appartement d'une chambre. |
| Chaque appartement dispose de connexions pour laveuse et |
| sécheuse, de portes et fenêtres en PVC, ainsi que de |
| planchers flottants et céramiques. Le confort est assuré |
| toute l'année grâce à six thermopompes murales offrant un |
| chauffage et une climatisation efficaces. |
| Les escaliers et balcons extérieurs, là où ils existent, |
| sont en fibres de verre, garantissant durabilité, sécurité |
| et entretien minimal comparé aux matériaux traditionnels. |
| La propriété bénéficie également d'une toiture en bardeaux |
| architecturaux, d'un stationnement asphalté et d'une cour |
| clôturée recouverte de gazon synthétique pour un espace |
| extérieur propre et facile d'entretien. |
| Vendue entièrement meublée et équipée, cette propriété |
| représente un investissement clé en main, prêt à générer |
| des revenus immédiatement. L'immeuble a été soigneusement |
| entretenu, reflétant la fierté et le soin continu de ses |
| propriétaires. |
| Avec un revenu annuel impressionnant de 102 000 $, cette |
| propriété offre un excellent retour sur investissement. Son |
| emplacement central assure une occupation stable et un |
| potentiel de valorisation élevé. À proximité des transports |
| en commun, des autoroutes principales, des bureaux |
| gouvernementaux, des écoles et de la scène culturelle |
| dynamique de Gatineau, elle constitue un choix idéal pour |
| les investisseurs recherchant qualité et fiabilité. |
| En résumé, le 303, rue Champlain se distingue comme une |
| opportunité rare de quadruplex, offrant le parfait |
| équilibre entre emplacement, qualité de construction et |
| revenus constants -- un investissement exceptionnel à long |
| terme au coeur de Hull. |






































































