524 900 $
14 Rue Hélie
Cantley
Cantley
Type
Maison de plain-pied
Chambres
4
Aire habitable
1156 PC
Salles de bain
2
MLS® 25686302
Description de la propriété
Superbe bungalow à la Québécoise/canadienne surdimensionné sur un grand terrain en pleine campagne à proximité de la ville. Venez profitez de cet environnement idéal pour y élever la famille! La rue en cul de sac tranquille, les arbres matures, l'aménagement paysager et la cours à faire rêver vous charmera. N'hésitez pas pour une visite exclusive!
Détails
Taxes et dépenses
| Taxes municipales | 2 371 $ |
| Taxes scolaires | 345 $ |
Bâtiment et intérieur de la propriété
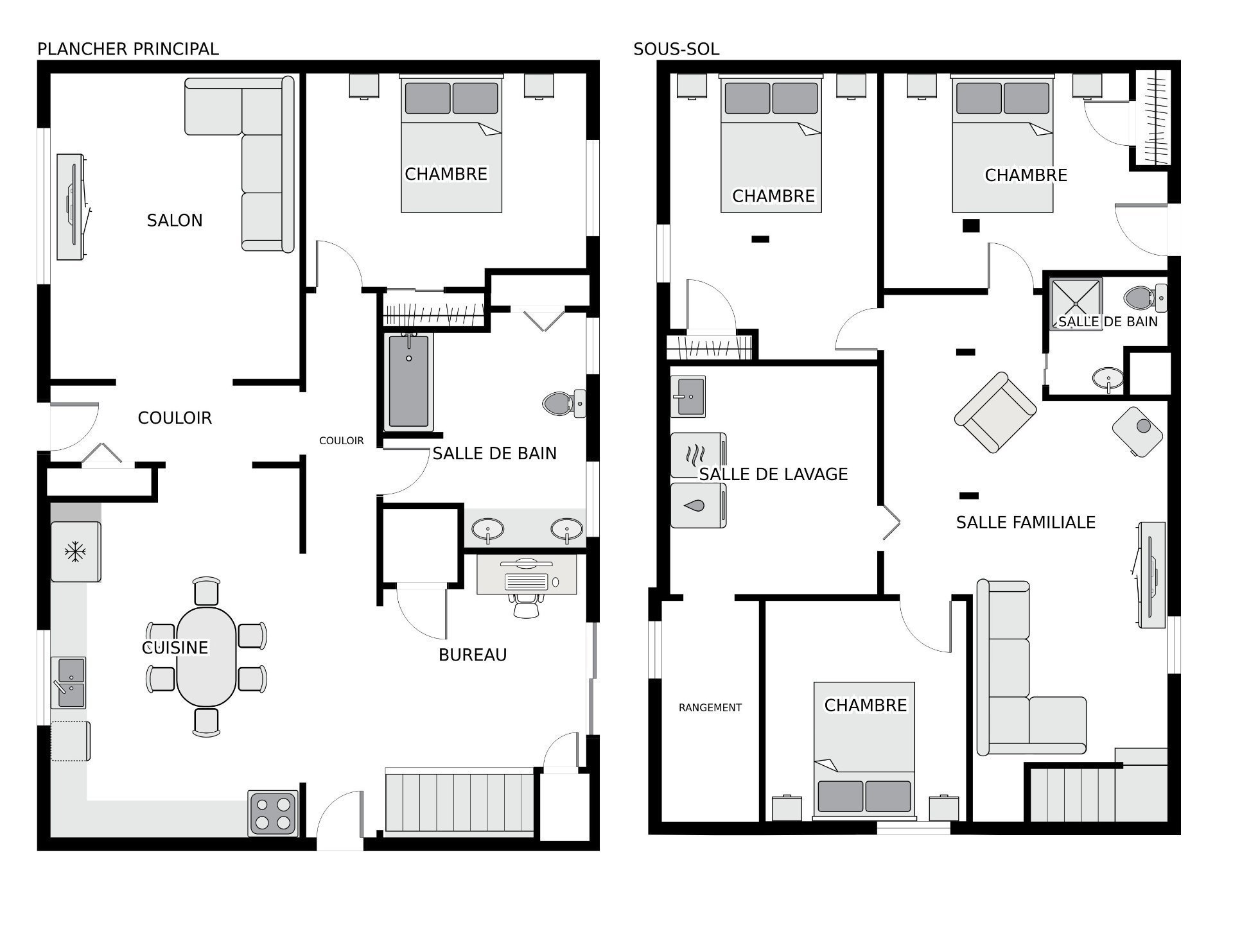
| Chambres | 4 |
| Salles de bain | 2 |
| Nombre de pièces | 13 |
| Nombre de chambres hors sol | 1 |
| Nombre de chambres au sous-sol | 3 |
| Aire habitable | 1156 PC |
| Délai d'occupation prévu | 30 jours |
| Éléments inclus lors de la vente | Laveuse sécheuse, cuisinière au gaz propane, Poêle au gaz propane, réfrigérateur, réfrigérateur au sous-sol dans la salle de lavage, piscine et accessoire, Solarium en aluminium |
| Superficie du terrain | 15077 PC |
| Dimension de la façade du terrain | 100 P |
| Dimension de la profondeur du terrain | 150 P |
| Année de construction | 1974 |
| Évaluation municipale (terrain) | 72 500 $ |
| Évaluation municipale (bâtiment) | 259 600 $ |
| Évaluation municipale (total) | 332 100 $ |
| Année d'évaluation | 2026 |
| Superficie du bâtiment | 1156 PC |
| Armoires | Bois |
| Approvisionnement en eau | Puits de surface |
| Fondation | Bloc de béton |
| Foyers-poêles | Poêle au gaz |
| Piscine | Hors-terre |
| Sous-sol | 6 pieds et plus, Totalement aménagé |
| Stationnement | Extérieur |
| Système d'égouts | Autre |
| Toiture | Tôle |
| Zonage | Résidentiel |


































