La Pêche
Description de la propriété
Découvrez Les Terres Mahon : une opportunité rare mariant histoire et potentiel de revenus au coeur de Wakefield. Ce terrain d'un acre accueille deux résidences, dont une demeure ancestrale des années 1800 n'attendant que votre vision.Profitez d'un accès direct à la rivière et de la proximité du célèbre pont couvert. Vivez dans la maison principale tout en rentabilisant votre achat grâce au second chalet (loué 1000 $/mois durant 5 ans). Un mode de vie entre nature et village, à distance de marche des cafés et du Moulin. Saisissez ce fragment d'histoire !
Visites libres
Dimanche 29 mars de 14:00 à 16:00Détails
Proximité
Autoroute/Voie rapide, Golf, Hôpital, Parc-espace vert, École primaire, Transport en commun, Piste cyclable, Ski alpin, Ski de fond, Garderie/CPE
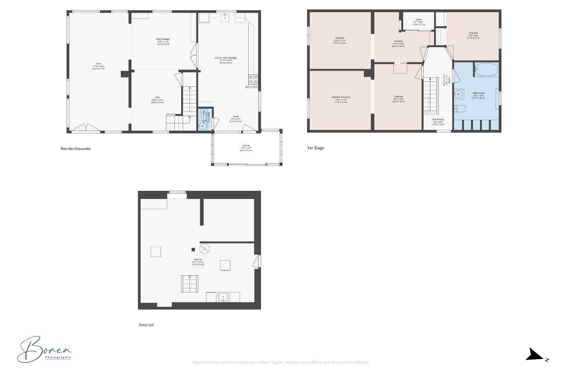
Dimension des pièces
| Pièce | Niveau | Dimensions | Couvre plancher |
|---|---|---|---|
| Salle familiale | 1er niveau/RDC | 11.8x23.2 P | Béton |
| Salle à manger | 1er niveau/RDC | 12.9x11.2 P | Bois |
| Salon | 1er niveau/RDC | 12.9x11.6 P | Bois |
| Salle de bains | 1er niveau/RDC | 2.8x4.4 P | Céramique |
| Cuisine | 1er niveau/RDC | 11.10x18.6 P | Bois |
| Chambre à coucher principale | 2ième étage | 21.3x11.8 P | Bois |
| Chambre à coucher | 2ième étage | 23.9x9.10 P | Bois |
| Chambre à coucher | 2ième étage | 10.4x9.6 P | Bois |
| Salle de bains | 2ième étage | 8.9x13.4 P | Céramique |
| Sous-sol | Sous-sol | 23.1x21.2 P | Béton |
Taxes et dépenses
| Taxes municipales | 5 065 $ |
| Taxes scolaires | 470 $ |
Bâtiment et intérieur de la propriété
| Chambres | 3 |
| Salles de bain | 1 |
| Salles d'eau | 1 |
| Nombre de pièces | 8 |
| Nombre de chambres hors sol | 3 |
| Aire habitable | 180.89 MC |
| Délai d'occupation prévu | 30 jours |
| Éléments inclus lors de la vente | Électroménager (réfrigérateur, cuisinière, lave-linge, sèche-linge et lave-vaisselle), 2 chauffe-eau (maison principale et chalet), fournaise de la maison principale |
| Éléments exclus lors de la vente | Vitrail de la fenêtre de devant |
| Dimension de la façade du bâtiment | 7.62 M |
| Dimension de la profondeur du bâtiment | 11.87 M |
| Superficie du terrain | 4757 MC |
| Dimension de la façade du terrain | 61.71 M |
| Dimension de la profondeur du terrain | 50.91 M |
| Évaluation municipale (terrain) | 270 500 $ |
| Évaluation municipale (bâtiment) | 512 900 $ |
| Évaluation municipale (total) | 783 400 $ |
| Année d'évaluation | 2026 |
| Code année construction | Inconnue |
| Bâtiment irrégulier | Oui |
| Superficie du bâtiment | 90.45 MC |
| Terrain irrégulier | Oui |
| Mode de chauffage | Air soufflé, Plinthes électriques |
| Approvisionnement en eau | Puits artésien |
| Énergie pour le chauffage | Électricité, Mazout |
| Fondation | Pierre |
| Particularités | Coin de rue, Bordé par l'eau |
| Sous-sol | Non aménagé |
| Système d'égouts | Autre |
| Vue | Sur l'eau, Panoramique, Sur la montagne |
| Zonage | Résidentiel |
Addendas
| Un été aux Terres Mahon |
| La brume matinale se dissipe sur la rivière Gatineau alors |
| que vous vous installez sur la grande véranda couverte de |
| la maison principale. Café à la main, vous admirez l'eau |
| qui coule -- une vue magnifiée par l'extension frontale qui |
| s'élève sur les deux niveaux de cette demeure des années |
| 1800. Ici, vous n'habitez pas seulement une maison, vous |
| habitez un récit qui se déploie depuis plus d'un siècle. |
| À travers la cour, la deuxième propriété -- un refuge en |
| bois sur une fondation neuve en béton -- offre un charme |
| rustique et indépendant, avec sa propre fosse septique et |
| son poêle à bois chaleureux. Que ce soit pour des invités |
| ou pour un revenu d'appoint, cet espace est une rareté. |
| Exploration et Vitalité |
| Vers 10h00, vous traversez le chemin vers votre propre lot |
| riverain pour une sortie en kayak vers le célèbre pont |
| couvert rouge. L'histoire de la municipalité vibre dans |
| chaque poutre que vous croisez. L'après-midi, vous décidez |
| de faire une randonnée à cheval en montagne ou à vélo sur |
| les pistes cyclables à moins de 10 minutes. Apres votre |
| sport, vous decidez d'allez rencontrer des amis a la marche |
| vers le village au coeur de Wakefield au restaurant ou pour |
| allez prendre un cafe. En revenant vous arreter a la |
| boulangerie pour un pain frais pour votre souper. |
| Tous les services sont à portée de main. L'hôpital et les |
| services essentiels sont à seulement 5 minutes. |
| Soirée au Moulin |
| Après un souper au Moulin de Wakefield, vous regagnez Les |
| Terres Mahon. La maison est honnête quant à son âge ; elle |
| porte fièrement son bois patiné et ses pierres d'origine. |
| C'est une propriété authentique qui cherche un gardien -- |
| quelqu'un qui saura percevoir les matériaux nobles et l'âme |
| sous la surface. |
| Vous terminez la journée sur la galerie, observant les |
| lucioles entre les deux maisons. Ici, le style de vie est |
| celui d'un « luxe discret », ancré dans la nature. Vous |
| n'achetez pas simplement une maison ; vous héritez d'un |
| fragment de l'histoire de la rivière. |










































