Gatineau (Hull)
Description de la propriété
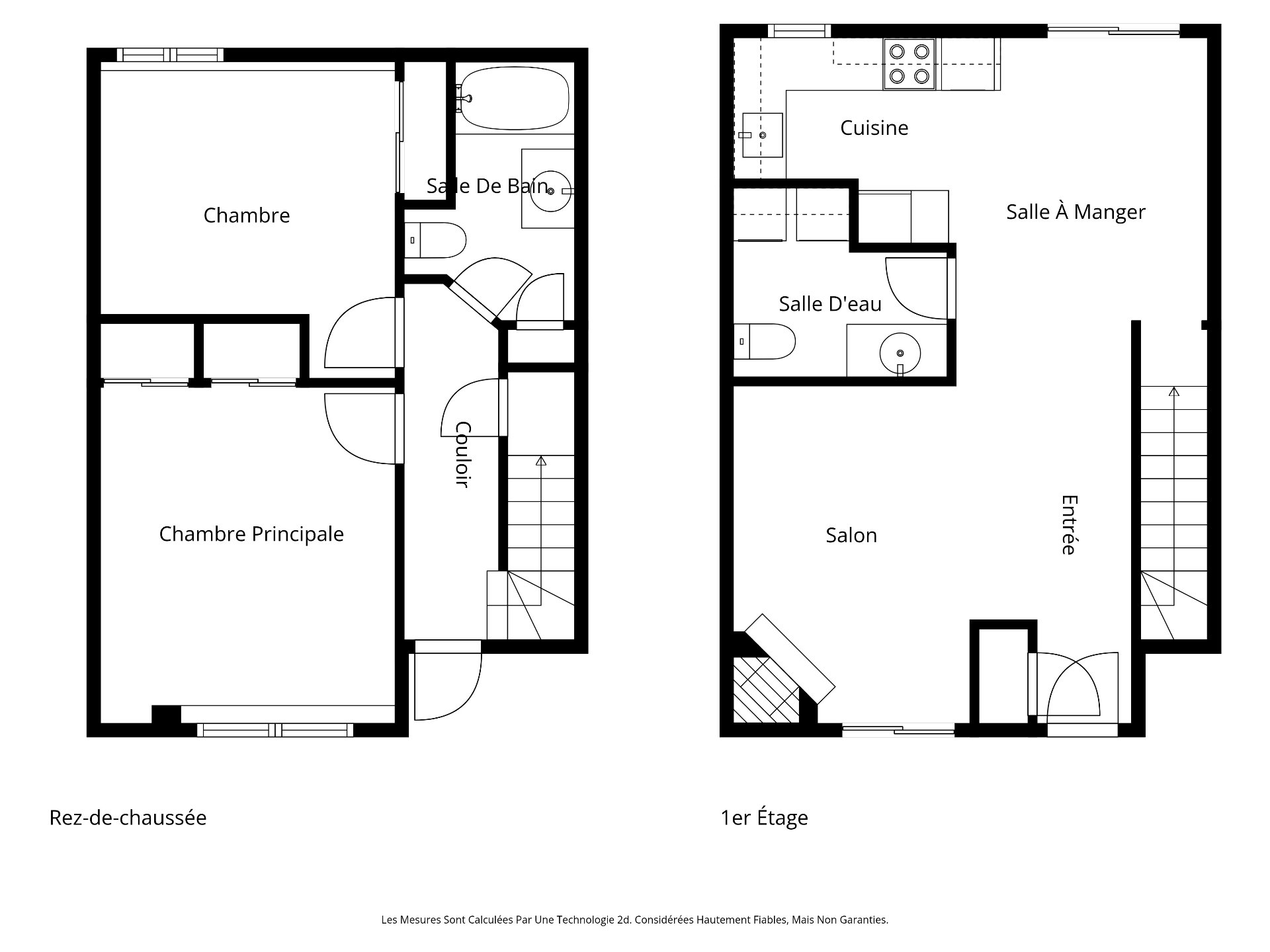
Secteur Hull. Condo de 2 chambres à coucher sur 2 étages actuellement vacant. Au 1er niveau se trouve le salon avec foyer et balcon, la cuisine, salle à manger avec balcon et salle d'eau avec emplacement pour laveuse/sécheuse. Au niveau inférieur se trouvent 2 chambres à coucher et salle de bains principale. Situé à proximité de nombreux services et à proximité d'Ottawa. Vous avez accès à une salle communautaire, piscine, court de tennis et terrain de basket.
Détails
Proximité
Autoroute/Voie rapide, Parc-espace vert, Transport en commun, Piste cyclable
Dimension des pièces
| Pièce | Niveau | Dimensions | Couvre plancher |
|---|---|---|---|
| Salon | 2ième étage | 10.11x13.0 P | Plancher flottant |
| Cuisine | 2ième étage | 7.6x11.1 P | Céramique |
| Salle à manger | 2ième étage | 11.2x8.5 P | Plancher flottant |
| Salle d'eau | 2ième étage | 9.0x7.2 P | Céramique |
Taxes et dépenses
| Taxes scolaires | 164 $ |
| Taxes municipales | 1 955 $ |
| Frais de copropriété | 3 900 $ |
Bâtiment et intérieur de la propriété
| Frais de copropriété | 3 900 $ |
| Chambres | 2 |
| Salles de bain | 1 |
| Salles d'eau | 1 |
| Nombre de pièces | 7 |
| Nombre de chambres au sous-sol | 2 |
| Aire habitable | 880 PC |
| Délai d'occupation prévu | 30 jours |
| Éléments inclus lors de la vente | Lave-vaisselle, laveuse, sécheuse, chauffe-eau (2026). |
| Dimension de la façade du bâtiment | 19 P |
| Dimension de la profondeur du bâtiment | 38 P |
| Superficie du terrain | 1851 PC |
| Année de construction | 1985 |
| Évaluation municipale (terrain) | 55 500 $ |
| Évaluation municipale (bâtiment) | 203 400 $ |
| Évaluation municipale (total) | 258 900 $ |
| Année d'évaluation | 2026 |
| Type de copropriété | Divise |
| Étage du condo | 2 |
| Nombre d'étages | 4 |
| Bâtiment irrégulier | Oui |
| Allée | Asphalte |
| Aménagement du terrain | Paysager |
| Armoires | Mélamine |
| Mode de chauffage | Plinthes électriques |
| Approvisionnement en eau | Municipalité |
| Énergie pour le chauffage | Électricité |
| Fenêtres | PVC |
| Foyers-poêles | Foyer au bois |
| Revêtements | Brique, Vinyle |
| Piscine | Creusée |
| Services disponibles | |
| Sous-sol | Totalement aménagé |
| Stationnement | Extérieur |
| Système d'égouts | Municipal |
| Type de fenêtre | Coulissante |
| Toiture | Bardeaux d'asphalte |
| Zonage | Résidentiel |
























