Pontiac
Description de la propriété
PROPRIÉTÉ EXCEPTIONNELLE! Design architectural unique et distinctif. Offrant + de 1 600 pi² sans le sous-sol, ce plain-pied avec garage se démarque par son concept à aire ouverte, sa fenestration abondante, ses haut plafonds, ses espaces ouverts impressionnants et ses matériaux de qualité. Elle propose 4 CAC, 2 SDB complètes, une cuisine de rêve digne des grands magazines, comptoirs de cuisine en béton sur mesure, grand comptoir-lunch, espace de rangement généreux, planchers de bois franc et céramique, plancher radiant au sous-sol, foyer au gaz au salon. Une propriété unique où design, confort et prestige se rencontrent. Info 819-743-5817
Détails
Proximité
Autoroute/Voie rapide, Cegep, Golf, Hôpital, Parc-espace vert, École primaire, École secondaire, Piste cyclable, Ski alpin, Ski de fond, Garderie/CPE
Dimension des pièces
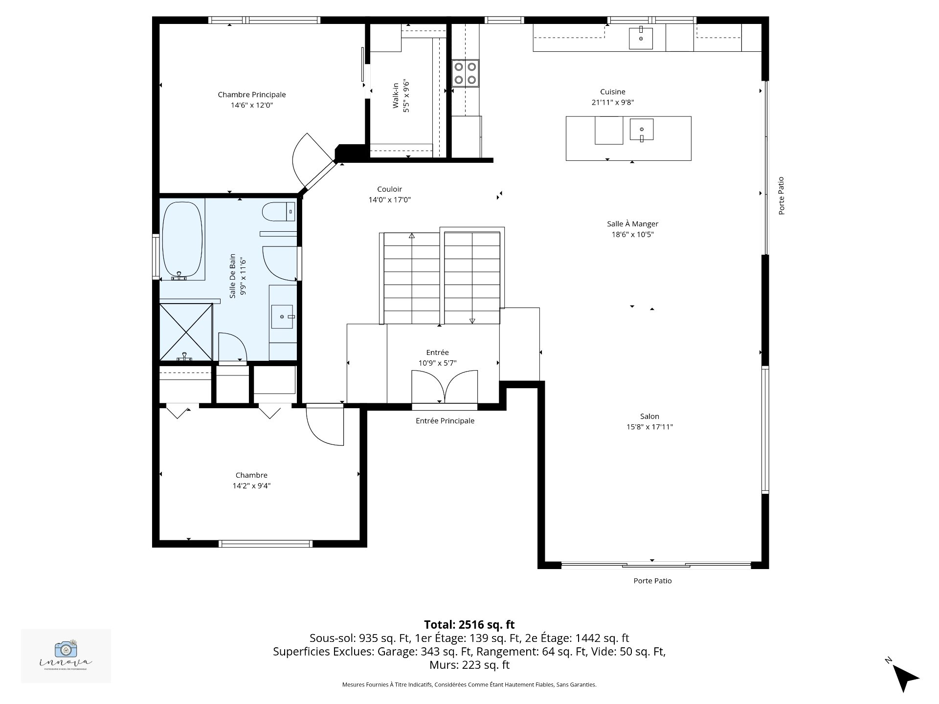
| Pièce | Niveau | Dimensions | Couvre plancher |
|---|---|---|---|
| Hall d'entrée | 1er niveau/RDC | 10.2x5.7 P | Céramique |
| Cuisine | 1er niveau/RDC | 21.11x9.8 P | Céramique |
| Salle à manger | 1er niveau/RDC | 18.6x10.5 P | Bois |
| Salon | 1er niveau/RDC | 15.8x17.11 P | Bois |
| Chambre à coucher principale | 1er niveau/RDC | 14.6x12.0 P | Bois |
| Salle de bains | 1er niveau/RDC | 9.9x11.6 P | Céramique |
| Chambre à coucher | 1er niveau/RDC | 14.2x9.4 P | Bois |
| Salle familiale | Sous-sol | 31.1x21.2 P | Céramique |
| Chambre à coucher | Sous-sol | 13.9x10.8 P | Céramique |
| Salle de bain et salle de lavage | Sous-sol | 8.6x12.2 P | Céramique |
| Chambre à coucher | Sous-sol | 11.7x10.5 P | Céramique |
| Rangement | Sous-sol | 12.1x5.3 P | Céramique |
Taxes et dépenses
| Taxes municipales | 4 553 $ |
| Taxes scolaires | 550 $ |
Bâtiment et intérieur de la propriété
| Chambres | 4 |
| Salles de bain | 2 |
| Nombre de pièces | 13 |
| Nombre de chambres hors sol | 2 |
| Nombre de chambres au sous-sol | 2 |
| Aire habitable | 149.8 MC |
| Délai d'occupation prévu | 60 jours |
| Éléments inclus lors de la vente | Réfrigérateur, cuisinière, lave-vaisselle, rideaux du salon et du rez-de-chaussée, station de recharge électrique, tous les accessoires de piscine, tous les luminaires fixes, toutes les étagères accrochées aux murs et les miroirs de la salle de bain, donn |
| Éléments exclus lors de la vente | Tous les effets personnels et meubles, laveuse et sécheuse, toutes les chaises d'extérieur, meuble de jardin et tables d'extérieur, jardinières, barbecue, tous les cadres et oeuvres d'art, télévision et support, fontaine à eau, tous les outils et autres a |
| Dimension de la façade du bâtiment | 13.46 M |
| Dimension de la profondeur du bâtiment | 11.93 M |
| Superficie du terrain | 3700 MC |
| Dimension de la façade du terrain | 94.18 M |
| Dimension de la profondeur du terrain | 49.19 M |
| Année de construction | 2014 |
| Évaluation municipale (terrain) | 172 100 $ |
| Évaluation municipale (bâtiment) | 660 200 $ |
| Évaluation municipale (total) | 832 300 $ |
| Année d'évaluation | 2026 |
| Allée | Asphalte, Double largeur ou plus |
| Armoires | Autre, Thermoplastique |
| Mode de chauffage | Air soufflé, Radiant |
| Approvisionnement en eau | Puits artésien |
| Énergie pour le chauffage | Autre, Propane, Électricité |
| Équipement disponible | Adoucisseur d'eau, Porte de garage électrique, Échangeur d'air, Climatiseur central, Borne de recharge - niveau 2 |
| Fenêtres | PVC |
| Fondation | Béton coulé |
| Foyers-poêles | Foyer au gaz |
| Garage | Attaché, Simple largeur, Chauffé, Autre |
| Revêtements | Aluminium, Pierre de béton, Bois |
| Particularités | Boisé |
| Piscine | Autre, Chauffée |
| Salle de bains/salle d'eau | Douche indépendante |
| Services disponibles | Détecteur d'incendie |
| Sous-sol | 6 pieds et plus, Totalement aménagé |
| Stationnement | Extérieur, Au garage |
| Système d'égouts | Système BIONEST, Fosse septique, Champ d'épuration |
| Type de fenêtre | Manivelle, Porte-fenêtre |
| Toiture | Bardeaux d'asphalte |
| Topographie | En pente, Plat |
| Vue | Panoramique |
| Zonage | Résidentiel |
Addendas
| Quittez la ville... sans vous en éloigner. |
| Propriété d'exception située au coeur du secteur recherché |
| de Breckenridge, Pontiac, offrant un parfait équilibre |
| entre design architectural distinctif et nature |
| environnante. |
| Implantée sur un terrain boisé procurant intimité et |
| tranquillité, cette résidence se démarque par sa façade |
| contemporaine mariant bois et maçonnerie, ses lignes |
| épurées et sa fenestration abondante laissant pénétrer une |
| lumière naturelle spectaculaire. |
| INTÉRIEUR |
| Dès l'entrée, le hall impressionne par sa hauteur et son |
| design moderne. Le concept à aire ouverte crée une fluidité |
| remarquable entre les espaces de vie. |
| La cuisine, digne des grands magazines, propose : |
| Comptoirs en béton sur mesure |
| Grand îlot avec comptoir-lunch |
| Nombreux espaces de rangement |
| Armoires deux tons au style contemporain |
| La salle à manger et le salon profitent d'une généreuse |
| fenestration avec vue sur la nature, d'un plafond haut et |
| d'un foyer au gaz créant une ambiance chaleureuse et |
| conviviale. |
| Planchers de bois franc et céramique sur les niveaux |
| principaux. |
| La propriété offre 4 chambres à coucher ainsi que 2 salles |
| de bain complètes au design épuré avec douche vitrée et |
| bain autoportant. |
| Le sous-sol entièrement aménagé avec plancher radiant |
| propose une grande salle familiale polyvalente (espace gym, |
| cinéma maison ou bureau), idéale pour répondre aux besoins |
| d'une famille active. |
| EXTÉRIEUR |
| Terrain boisé offrant intimité et atmosphère paisible. |
| Grande terrasse arrière parfaite pour recevoir. |
| Piscine creusée (à vérifier selon saison) intégrée à |
| l'aménagement extérieur. |
| Garage intégré et chauffé. |
| LOCALISATION -- VIVRE À BRECKENRIDGE, PONTIAC |
| Secteur prisé pour son environnement naturel exceptionnel : |
| Accès à la rivière des Outaouais |
| Activités nautiques, plein air, sentiers |
| À proximité d'Aylmer et d'Ottawa |
| Cadre de vie paisible tout en restant accessible |
| Une propriété unique pour les amateurs d'architecture |
| contemporaine et de nature. |












































