Blue Sea
Description de la propriété
Découvrez cette splendide propriété au bord du Lac Blue Sea où confort et nature se rencontrent harmonieusement. Offrant une vue imprenable sur l'eau et un accès direct au lac, cette demeure clé en main avec garage se distingue par sa luminosité et son entretien irréprochable. Vous y trouverez un espace de vie ouvert alliant salon chaleureux avec foyer au bois, cuisine fonctionnelle avec îlot central et salle à manger conviviale. Avec ses 4 chambres, 1 salle de bain et 1 salle d'eau attenante à la chambre principale, elle répond à tous les besoins familiaux. Profitez d'une terrasse couverte et d'un emplacement paisible à deux pas de la plage.
Détails
Proximité
Golf, Parc-espace vert, École primaire, Ski alpin
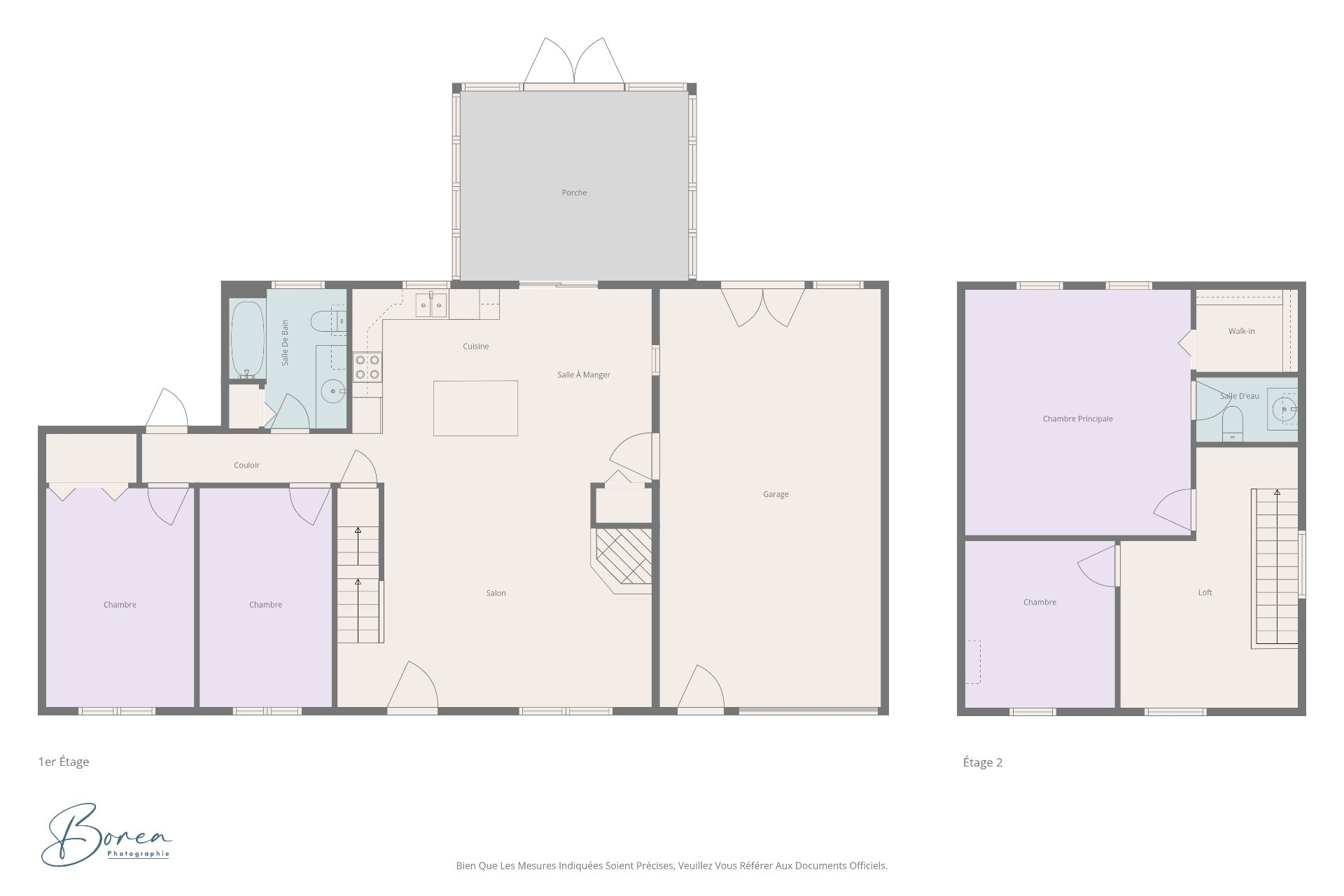
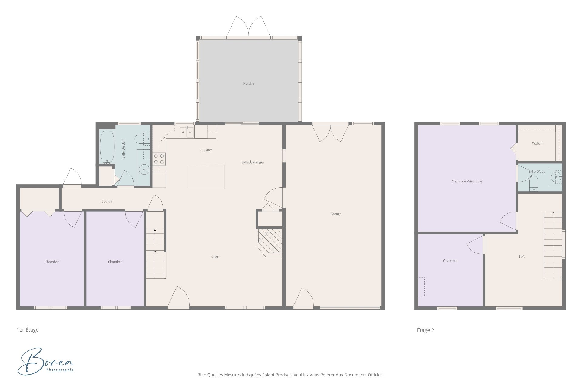
Dimension des pièces
| Pièce | Niveau | Dimensions | Couvre plancher |
|---|---|---|---|
| Salon | 1er niveau/RDC | 20.3x14.5 P | Bois |
| Salle à manger | 1er niveau/RDC | 8.3x12.6 P | Céramique |
| Cuisine | 1er niveau/RDC | 10.11x12.6 P | Céramique |
| Salle de bains | 1er niveau/RDC | 7.7x9.0 P | Céramique |
| Chambre à coucher | 1er niveau/RDC | 8.6x14.1 P | Plancher flottant |
| Chambre à coucher | 1er niveau/RDC | 9.7x14.1 P | Plancher flottant |
| Loft à aire ouverte | 2ième étage | 11.5x16.9 P | Plancher flottant |
| Chambre à coucher principale | 2ième étage | 14.6x15.10 P | Plancher flottant |
| Salle d'eau | 2ième étage | 6.7x4.2 P | Céramique |
| Chambre à coucher | 2ième étage | 9.8x10.9 P | Plancher flottant |
Taxes et dépenses
| Taxes municipales | 3 047 $ |
| Taxes scolaires | 205 $ |
Bâtiment et intérieur de la propriété
| Chambres | 4 |
| Salles de bain | 1 |
| Salles d'eau | 1 |
| Nombre de pièces | 11 |
| Nombre de chambres hors sol | 4 |
| Aire habitable | 103.7 MC |
| Délai d'occupation prévu | 30 jours |
| Éléments inclus lors de la vente | Thermopompe, chauffe-eau, poêle, réfrigérateur, hotte micro-ondes, laveuse, sécheuse, pôles, rideaux, stores, lave-vaisselle, machine à eau, luminaires, table de patio, BBQ, aspirateur central et accessoires, sump pump, système de caméras. |
| Éléments exclus lors de la vente | Meubles et effets personnels |
| Dimension de la façade du bâtiment | 18.11 M |
| Dimension de la profondeur du bâtiment | 8.54 M |
| Superficie du terrain | 636.3 MC |
| Dimension de la façade du terrain | 22.49 M |
| Dimension de la profondeur du terrain | 27.26 M |
| Année de construction | 1992 |
| Évaluation municipale (terrain) | 38 200 $ |
| Évaluation municipale (bâtiment) | 300 400 $ |
| Évaluation municipale (total) | 338 600 $ |
| Année d'évaluation | 2025 |
| Allée | Asphalte |
| Aménagement du terrain | Patio, Paysager |
| Armoires | Mélamine |
| Mode de chauffage | Plinthes à convection, Plinthes électriques |
| Approvisionnement en eau | Eau du lac |
| Énergie pour le chauffage | Électricité |
| Équipement disponible | Installation aspirateur central, Thermopompe murale, Climatiseur mural |
| Fenêtres | PVC |
| Fondation | Bloc de béton |
| Foyers-poêles | Foyer au bois |
| Garage | Attaché, Simple largeur |
| Revêtements | Brique, Vinyle |
| Particularités | Accès à l'eau, Navigable, Bordé par l'eau, Aucun voisin à l'arrière |
| Restrictions/Permissions | Location permise court terme |
| Salle de bains/salle d'eau | Attenante à la chambre principale |
| Stationnement | Extérieur, Au garage |
| Système d'égouts | Champ d'épuration, Fosse septique |
| Type de fenêtre | Coulissante, Guillotine |
| Toiture | Bardeaux d'asphalte |
| Topographie | Plat |
| Vue | Sur l'eau, Panoramique, Sur la montagne |
| Zonage | Récréotouristique, Résidentiel |
Addendas
| Nichée sur les rives du Lac Blue Sea, cette magnifique |
| propriété combine charme, confort et nature. Offrant une |
| vue imprenable sur l'eau et un accès direct au lac, elle |
| propose un style de vie unique où sérénité et commodité se |
| rencontrent. Parfaite pour une famille ou comme résidence |
| secondaire, elle se distingue par son entretien impeccable |
| et son ambiance chaleureuse. |
| Caractéristiques principales |
| -Magnifique propriété avec garage offrant une vue sublime |
| sur l'eau |
| -Accès direct au Lac Blue Sea, idéal pour les amateurs de |
| plein air et de nautisme |
| -Clé en main, soigneusement entretenue et d'une luminosité |
| exceptionnelle |
| -Concept à aire ouverte alliant confort, chaleur et |
| fonctionnalité |
| Espaces de vie |
| -Salon accueillant agrémenté d'un foyer au bois, créant une |
| ambiance conviviale |
| -Salle à manger lumineuse et cuisine fonctionnelle avec |
| îlot central |
| -4 chambres à coucher, dont la principale avec salle d'eau |
| attenante |
| -Salle de bain complète soigneusement aménagée |
| -Espace loft à aire ouverte, parfait pour un coin lecture, |
| détente ou bureau |
| Terrain et environnement |
| -Terrain d'environ 6 849 pi², soigneusement entretenu |
| -Terrasse couverte, idéale pour profiter des belles |
| journées en toute saison |
| -Environnement paisible de chalet, tout en étant près des |
| commodités |
| -Située à quelques pas de la plage de Blue Sea |
| Détails additionnels |
| -Location à court terme permise (licence CITQ conforme) |
| -Bande riveraine limitant l'usage selon la réglementation |
| -Aspirateur central et thermopompe murale, assurant confort |
| toute l'année |





































