Gatineau (Gatineau)
Description de la propriété
SUPERBE MAISON EN RANGÉE de + de 1 100 pc offrant espace et potentiel! Elle propose 2 CAC avec possibilité d'en aménager une 3e, une salle de bain complète avec option d'en ajouter une 2e, et une salle d'eau pratique. Son concept à aire ouverte relie le salon, la cuisine et la salle à manger, créant un espace lumineux et convivial. La cour arrière avec patio couvert permet de profiter pleinement de l'extérieur et de belles journées d'automne. Moins dispendieuse qu'un loyer, cette propriété est idéale pour premiers acheteurs, jeunes familles ou investisseurs désirant saisir une belle opportunité. Maison pleines de possibilités. Faites vite!
Détails
Proximité
Autoroute/Voie rapide, Cegep, Golf, Parc-espace vert, École primaire, École secondaire, Transport en commun, Piste cyclable, Garderie/CPE
Dimension des pièces
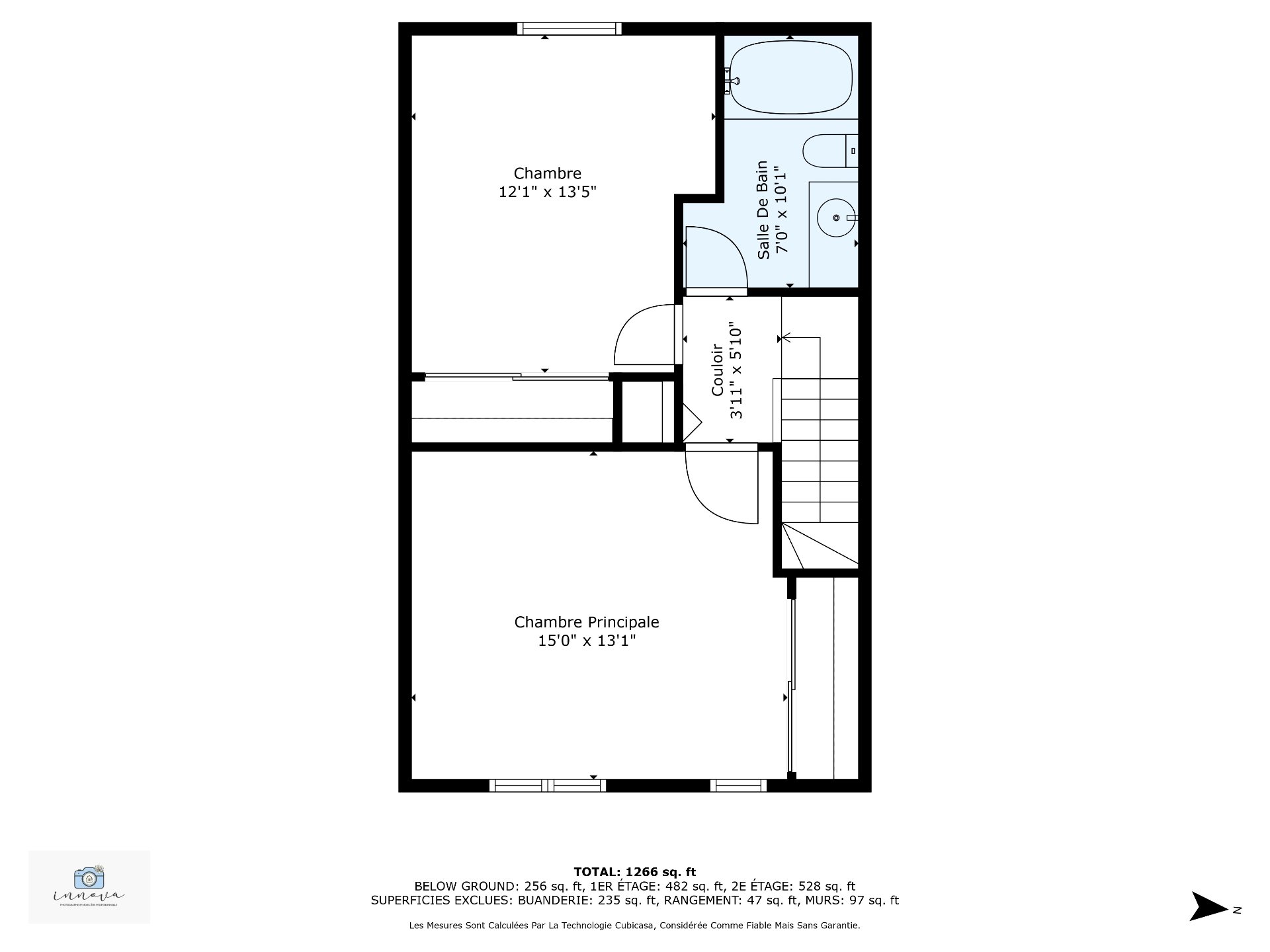
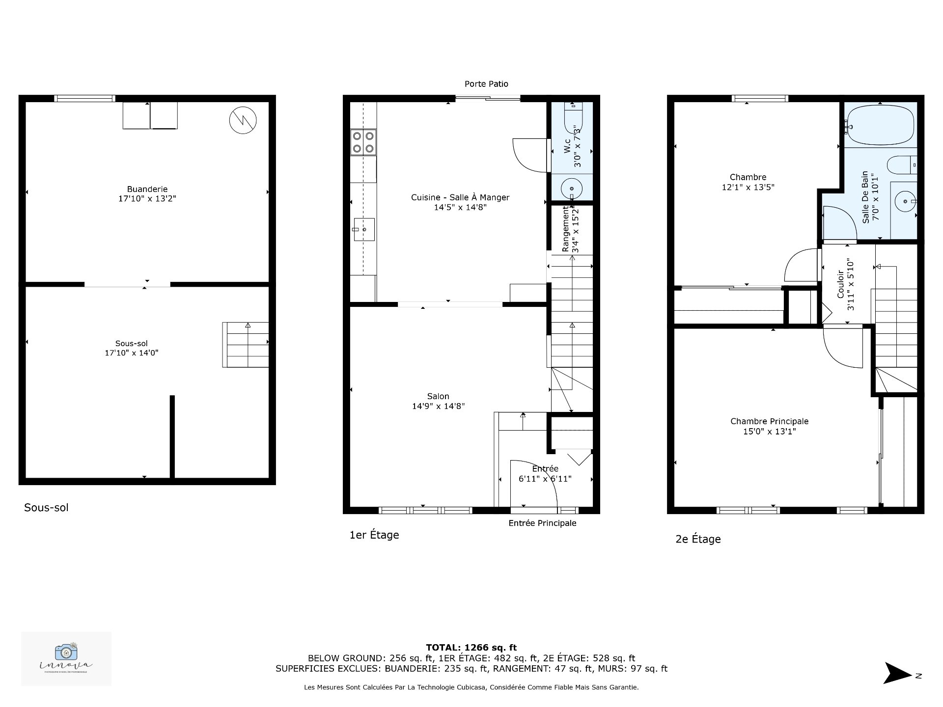
| Pièce | Niveau | Dimensions | Couvre plancher | 
|---|---|---|---|
| Hall d'entrée | 1er niveau/RDC | 6.11x6.11 P | Céramique | 
| Salon | 1er niveau/RDC | 14.9x14.8 P | Bois | 
| Cuisine et salle à manger | 1er niveau/RDC | 14.5x14.8 P | Céramique | 
| Salle d'eau | 1er niveau/RDC | 3.0x7.3 P | Céramique | 
| Chambre à coucher principale | 2ième étage | 15.0x13.1 P | Tapis | 
| Chambre à coucher | 2ième étage | 12.1x13.5 P | Tapis | 
| Salle de bains | 2ième étage | 7.0x10.1 P | Céramique | 
| Possibilité salle familiale | Sous-sol | 17.10x14.0 P | Béton | 
| Possibilité chambre à coucher et salle de bain | Sous-sol | 17.10x13.2 P | Béton | 
Taxes et dépenses
| Taxes scolaires | 205 $ | 
| Taxes municipales | 2 396 $ | 
| Coût d'énergie | 940 $ | 
| Frais de copropriété | 1 800 $ | 
Bâtiment et intérieur de la propriété
| Frais de copropriété | 1 800 $ | 
| Chambres | 2 | 
| Salles de bain | 1 | 
| Salles d'eau | 1 | 
| Nombre de pièces | 9 | 
| Nombre de chambres hors sol | 2 | 
| Aire habitable | 128.7 MC | 
| Éléments inclus lors de la vente | Cuisinière, réfrigirateur et les stores tous donnés sans garantie. | 
| Éléments exclus lors de la vente | Tous les meubles et les biens personnels, les rideaux, et le réservoir à eau chaude en location, et tout ce qui n'est pas mentionné dans les inclusions. | 
| Dimension de la façade du bâtiment | 5.49 M | 
| Dimension de la profondeur du bâtiment | 9.15 M | 
| Superficie du terrain | 128.7 MC | 
| Dimension de la façade du terrain | 5.49 M | 
| Dimension de la profondeur du terrain | 23.45 M | 
| Année de construction | 2003 | 
| Évaluation municipale (terrain) | 91 500 $ | 
| Évaluation municipale (bâtiment) | 226 400 $ | 
| Évaluation municipale (total) | 317 900 $ | 
| Année d'évaluation | 2025 | 
| Type de copropriété | Divise | 
| Allée | Asphalte | 
| Aménagement du terrain | Clôturé | 
| Armoires | Mélamine | 
| Mode de chauffage | Plinthes électriques | 
| Approvisionnement en eau | Municipalité | 
| Énergie pour le chauffage | Électricité | 
| Fenêtres | PVC | 
| Revêtements | Brique, Vinyle | 
| Particularités | Rue privée | 
| Restrictions/Permissions | |
| Sous-sol | 6 pieds et plus, Non aménagé | 
| Stationnement | Extérieur | 
| Système d'égouts | Municipal | 
| Type de fenêtre | Coulissante, Manivelle | 
| Toiture | Bardeaux d'asphalte | 
| Topographie | Plat | 
| Vue | Sur la ville | 
| Zonage | Résidentiel | 
Addendas
| Pourquoi acheter plutôt que louer? | 
| Devenir propriétaire, c'est investir dans votre avenir. | 
| Chaque mensualité contribue à bâtir votre équité au lieu de | 
| payer l'hypothèque de quelqu'un d'autre. Dans plusieurs | 
| cas, les coûts d'acquisition et d'entretien sont | 
| comparables, voire inférieurs, au prix d'un loyer dans la | 
| région. De plus, le marché immobilier de Gatineau continue | 
| de démontrer une belle valeur de revente et un potentiel | 
| d'appréciation intéressant. | 
| Atouts clés de la propriété | 
| Plus de 1 100 pi² habitables avec possibilité d'aménager 3 | 
| chambres. | 
| Salle de bain complète avec option d'en ajouter une | 
| deuxième, plus salle d'eau. | 
| Concept à aire ouverte reliant salon, salle à manger et | 
| cuisine pour un espace lumineux et convivial. | 
| Cour arrière avec patio couvert pour profiter de | 
| l'extérieur. | 
| Maison polyvalente et fonctionnelle, parfaite pour premiers | 
| acheteurs, jeunes familles ou investisseurs. | 
| La qualité de vie à Gatineau | 
| Située dans un secteur résidentiel paisible, la propriété | 
| se trouve à proximité de tous les services essentiels : | 
| écoles, parcs, épiceries, centres commerciaux et services | 
| de santé. L'accès facile aux transports en commun et aux | 
| grands axes routiers permet un déplacement rapide vers | 
| Ottawa ou à l'intérieur de Gatineau. Les amateurs de plein | 
| air apprécieront aussi la proximité des pistes cyclables, | 
| des promenades en bord de rivière et du parc de la | 
| Gatineau, tout en profitant du dynamisme urbain. | 
| En résumé : abordable, polyvalente et idéalement située -- | 
| une occasion à saisir! | 


























