309 155 $+ TPS-TVQ
Ch. du Sommet
Bowman
Bowman
Type
Maison à étages
Chambres
3
Aire habitable
N/D
Salles de bain
2
355 566 $ (Taxes incluses)
Après TPS/TVQ et remboursements si applicable
Après TPS/TVQ et remboursements si applicable
MLS® 28773277
Description de la propriété
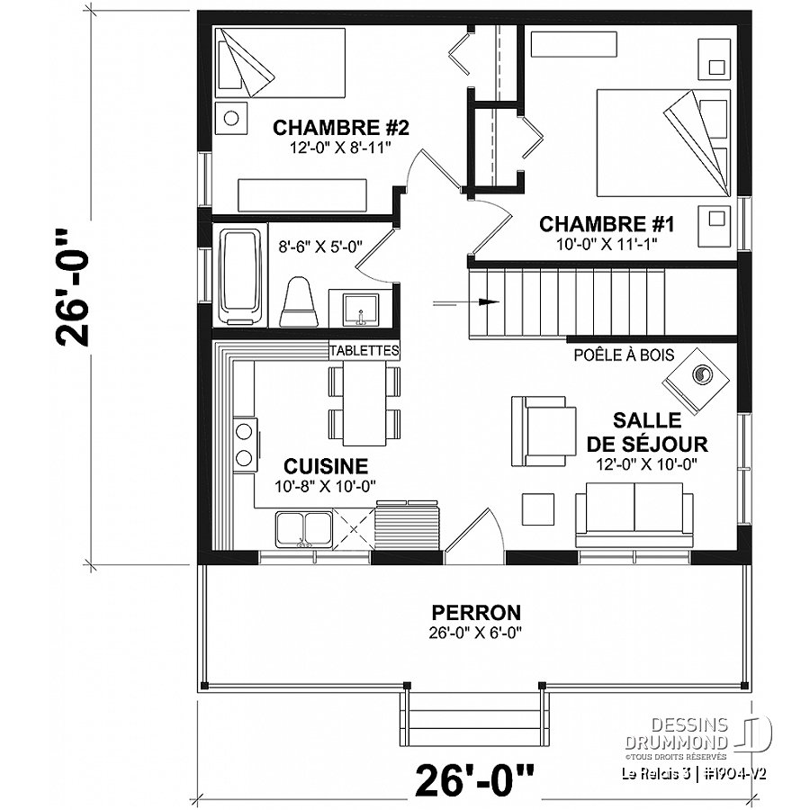
Super belle propriété en construction, il a toujours des option qui sont disponible. Un propriété qui vous offre 2 chambres à couché au rez de chaussé plus 1 au sous sol, 2 salle de bain complète. Un terrain d'environ 1 acre, avec accès a l'eau, belvédère et sentier pédestre à moins de 2 min de la maison. Situé à 35 min du Buckingham et 50 de Gatineau. Une seul visite vous charmera!
Détails
Taxes et dépenses
| Taxes municipales | 0 $ |
| Taxes scolaires | 0 $ |
Bâtiment et intérieur de la propriété
| Chambres | 3 |
| Salles de bain | 2 |
| Nombre de pièces | 9 |
| Nombre de chambres hors sol | 2 |
| Nombre de chambres au sous-sol | 1 |
| Éléments inclus lors de la vente | Voir sur le site Laforesthd.com ou dessinsdrummon.com/plan/le-relais-3-chalet-1003211. Plusieurs extra peuvent être disponible |
| Année de construction | 2025 |
| Superficie du bâtiment | 676 PC |
| Approvisionnement en eau | Puits artésien |
| Système d'égouts | Champ d'épuration, Fosse septique |
| Zonage | Résidentiel |
Addendas
| Sentier pédestre |
| Belvédère |
| Petit chalet champêtre 4-saisons à faible coût de |
| construction. |
| Grand balcon avant abrité. |
| Plafond en pente à 12 pieds à la cuisine et séjour. |
| emplacement tranquille |
| Retour de taxe de plus de 5 000$ |





















































