Low
Description de la propriété
Splendide propriété en bordure du Lac Bernard! Cette chaleureuse demeure vous propose 3 chambres, 2 salles de bain, des planchers de bois et un foyer invitant. L'espace de vie à aire ouverte, illuminé par de hauts plafonds et une grande véranda, offre une vue panoramique exceptionnelle sur le lac. Un bâtiment secondaire avec garage et atelier comprend 4 chambres supplémentaires, une salle d'eau, une salle de jeux et beaucoup de rangement. Le terrain plat mène directement au quai privé, avec un bord de l'eau peu profond. À seulement 50 min d'Ottawa, cette propriété au décor enchanteur vous promet d'agréables moments de détente et de plaisance.
Détails
Dimension des pièces
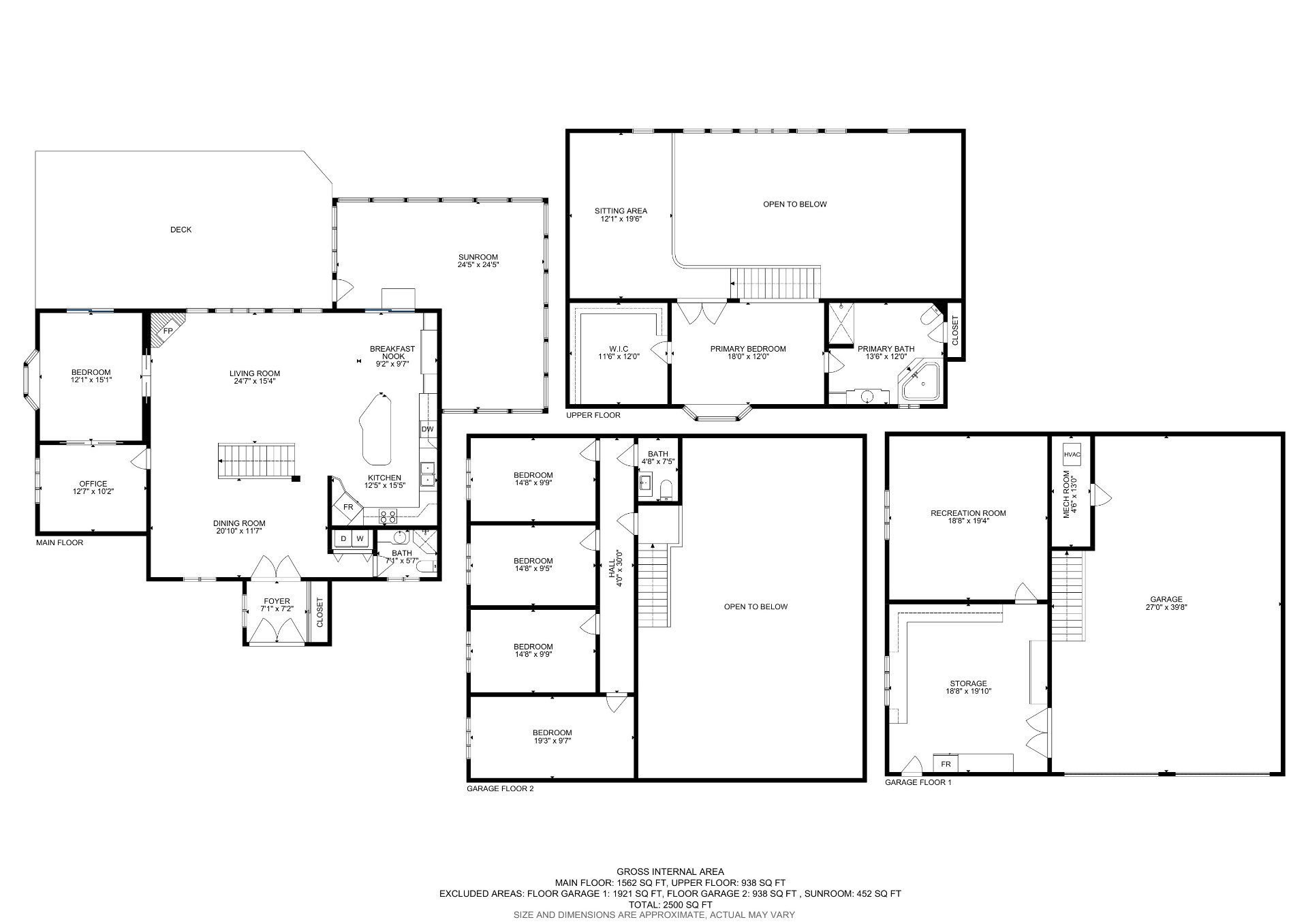
| Pièce | Niveau | Dimensions | Couvre plancher |
|---|---|---|---|
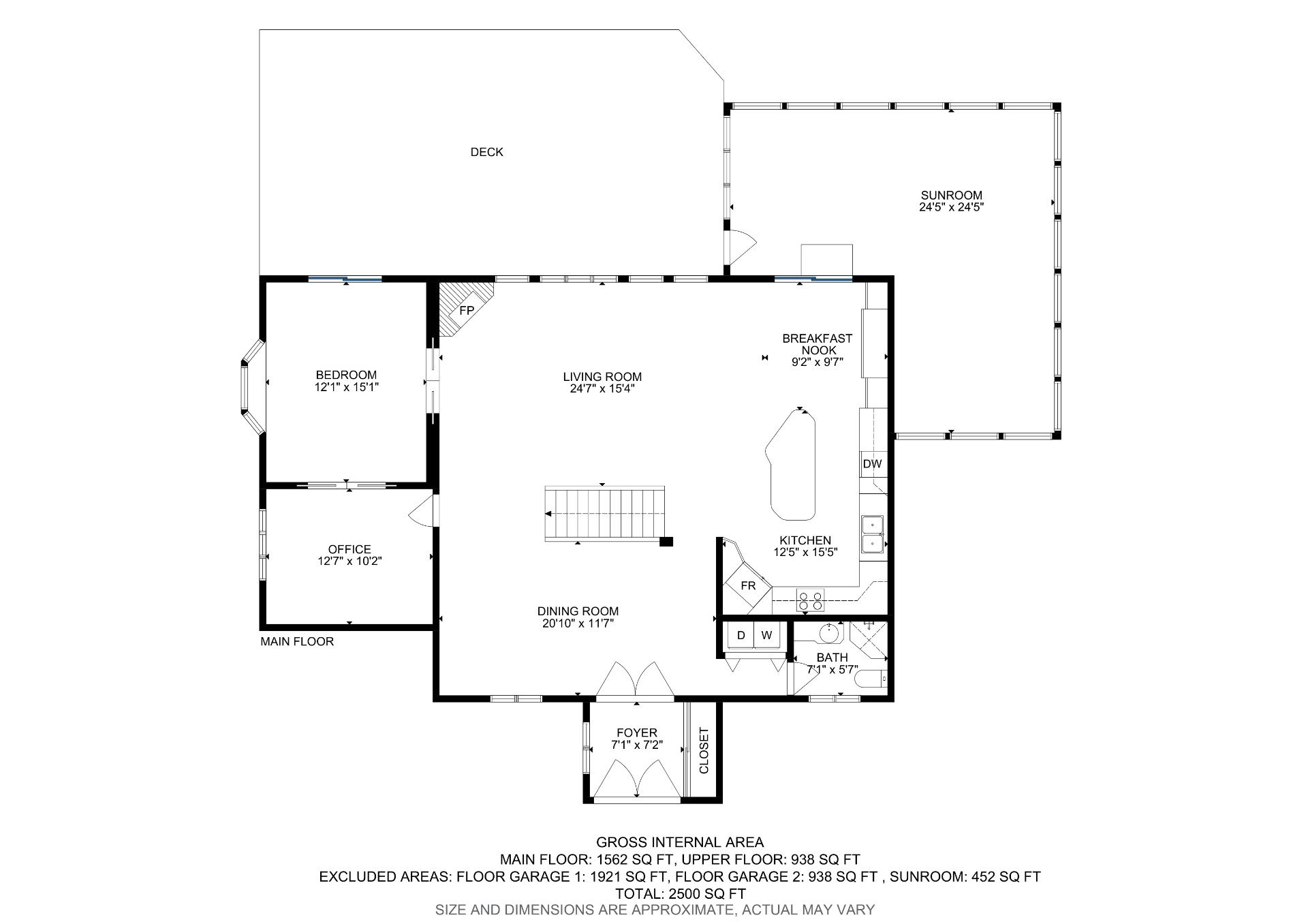
| Hall d'entrée | 1er niveau/RDC | 7.1x7.2 P | Céramique |
| Salle à manger | 1er niveau/RDC | 12.3x12.4 P | Bois |
| Salon | 1er niveau/RDC | 16x20.4 P | Bois |
| Véranda | 1er niveau/RDC | 25.9x25.8 P | Tapis |
| Cuisine | 1er niveau/RDC | 12.10x18.9 P | Céramique |
| Coin repas | 1er niveau/RDC | 6.8x7.10 P | Bois |
| Chambre à coucher | 1er niveau/RDC | 12x15.1 P | Bois |
| Chambre à coucher | 1er niveau/RDC | 9.11x12 P | Bois |
| Salle de bains | 1er niveau/RDC | 5.10x7.5 P | Céramique |
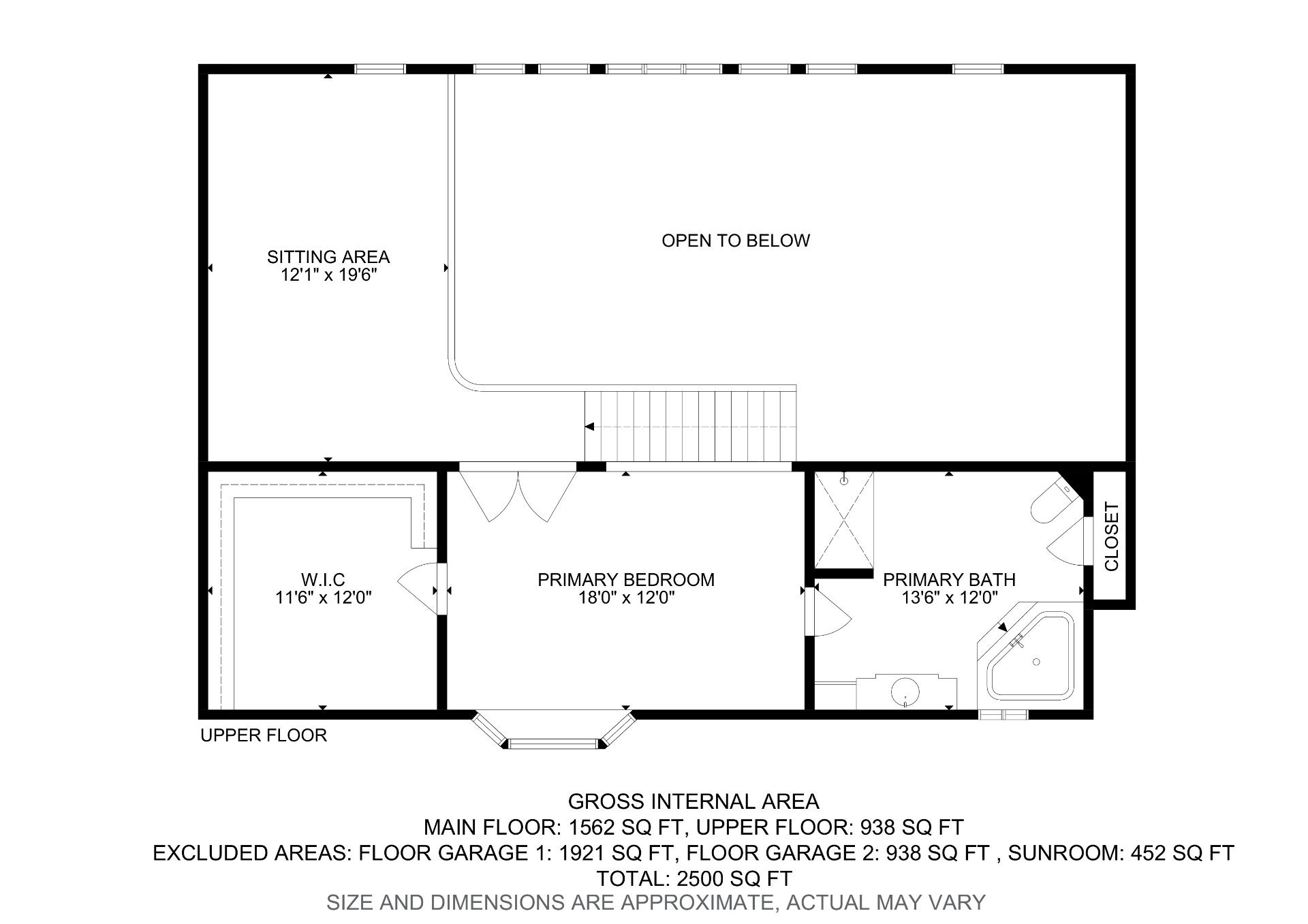
| Mezzanine | 2ième étage | 12.4x19.5 P | Bois |
| Chambre à coucher | 2ième étage | 11.8x17.10 P | Bois |
| Salle de bains | 2ième étage | 13.5x11.9 P | Céramique |
| Rangement | 2ième étage | 2.3x11.8 P | Bois |
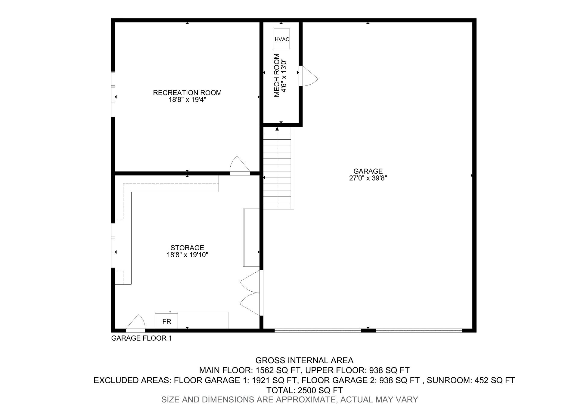
| Salle mécanique | 1er niveau/RDC | 12.1x10.11 P | Béton |
Taxes et dépenses
| Taxes municipales | 5 684 $ |
| Taxes scolaires | 605 $ |
Bâtiment et intérieur de la propriété
| Chambres | 3 |
| Salles de bain | 2 |
| Nombre de pièces | 15 |
| Nombre de chambres hors sol | 3 |
| Aire habitable | 2514 PC |
| Délai d'occupation prévu | 30 jours |
| Éléments inclus lors de la vente | Meubles du salon, électroménagers, table extérieure, bancs extérieurs et table de pique-nique, quai. |
| Éléments exclus lors de la vente | Effets personnels, outils, embarcations. |
| Dimension de la façade du bâtiment | 14.64 M |
| Dimension de la profondeur du bâtiment | 11.6 M |
| Superficie du terrain | 4080 MC |
| Dimension de la façade du terrain | 91.4 P |
| Dimension de la profondeur du terrain | 480.7 P |
| Année de construction | 2005 |
| Évaluation municipale (terrain) | 161 600 $ |
| Évaluation municipale (bâtiment) | 602 000 $ |
| Évaluation municipale (total) | 763 600 $ |
| Année d'évaluation | 2025 |
| Superficie du bâtiment | 1722 PC |
| Allée | Double largeur ou plus, Non pavée |
| Aménagement du terrain | Patio, Paysager |
| Base de sous-sol | Dalle de béton au sol |
| Mode de chauffage | Air soufflé |
| Approvisionnement en eau | Eau du lac |
| Énergie pour le chauffage | Électricité, Mazout |
| Équipement disponible | Adoucisseur d'eau, Système d'alarme, Porte de garage électrique, Échangeur d'air |
| Fenêtres | PVC |
| Foyers-poêles | Foyer au bois |
| Garage | Chauffé, Double largeur ou plus, Détaché |
| Revêtements | Bois |
| Particularités | Boisé, Navigable, Bordé par l'eau |
| Salle de bains/salle d'eau | Attenante à la chambre principale, Douche indépendante |
| Sous-sol | Aucun sous-sol |
| Stationnement | Extérieur, Au garage |
| Système d'égouts | Champ d'épuration, Fosse septique scellée, Fosse septique |
| Type de fenêtre | Manivelle, Porte-fenêtre |
| Toiture | Tôle |
| Topographie | Plat |
| Vue | Sur l'eau |
| Zonage | Résidentiel |
Addendas
| Superbe propriété 4 saisons sur les rives du magnifique Lac |
| Bernard, à seulement 50 minutes d'Ottawa. |
| Orientation sud-est offrant un ensoleillement optimal et |
| des vues splendides sur le lac, ainsi que de spectaculaires |
| levers et couchers de soleil. |
| Intérieur lumineux avec de hauts plafonds et fenestration |
| panoramique maximisant la vue sur l'eau. |
| Magnifiques planchers en chêne et spacieuse aire ouverte |
| incluant salon chaleureux avec foyer en pierre Napoléon, |
| salle à manger et cuisine moderne. |
| Cuisine spacieuse et fonctionnelle équipée d'un |
| réfrigérateur/congélateur, d'une cuisinière Elmira et d'un |
| coin déjeuner convivial. |
| Deux chambres confortables au rez-de-chaussée, une salle de |
| bain complète avec douche, espace buanderie pratique et |
| fonctionnel. |
| Luxueux loft/chambre principale à l'étage, offrant une |
| salle de bain privée avec jacuzzi pour deux personnes, |
| douche double, grand walk-in et air climatisé. |
| Magnifique solarium fermé de 16 x 16 pieds avec vue |
| panoramique sur le lac. |
| Vaste terrasse extérieure de 19 x 35 pieds, idéale pour les |
| rassemblements entre famille et amis. |
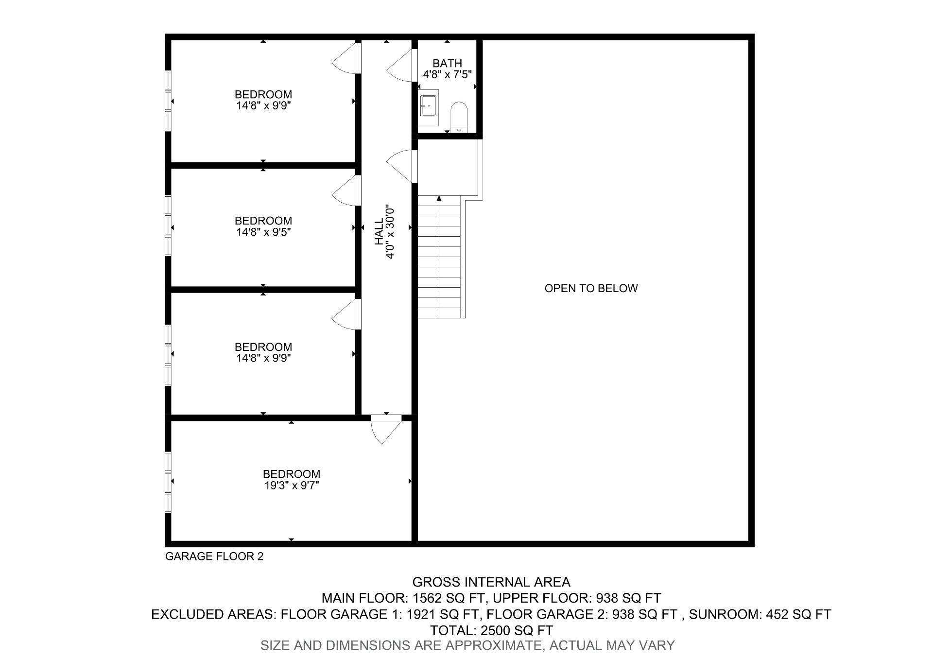
| Garage double détaché de 2 500 pieds carrés avec planchers |
| chauffants, portes automatiques, atelier, salle de jeux et |
| logement à l'étage comprenant 4 chambres et une salle d'eau. |
| Système de chauffage bi-énergie (fournaise à |
| l'huile/électricité), chauffe-eau à l'huile, eau filtrée |
| (désinfection UV Sterilight) et adoucisseur d'eau. |
| Buanderie équipée avec panneau de branchement pour |
| génératrice. |
| Système d'alarme prêt à être activé. |
| Quai privé et accès direct au lac, parfait pour la |
| baignade, les sports nautiques, la pêche et les activités |
| de plein air. |
| Rampe de mise à l'eau privée pour bateaux. |
| Terrain entouré d'arbres matures offrant intimité et calme |
| absolu. |































































































