$1,499,000+ GST-QST
525 Boul. Maloney E.
Gatineau (Gatineau)
Gatineau (Gatineau)
Type
Commercial building/Office
Bedrooms
N/A
Living area
N/A
Bathrooms
N/A
MLS® 11785109
Property description
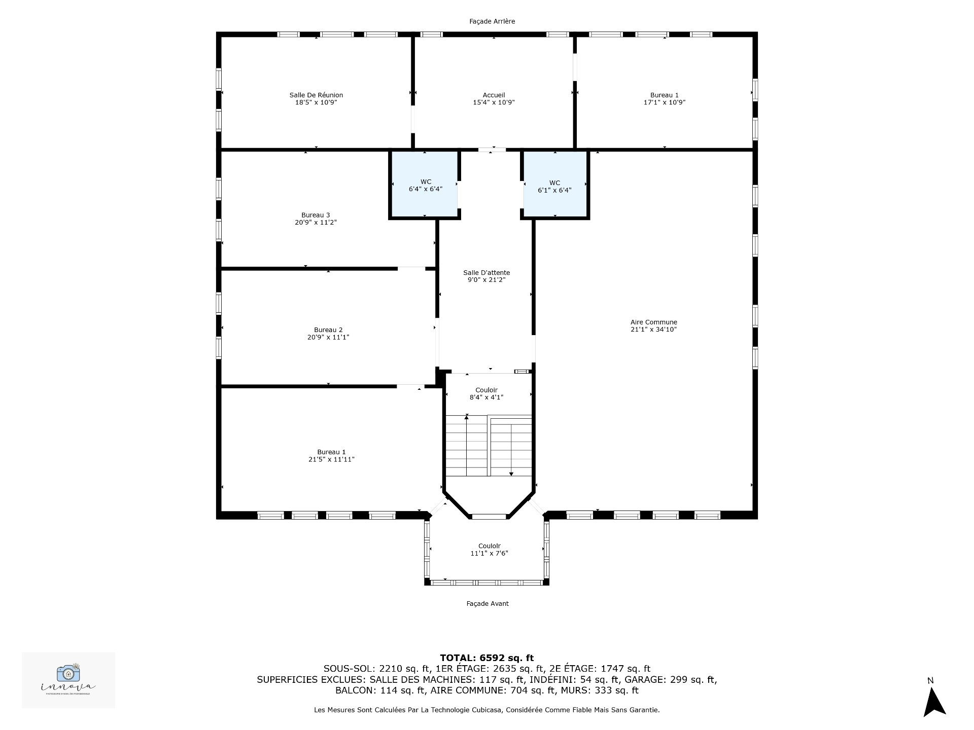
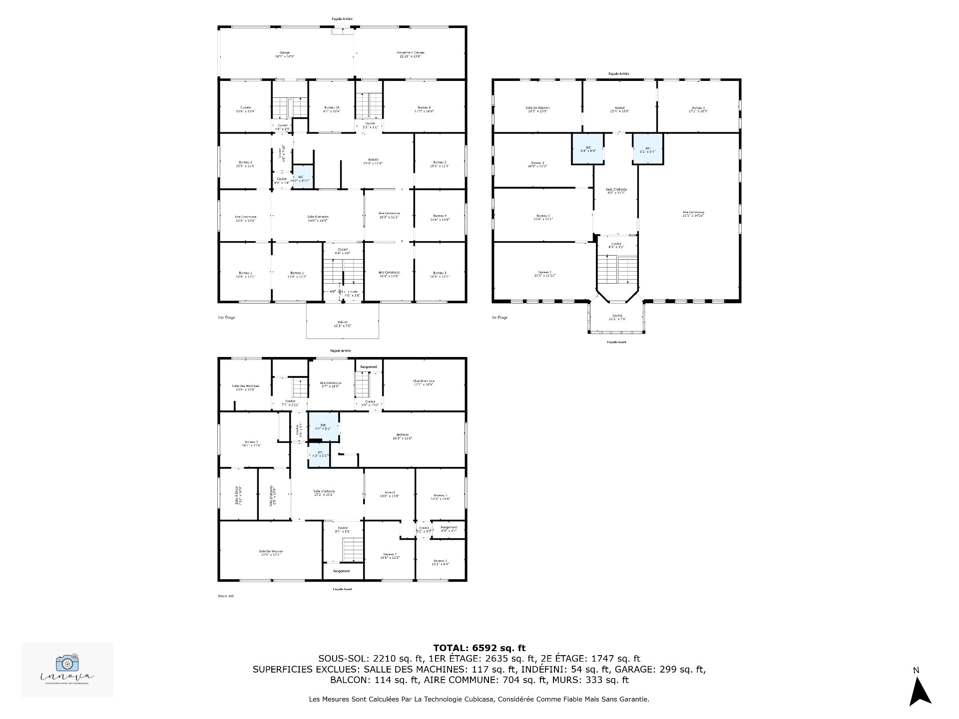
Versatile commercial building featuring private offices, conference rooms, warehouses, vault, garage, kitchen, wall and central A/C, electric heating, alarm system, and land included.
Details
Located near
Highway, Public transport
Taxes and expenses
| Municipal Taxes | $24,530 |
| School taxes | $643 |
Building and interior of the property
| Expected delay of occupancy | 30 days |
| Dimension of the front of the building | 18.05 M |
| Dimension of the depth of building | 16.45 M |
| Land area | 1919.59 SM |
| Dimension of the front of the land | 33.53 M |
| Dimension of the depth of the land | 57.25 M |
| Year built | 1970 |
| Municipal assessment (land) | $393,200 |
| Municipal assessment (building) | $252,800 |
| Municipal assessment (total) | $646,000 |
| Assessment year | 2025 |
| Number of stories | 2 |
| Irregular building | Yes |
| Area of the building | 296.92 SM |
| Irregular land | Yes |
| Driveway | Asphalt |
| Heating system | Electric baseboard units |
| Water supply | Municipality |
| Heating energy | Electricity |
| Equipment available | Central air conditioning, Alarm system, Sign, Wall-mounted air conditioning |
| Foundation | Poured concrete |
| Siding | Brick |
| Available services | Fire detector |
| Basement | 6 feet and over, Separate entrance, Partially finished |
| Sewage system | Municipal sewer |
| Type of business/Industry | Retail, Service |
| Roofing | Asphalt shingles |
| Zoning | Commercial |
Addendum
| Versatile commercial building featuring private offices, |
| conference rooms, warehouses, vault, garage, kitchen, wall |
| and central A/C, electric heating, alarm system, and land |
| included. |














