Gracefield
After GST / QST and refunds if applicable
Property description
Beautiful Scandinavian-inspired house nestled on a 1-acre wooded lot at the Domaine du Lac Métayer. This house offers you a bedroom and a bathroom on the ground floor, possibility of 2 bedrooms and an additional bathroom in the basement. Enjoy notarized access to Lac Métayer, hiking trails and the estate's facilities. Price displayed, shared tasks option, see the Addendum section for more information. Possibility of selling turnkey, contact us for more details. We also offer the possibility of building on your own land, contact us for more details.
Details
Located near
Golf, Park - green area, Elementary school, High school, Bicycle path, Cross-country skiing, Daycare centre
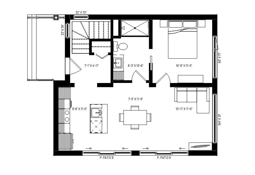
Room dimension
| Room | Floor | Dimensions | Floor covering |
|---|---|---|---|
| Kitchen | 1st level/Ground floor | 8.6x11 P | Flexible floor coverings |
| Dining room | 1st level/Ground floor | 7.3x11.9 P | Flexible floor coverings |
| Living room | 1st level/Ground floor | 10.11x11 P | Flexible floor coverings |
| Bedroom | 1st level/Ground floor | 10.5x11.0 P | Flexible floor coverings |
| Bathroom | 1st level/Ground floor | 6.3x10.6 P | Flexible floor coverings |
| Hallway | 1st level/Ground floor | 7.1x4.11 P | Flexible floor coverings |
| Family room | Basement 2 | 26x24 P | Concrete |
Taxes and expenses
| Municipal Taxes | $304 |
| School taxes | $0 |
Building and interior of the property
| Bedrooms | 1 |
| Bathrooms | 1 |
| Number of rooms | 7 |
| Number of rooms above ground | 1 |
| Living area | 1248 SF |
| Expected delay of occupancy | 30 days |
| Dimension of the front of the building | 26 F |
| Dimension of the depth of building | 24 F |
| Land area | 3753 SM |
| Dimension of the front of the land | 74 F |
| Dimension of the depth of the land | 66 F |
| Municipal assessment (land) | $38,000 |
| Municipal assessment (total) | $38,000 |
| Assessment year | 2025 |
| Year built code | To be built |
| Irregular building | Yes |
| Area of the building | 624 SF |
| Irregular land | Yes |
| Heating system | Electric baseboard units |
| Water supply | Artesian well |
| Heating energy | Electricity |
| Foundation | Poured concrete |
| Hearth stove | Gaz fireplace |
| Distinctive features | Water access, Private street |
| Sewage system | Purification field, Septic tank |
| Roofing | Elastomer membrane |
| Zoning | Residential |
Addendum
| Discover the shared task option. The shared task option |
| offers you the possibility of doing some work yourself and |
| saving on labor costs on site. Consult the list of |
| inclusions and exclusions of what is included in the price. |
| We also offer the turnkey option, contact us for more |
| details. |
| -Inclusion Kitchen |
| Factory installed melamine cabinets |
| Pre-molded countertops |
| Island |
| Metal pantry shelves |
| Sink(s) |
| Faucets |
| Stove hood |
| -Exclusion kitchen |
| Light fixtures |
| -Inclusion bathroom |
| Toilet(s) |
| Bath and/or shower |
| Sink |
| Faucets |
| Installed melamine cabinets |
| Pre-molded countertops |
| -Exclusion bathroom |
| Shower and/or bath installation |
| Toilet installation |
| Light fixtures |
| -Inclusion, Foundation and land |
| Land (Value $30,000) |
| Foundation |
| Land preparation |
| Excavation |
| Standard 2-chamber septic system |
| Artesian well |
| -Exclusion land and foudation |
| Interior insulation of the foundation |
| Implementation plan |
| Building permit |
| Certificate of location |
| Technologist plan |
| -Inclusion doors and windows |
| ENERGY entrance door STAR |
| ENERGY STAR patio door |
| ENERGY STAR triple-glazed windows |
| -Roof included |
| Roof structure |
| Nailed and glued shingle roof (30-year warranty) |
| -Exterior walls and finish included |
| House structure |
| Exterior siding |
| Exterior lights |
| Exterior outlets Superior quality sealing |
| Superior insulation |
| Superior waterproofing |
| -Exclusion of walls and exterior finish |
| Masonry installation |
| -Electricity included |
| Light outlets |
| Electrical outlets |
| Electronic thermostats |
| Electrical wiring passed |
| -Electrical exclusion |
| Electrical connection |
| -Plumbing included |
| -Toilet, bath and/or shower, sinks and washbasin |
| Plumbing passed |
| -Plumbing excluded |
| Plumbing connection |
| Air exchanger connection |
| -Interior finish included |
| Wall framing and divisions |
| Gypsum installed and screwed |
| Structural engineered wood subfloor |
| Staircase structure |
| Interior, closet doors and handles installed |
| Mouldings supplied, not installed |
| -Excluding interior finishing |
| Plastering |
| Painting |
| Floor coverings |






















