$599,900
20 Ch. John
Mayo
Mayo
Type
Bungalow
Bedrooms
2
Living area
1550 PC
Bathrooms
1
MLS® 14499557
Property description
Unique 2-bedroom property located on the shores of Lake John, Mayo. High-quality construction, 1 bathroom, 1 powder room, polished concrete & ceramic/slate radiant flooring, superb natural light with pond views, propane fireplace, wall-mounted heat pump, porch, and no basement. Peaceful wooded lot with patio area. Garage and several parking spaces. A unique, high-quality home so close to the city.
Details
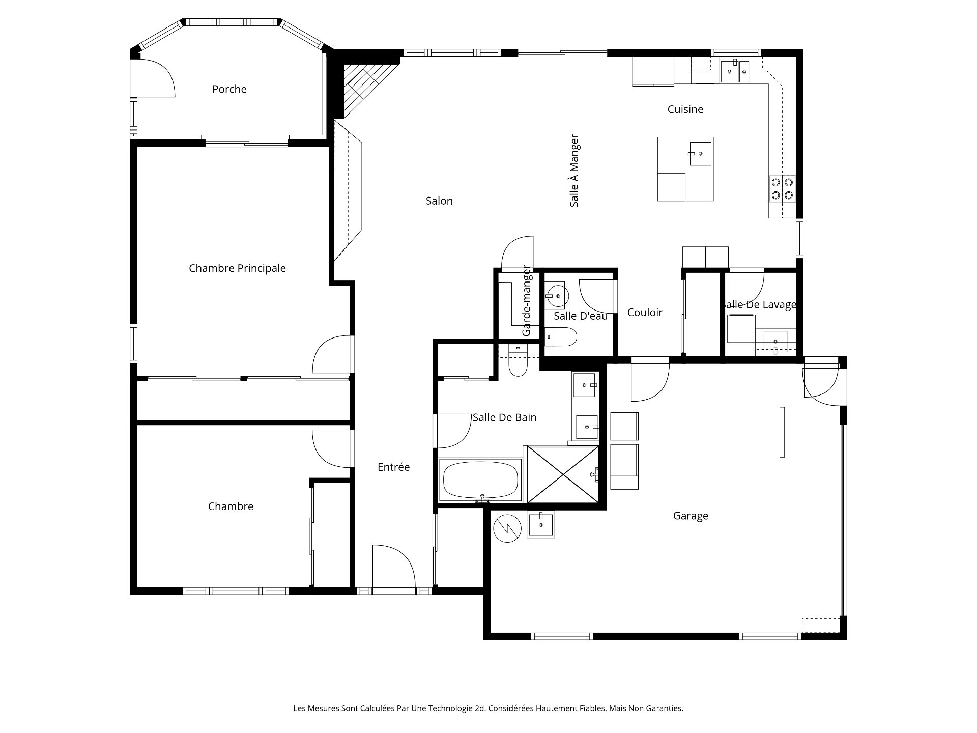
Room dimension
| Room | Floor | Dimensions | Floor covering |
|---|---|---|---|
| Hallway | 1st level/Ground floor | 8.6x5.9 P | Concrete |
| Bedroom | 1st level/Ground floor | 15x11.3 P | Concrete |
| Bathroom | 1st level/Ground floor | 11x9.4 P | Ceramic tiles |
| Master bedroom | 1st level/Ground floor | 14.10x16.1 P | Concrete |
| Living room | 1st level/Ground floor | 20x13.10 P | Concrete |
| Dining room | 1st level/Ground floor | 15.8x6.7 P | Concrete |
| Kitchen | 1st level/Ground floor | 15.8x12.8 P | Concrete |
| Laundry room | 1st level/Ground floor | 5.5x5 P | Concrete |
| Washroom | 1st level/Ground floor | 4.8x5.6 P | Slate |
| Veranda | 1st level/Ground floor | 8.5x13.6 P | Slate |
Taxes and expenses
| Municipal Taxes | $3,882 |
| School taxes | $361 |
| Energy cost | $3,350 |
Building and interior of the property
| Bedrooms | 2 |
| Bathrooms | 1 |
| Washrooms | 1 |
| Number of rooms | 10 |
| Number of rooms above ground | 2 |
| Living area | 1550 SF |
| Expected delay of occupancy | 60 days |
| Items included in the sale | Dishwasher, refrigerator, custom blinds, wall-mounted heat pump, garage door opener, non-functional wine cellar, 17 KW Generac generator, central vacuum system and accessories, water heater, air exchanger, water softener, and 2 furnaces, 2 pare étincelles |
| Items excluded in the sale | Propane tank (rental) and lake aerator. |
| Dimension of the front of the building | 14.87 M |
| Dimension of the depth of building | 13.34 M |
| Land area | 43787 SF |
| Dimension of the front of the land | 90.52 M |
| Dimension of the depth of the land | 44.94 M |
| Year built | 2011 |
| Municipal assessment (land) | $59,000 |
| Municipal assessment (building) | $450,600 |
| Municipal assessment (total) | $509,600 |
| Assessment year | 2026 |
| Irregular land | Yes |
| Driveway | Double width or more, Not Paved |
| Basement foundation | Concrete slab on the ground |
| Heating system | Radiant |
| Water supply | Artesian well |
| Heating energy | Electricity |
| Equipment available | Water softener, Wall-mounted heat pump, Electric garage door, Ventilation system, Central vacuum cleaner system installation |
| Windows | PVC |
| Hearth stove | Other |
| Garage | Attached, Single width, Heated |
| Siding | Pressed fibre, Stone |
| Distinctive features | No neighbours in the back, Non navigable, Waterfront, Wooded |
| Bathroom / Washroom | Seperate shower |
| Basement | No basement |
| Parking | Outdoor, Garage |
| Sewage system | Purification field, Septic tank |
| Window type | Crank handle, French window |
| Roofing | Asphalt shingles |
| Topography | Sloped, Flat |
| View | Water |
| Zoning | Residential |
Addendum
| 20 John Road, Mayo: |
| - Bungalow |
| - Area: Mayo |
| - High-quality construction |
| - No basement |
| - 2 bedrooms |
| - 1 bathroom |
| - 1 powder room |
| - Open concept |
| - Superb natural light with view of the pond |
| - Polished concrete floor |
| - Wall-mounted heat pump |
| - Veranda |
| - ICF concrete walls |
| - Generac 17kW generator |
| - Garage |
| - Several parking spaces |
| - Perfect location for wildlife viewing (turkeys, herons, |
| and birds) |
| - Waterfront |
| - Navigable pond (no motors) |
| - Very peaceful backyard |
| Lake John is a flooded pond with an approximate area of six |
| (6) acres, owned by the original land developers. Nine (9) |
| riparian co-owners have joined forces to improve water |
| quality by installing aerators and agitators. The aerators |
| and agitators are owned equally by the nine (9) owners. |
| Each co-owner is responsible for the electricity costs |
| (Hydro-Québec) associated with one (1) aerator or agitator. |



















































