Chelsea
Property description
In the heart of Chelsea! This property set on a flat 1.56-acre lot with both residential and commercial zoning, offering incredible flexibility and development potential for. The home features 3 bedrooms, 2 full bathrooms, a fully finished basement, and a screened-in veranda with a private view of the surrounding nature. Ideally located just steps from the vibrant village of Chelsea, cafés, restaurants, shops, and services, while being adjacent to Gatineau Park for endless outdoor activities. Only 5 minutes from Highway 5 and 15 minutes to Ottawa, this rare property combines prime location, versatility, and long-term opportunity.
Details
Located near
Highway, Golf, Park - green area, Elementary school, Public transport, Bicycle path, Alpine skiing, Cross-country skiing, Daycare centre
Room dimension
| Room | Floor | Dimensions | Floor covering |
|---|---|---|---|
| Hallway | 1st level/Ground floor | 6.3x5.10 P | Ceramic tiles |
| Kitchen | 1st level/Ground floor | 12.6x11.8 P | Ceramic tiles |
| Hallway | 1st level/Ground floor | 8.1x6.2 P | Ceramic tiles |
| Living room | 1st level/Ground floor | 16.7x11.2 P | Wood |
| Dining room | 1st level/Ground floor | 11.2x10.2 P | Wood |
| Bathroom | 1st level/Ground floor | 5.9x8.3 P | Ceramic tiles |
| Bedroom | 1st level/Ground floor | 7.9x11.1 P | Floating floor |
| Bedroom | 1st level/Ground floor | 8.10x11.8 P | Floating floor |
| Master bedroom | 1st level/Ground floor | 11.2x13.5 P | Wood |
| Washroom | 1st level/Ground floor | 5x4.10 P | Ceramic tiles |
| Veranda | 1st level/Ground floor | 8x16 P | Wood |
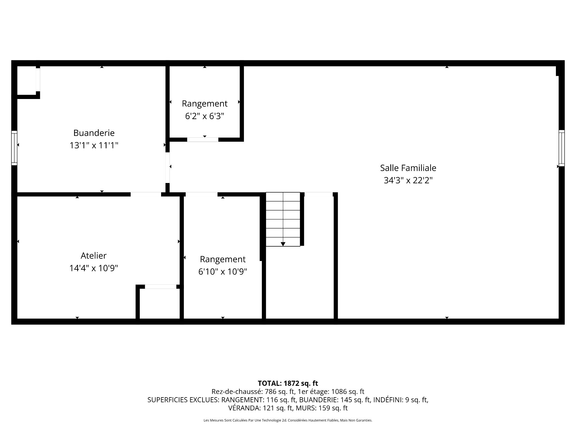
| Family room | Basement | 27.11x21.7 P | Floating floor |
| Storage | Basement | 11.10x5.9 P | Concrete |
| Storage | Basement | 5.8x6.3 P | Concrete |
| Storage | Basement | 10.7x7.2 P | Concrete |
| Laundry room | Basement | 12.8x10.6 P | Concrete |
| Workshop | Basement | 10.8x14.2 P | Concrete |
Taxes and expenses
| Municipal Taxes | $3,525 |
| School taxes | $384 |
Building and interior of the property
| Bedrooms | 3 |
| Bathrooms | 1 |
| Washrooms | 1 |
| Number of rooms | 17 |
| Number of rooms above ground | 3 |
| Living area | 1214 SF |
| Expected delay of occupancy | 30 days |
| Dimension of the front of the building | 50.2 F |
| Dimension of the depth of building | 24.2 F |
| Land area | 6309.4 SM |
| Dimension of the front of the land | 47.92 M |
| Year built | 1987 |
| Municipal assessment (land) | $219,200 |
| Municipal assessment (building) | $321,800 |
| Municipal assessment (total) | $541,000 |
| Assessment year | 2025 |
| Area of the building | 1214 SF |
| Irregular land | Yes |
| Driveway | Double width or more, Not Paved |
| Cupboard | Wood |
| Heating system | Electric baseboard units |
| Water supply | Artesian well |
| Heating energy | Electricity |
| Equipment available | Wall-mounted air conditioning, Alarm system |
| Windows | PVC |
| Foundation | Poured concrete |
| Siding | Wood |
| Distinctive features | Wooded |
| Basement | 6 feet and over, Finished basement |
| Parking | Outdoor |
| Sewage system | Purification field, Septic tank |
| Window type | Sliding, French window, Crank handle |
| Roofing | Asphalt shingles |
| Topography | Flat |
| View | Mountain |
| Zoning | Commercial, Residential |
Addendum
| * Exceptional property located in the prestigious and |
| historic Kingsmere area of Chelsea, known for its |
| tranquility, mature landscapes, and unique blend of nature |
| and heritage. |
| * Flat and spacious 1.56-acre lot, offering remarkable |
| privacy, natural beauty, and excellent development |
| potential. (including the private road) |
| * Residential and commercial zoning, providing unmatched |
| flexibility for a primary residence, professional space, |
| mixed-use project, or investment opportunity. |
| * Charming bungalow featuring 3 bedrooms, 2 full bathrooms, |
| and a fully finished basement offering multiple layout |
| possibilities to suit various needs. |
| * Screened-in veranda overlooking peaceful greenery, ideal |
| for relaxing and enjoying quiet evenings outdoors. |
| * Ample parking space and easy year-round access via a |
| well-maintained municipal road. |
| * Just steps from the heart of Chelsea Village, with cafés, |
| restaurants, boutiques, gourmet shops, a vibrant artistic |
| community, and essential services. |
| * Adjacent to Gatineau Park, giving direct access to |
| hiking, cycling, cross-country skiing, lakes, and countless |
| outdoor activities. |
| * Less than 5 minutes to Highway 5, making travel to |
| Gatineau and downtown Ottawa quick and convenient (15 |
| minutes). |
| * Close to public transit, schools, community centres, and |
| recreational facilities--ideal for families and active |
| lifestyles. |
| * Flexible zoning and prime location offer excellent |
| opportunities for value growth, redevelopment, or long-term |
| investment. |
| * Kingsmere is rich in heritage and known for its notable |
| neighbouring estates, historic pathways, and protected |
| landscapes. |
| * A rare opportunity to acquire a versatile property in one |
| of the most desirable and iconic areas of the region. |










































