Gatineau (Hull)
Property description
Hull area. Beautiful semi-detached, 3 bedrooms upstairs, kitchen with thermoplastic cabinets, hardwood floors in the living and dining rooms, family room in the basement, private hedge-lined, double-width parking. Located within walking distance of a shopping center with a grocery store. Close to elementary, high, and college schools.
Details
Located near
Highway, Cegep, Golf, Hospital, Park - green area, Elementary school, High school, Public transport, University, Bicycle path, Cross-country skiing, Daycare centre
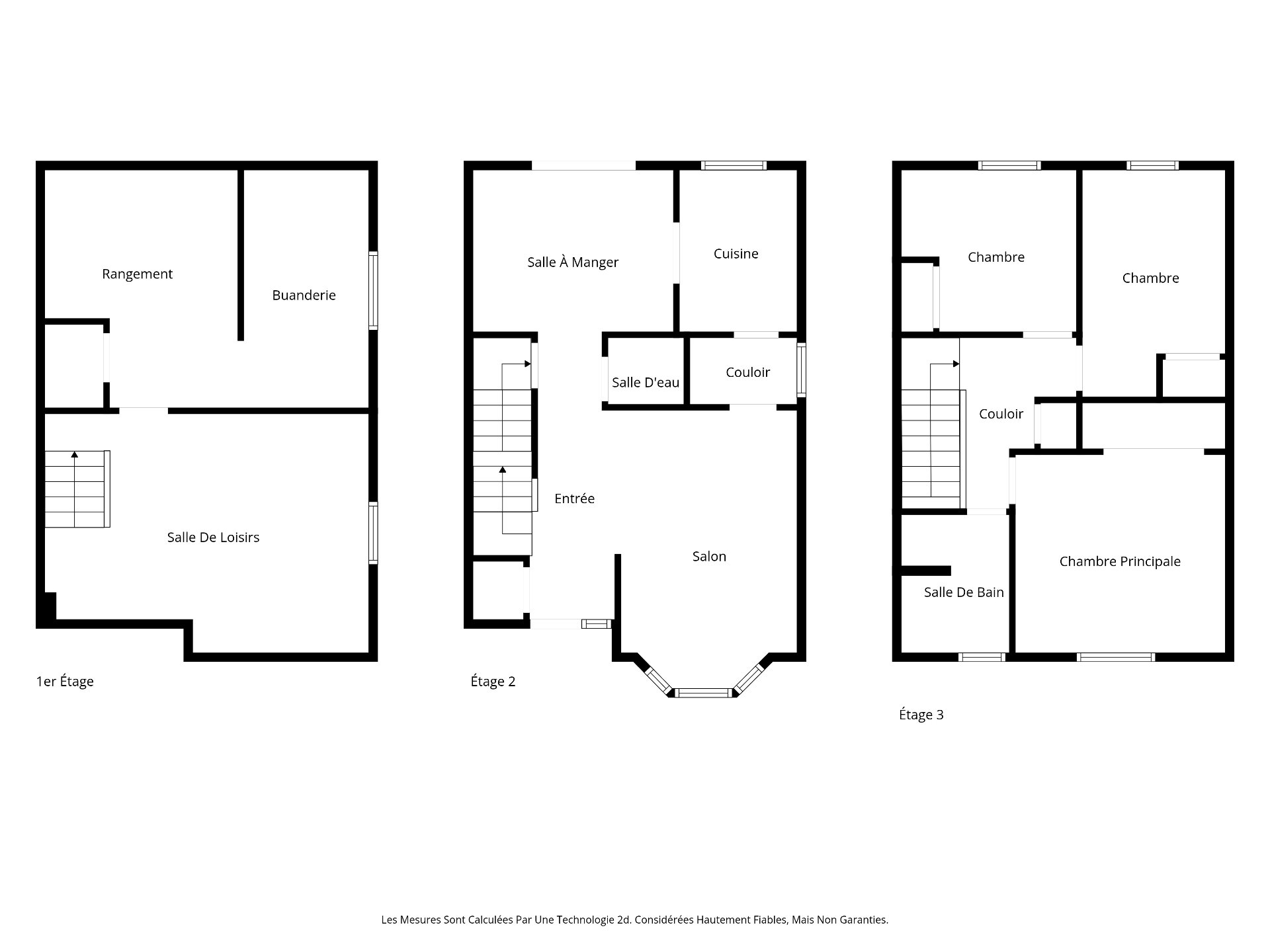
Room dimension
| Room | Floor | Dimensions | Floor covering |
|---|---|---|---|
| Hallway | 1st level/Ground floor | 5.6x5.2 P | Ceramic tiles |
| Living room | 1st level/Ground floor | 15.2x12.0 P | Wood |
| Kitchen | 1st level/Ground floor | 9.0x7.6 P | Ceramic tiles |
| Dining room | 1st level/Ground floor | 11.0x9.0 P | Ceramic tiles |
| Washroom | 1st level/Ground floor | 5.0x4.2 P | Ceramic tiles |
| Master bedroom | 2nd floor | 12.0x12.0 P | Parquetry |
| Bedroom | 2nd floor | 11.0x8.4 P | Parquetry |
| Bedroom | 2nd floor | 10.0x11.0 P | Carpet |
| Bathroom | 2nd floor | 8.4x6.4 P | Ceramic tiles |
| Family room | Basement | 15.0x15.0 P | Carpet |
| Laundry room | Basement | 13.0x7.9 P | Concrete |
| Storage | Basement | 13.0x10.6 P | Concrete |
Taxes and expenses
| Municipal Taxes | $3,085 |
| School taxes | $277 |
Building and interior of the property
| Bedrooms | 3 |
| Bathrooms | 1 |
| Washrooms | 1 |
| Number of rooms | 12 |
| Number of rooms above ground | 3 |
| Living area | 1200 SF |
| Items included in the sale | Wall-mounted air conditioner, shed. |
| Items excluded in the sale | Water heater rented. |
| Dimension of the front of the building | 20 F |
| Dimension of the depth of building | 30 F |
| Land area | 3082 SF |
| Dimension of the front of the land | 30 F |
| Dimension of the depth of the land | 102.6 F |
| Year built | 1984 |
| Municipal assessment (land) | $159,000 |
| Municipal assessment (building) | $251,600 |
| Municipal assessment (total) | $410,600 |
| Assessment year | 2025 |
| Area of the building | 600 SF |
| Driveway | Asphalt, Double width or more |
| Landscaping | Land / Yard lined with hedges |
| Cupboard | Thermoplastic |
| Heating system | Electric baseboard units |
| Water supply | Municipality |
| Heating energy | Electricity |
| Equipment available | Wall-mounted heat pump |
| Windows | PVC |
| Foundation | Poured concrete |
| Rental appliances | Water heater |
| Siding | Brick, Vinyl |
| Basement | 6 feet and over, Partially finished |
| Parking | Outdoor |
| Sewage system | Municipal sewer |
| Window type | Sliding, Crank handle |
| Roofing | Asphalt shingles |
| Topography | Flat |
| Zoning | Residential |





























