Notre-Dame-du-Laus
Property description
Stunning property located directly on the waterfront in Notre-Dame-du-Laus. Offering a peaceful natural setting and breathtaking views of the Lièvre River, this property is ideal for outdoor enthusiasts and water sports lovers. The spacious lot with direct water access is perfect for swimming, kayaking, or enjoying sunset evenings. The property features bright and inviting spaces, perfect for entertaining family and friends. Whether as a primary residence or a cottage, this is a unique opportunity to enjoy a true slice of paradise in the heart of nature. Contact me now to schedule a visit!
Details
Located near
Park - green area, Elementary school, Cross-country skiing
Room dimension
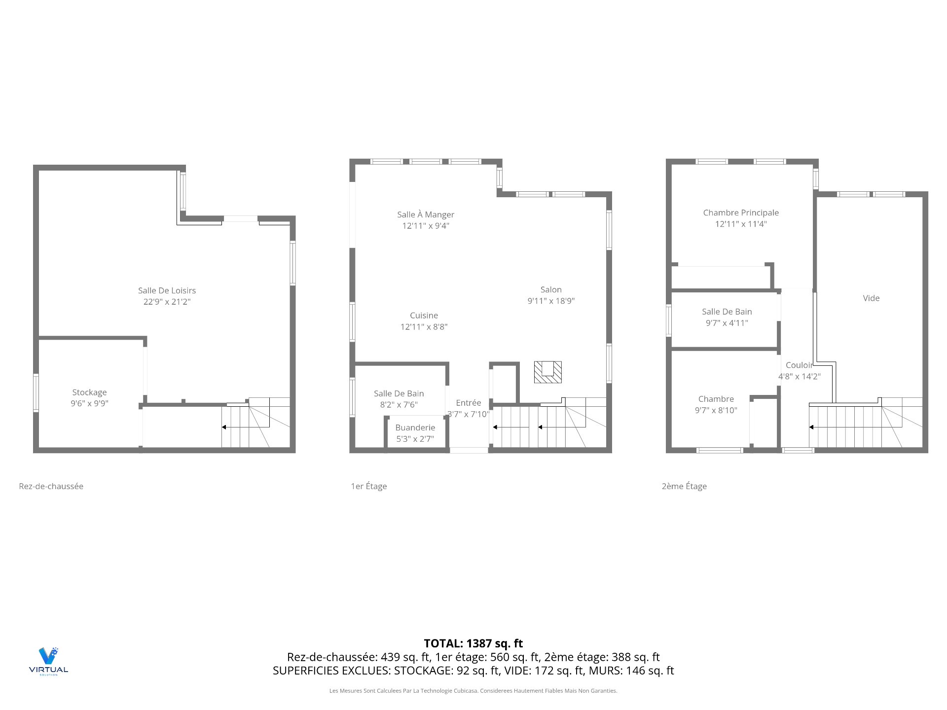
| Room | Floor | Dimensions | Floor covering |
|---|---|---|---|
| Living room | 1st level/Ground floor | 9.11x18.9 P | Floating floor |
| Dining room | 1st level/Ground floor | 12.11x9.4 P | Ceramic tiles |
| Kitchen | 1st level/Ground floor | 12.11x8.8 P | Ceramic tiles |
| Bathroom | 1st level/Ground floor | 8.2x7.6 P | Ceramic tiles |
| Master bedroom | 2nd floor | 12.11x11.4 P | Floating floor |
| Bedroom | 2nd floor | 9.7x8.10 P | Floating floor |
| Bathroom | 2nd floor | 9.7x4.11 P | Ceramic tiles |
| Family room | Basement | 22.9x21.2 P | Concrete |
| Storage | Basement | 9.6x9.9 P | Concrete |
Taxes and expenses
| Municipal Taxes | $2,565 |
| School taxes | $284 |
Building and interior of the property
| Bedrooms | 2 |
| Bathrooms | 2 |
| Number of rooms | 9 |
| Number of rooms above ground | 2 |
| Living area | 1017 SF |
| Items included in the sale | Refrigerator, stove, dishwasher, microwave hood, 2 kitchen counter stools, blinds and curtains, light fixtures, central vacuum, hot water tank, 2 IKEA bookcases in the bedroom, dock and waterside chairs, outdoor patio set, gazebo, canoe rack. |
| Items excluded in the sale | Washer and dryer. |
| Dimension of the front of the building | 7.38 M |
| Dimension of the depth of building | 8.29 M |
| Land area | 121622.45 SF |
| Dimension of the front of the land | 212.6 F |
| Dimension of the depth of the land | 142.7 F |
| Year built | 2009 |
| Assessment year | 2026 |
| Irregular building | Yes |
| Irregular land | Yes |
| Driveway | Not Paved |
| Landscaping | Patio, Landscape |
| Cupboard | Melamine |
| Heating system | Other, Electric baseboard units |
| Water supply | Other |
| Heating energy | Wood, Electricity |
| Equipment available | Central vacuum cleaner system installation, Wall-mounted heat pump |
| Windows | PVC |
| Foundation | Poured concrete |
| Hearth stove | Wood burning stove |
| Siding | Vinyl |
| Distinctive features | Unaccessible year-round, Water access, Navigable, Waterfront, Wooded, No neighbours in the back |
| Available services | Fire detector |
| Basement | 6 feet and over, Finished basement |
| Parking | Outdoor |
| Sewage system | Septic tank, Dry well |
| Window type | Sliding, Crank handle |
| Roofing | Asphalt shingles |
| Topography | Sloped, Flat |
| View | Water, Panoramic, Mountain |
| Zoning | Residential |










































































