Gatineau (Gatineau)
Property description
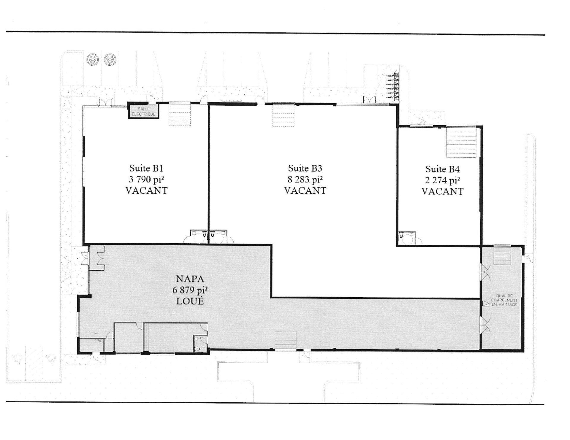
Total area: 14,347 ft² - Possibility of renting as a whole or in separate units. Common loading dock for all suites. Located in a strategic industrial sector, this building offers three distinct suites: Unit B1: 3,790 sq. ft. Unit B3: 8,283 sq. ft. Unit B4: 2,274 sq. ft. Each space is well-appointed and benefits from over 20-foot ceilings, ideal for warehousing, production or commercial activities. Easy access, visibility and great potential for growing businesses. Flexible leasing to suit your needs. Contact us for more information or to schedule a visit.
Details
Building and interior of the property
| Expected delay of occupancy | 30 days |
| Items excluded in the sale | Heating, electricity and other utilities |
| Land area | 52395.92 SF |
| Year built | 2024 |
| Municipal assessment (land) | $235,800 |
| Municipal assessment (building) | $3,536,300 |
| Municipal assessment (total) | $3,772,100 |
| Assessment year | 2022 |
| Type of business/Industry | Retail, Service, Wholesaler, Manufacturing, Warehouse |
| Zoning | Commercial, Industrial |
Addendum
| Base Rent : 19$ per SF |
| Added rent - (6,75 per SF) Municipal and school taxes. |
| Common area fees |































