Gatineau (Hull)
Property description
Welcome to La Tourelle sur le Parc, your Urban Oasis Discover the appeal of this magnificent corner unit on the fourth floor. Southeast-facing, it is bathed in natural light throughout the day. Space and comfort await you with two large bedrooms and a very spacious living room, ideal for entertaining family and friends with ease. Ideally located facing the peaceful Jacques-Cartier Park and within walking distance of downtown Ottawa, this prime location invites you to an active and dynamic lifestyle. The unit also includes The unit also includes a dedicated parking space and a storage locker.
Details
Located near
Highway, Park - green area, Public transport
Room dimension
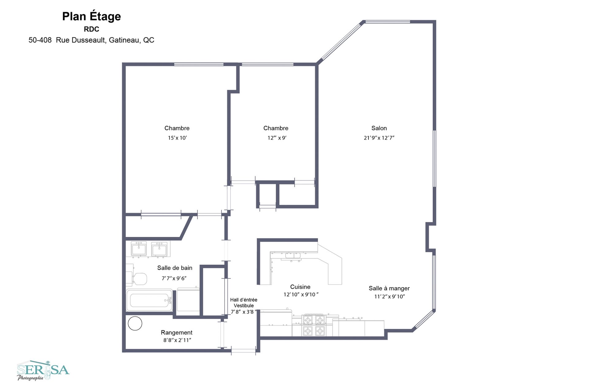
| Room | Floor | Dimensions | Floor covering |
|---|---|---|---|
| Hallway | 4th floor | 7.8x3.8 P | Ceramic tiles |
| Kitchen | 4th floor | 12.10x9.10 P | Ceramic tiles |
| Dinette | 4th floor | 11.2x9.10 P | Ceramic tiles |
| Living room | 4th floor | 21.9x12.7 P | Wood |
| Master bedroom | 4th floor | 15x10 P | Wood |
| Bedroom | 4th floor | 12x9 P | Wood |
| Bathroom | 4th floor | 7.7x9.6 P | Ceramic tiles |
Taxes and expenses
| School taxes | $227 |
| Municipal Taxes | $2,990 |
| Co-ownership fees | $6,084 |
Building and interior of the property
| Co-ownership fees | $6,084 |
| Bedrooms | 2 |
| Bathrooms | 1 |
| Number of rooms | 7 |
| Number of rooms above ground | 2 |
| Living area | 86.5 SM |
| Expected delay of occupancy | 30 days |
| Items included in the sale | Stove, refrigerator, washer, dryer, blind |
| Dimension of the front of the building | 9.48 M |
| Dimension of the depth of building | 8.69 M |
| Land area | 4233 SM |
| Dimension of the front of the land | 60.07 M |
| Dimension of the depth of the land | 60.4 M |
| Year built | 1986 |
| Municipal assessment (land) | $104,500 |
| Municipal assessment (building) | $225,100 |
| Municipal assessment (total) | $329,600 |
| Assessment year | 2025 |
| Type of ownership | Divided |
| Condo floor | 4 |
| Number of stories | 10 |
| Irregular building | Yes |
| Irregular land | Yes |
| Driveway | Asphalt |
| Heating system | Electric baseboard units |
| Water supply | Municipality |
| Heating energy | Electricity |
| Equipment available | Wall-mounted heat pump |
| Easy access | Elevator |
| Distinctive features | Water access, Navigable |
| Pool | Inground |
| Restrictions/Permissions | |
| Available services | |
| Cadastre - Parking (included in the price) | Driveway |
| Parking | Outdoor |
| Sewage system | Municipal sewer |
| Window type | Crank handle |
| View | Panoramic |
| Zoning | Residential |








































