Gatineau (Hull)
Property description
A rare gem! Intergenerational property ideally located in the sought-after Hautes-Plaines neighborhood. The main home, fully renovated, features 4 bedrooms, 2 bathrooms, a bright office space, and a fully finished basement. A stunning two-story addition built in 2020 offers a separate living area with 2 bedrooms and 1 bathroom & 1 powder room. The landscaped lot is flat, fenced, and private, designed for relaxation and leisure with a spa, patio, heated in-ground pool, and multiple storage areas. Nestled in a quiet, desirable sector, this property combines modern comfort, versatility, and an exceptional quality of life.
Details
Located near
Highway, Cegep, Golf, Hospital, Park - green area, Elementary school, High school, Public transport, Bicycle path, Alpine skiing, Cross-country skiing, Daycare centre
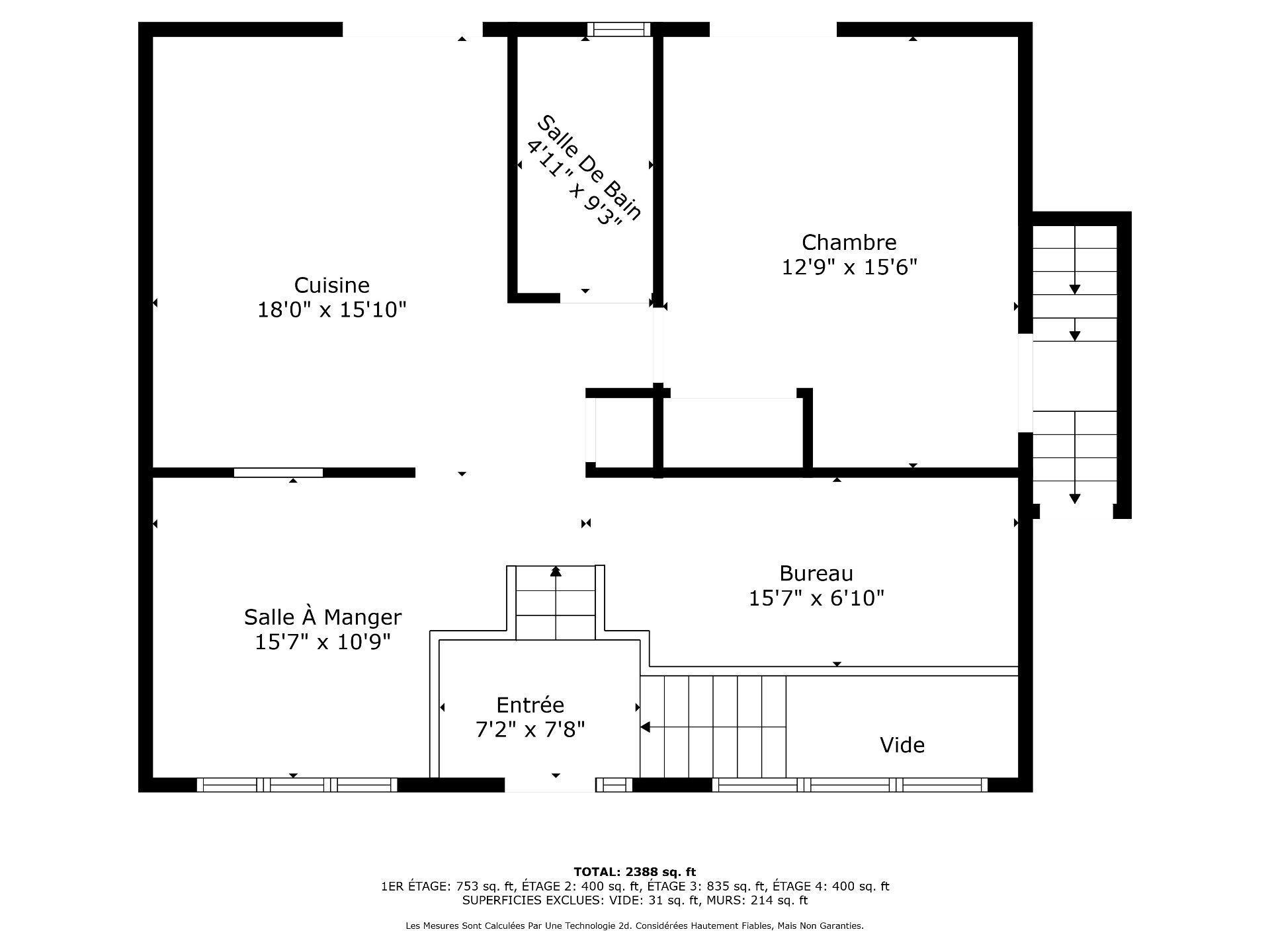
Room dimension
| Room | Floor | Dimensions | Floor covering |
|---|---|---|---|
| Hallway | 1st level/Ground floor | 4.2x8.3 P | Flexible floor coverings |
| Kitchen | 1st level/Ground floor | 9.2x16.7 P | Flexible floor coverings |
| Living room | 1st level/Ground floor | 10.2x12.7 P | Flexible floor coverings |
| Washroom | 1st level/Ground floor | 3x6.5 P | Flexible floor coverings |
| Bedroom | 2nd floor | 8.7x13.7 P | Wood |
| Bathroom | 2nd floor | 7.2x10.9 P | Ceramic tiles |
| Bedroom | 2nd floor | 9.9x13.6 P | Wood |
| Hallway | 1st level/Ground floor | 5.2x7.7 P | Ceramic tiles |
| Dining room | 1st level/Ground floor | 9.9x10.7 P | Wood |
| Home office | 1st level/Ground floor | 7.2x12.4 P | Floating floor |
| Kitchen | 1st level/Ground floor | 12.8x15.4 P | Ceramic tiles |
| Bathroom | 1st level/Ground floor | 4.11x9.2 P | Ceramic tiles |
| Bedroom | 1st level/Ground floor | 12x15.3 P | Wood |
| Family room | Basement | 14.9x11.9 P | Floating floor |
| Laundry room | Basement | 5.1x4.9 P | Floating floor |
| Bedroom | Basement | 14.8x11.8 P | Floating floor |
| Storage | Basement | 9.7x5.2 P | Concrete |
| Bedroom | Basement | 12.4x10.8 P | Floating floor |
| Bathroom | Basement | 4.9x7.1 P | Ceramic tiles |
| Bedroom | Basement | 9.9x11.7 P | Floating floor |
Taxes and expenses
| School taxes | $538 |
| Municipal Taxes | $6,213 |
| Energy cost | $4,240 |
Building and interior of the property
| Bedrooms | 7 |
| Bathrooms | 2 |
| Number of rooms | 13 |
| Number of rooms above ground | 4 |
| Number of basement bedrooms | 3 |
| Living area | 1845 SF |
| Expected delay of occupancy | 60 days |
| Items included in the sale | Spa with accessories. |
| Items excluded in the sale | Dish Washer. |
| Dimension of the front of the building | 47 F |
| Land area | 807 SM |
| Dimension of the front of the land | 17 M |
| Dimension of the depth of the land | 46.42 M |
| Year built | 1983 |
| Municipal assessment (land) | $297,900 |
| Municipal assessment (building) | $511,000 |
| Municipal assessment (total) | $808,900 |
| Assessment year | 2025 |
| Irregular building | Yes |
| Area of the building | 1375 SF |
| Driveway | Double width or more, Plain paving stone |
| Landscaping | Fenced, Landscape, Patio |
| Heating system | Electric baseboard units, Radiant |
| Water supply | Municipality |
| Heating energy | Electricity |
| Windows | Wood, PVC |
| Foundation | Poured concrete |
| Siding | Aggregate, Pressed fibre, Brick |
| Distinctive features | Intergeneration |
| Pool | Heated, Inground |
| Restrictions/Permissions | Animals allowed |
| Bathroom / Washroom | Seperate shower |
| Basement | 6 feet and over, Finished basement |
| Parking | Outdoor |
| Sewage system | Municipal sewer |
| Window type | Sliding, French window, Crank handle |
| Roofing | Elastomer membrane, Tin |
| Topography | Flat |
| Zoning | Residential |
Addendum
| Potential for income, or possibility of renting out a room |
| to students. |
| Entire property |
| - 6 bedrooms, 1 office space, and 3 full bathrooms and 1 |
| powder room. |
| - Communicating intergenerational concept, balancing |
| privacy and togetherness |
| - Renovated main home + 2020 addition, offering modern |
| comfort and flexibility |
| Main home |
| - Fully renovated with a large, modern, and functional |
| kitchen |
| - Main floor: 1 bedroom, 1 office, and 1 bathroom |
| - Finished basement: 3 additional bedrooms and 1 full |
| bathroom |
| - Bright, welcoming spaces designed for family living |
| Communicating intergenerational |
| - Separate entrance with direct access to the backyard |
| - Main floor: open-concept kitchen, dining area, living |
| room and a powder room. |
| - Radiant flooring for optimal comfort |
| - Upper level: 2 bedrooms, including one with a private |
| patio overlooking the backyard, and 1 bathroom with second |
| washer-dryer installation |
| Outdoor spaces and location |
| - Private, beautifully landscaped, and fully fenced yard |
| - Spa, large deck, heated saltwater in-ground pool (14 x |
| 32), relaxation areas, and storage |
| - Located in the highly sought-after Hautes-Plaines sector, |
| peaceful and family-oriented |
| - Close to Gatineau Park, hiking trails, schools, shops, |
| restaurants, and Highway 5 |
| - Quick access to the villages of Wakefield and Chelsea, as |
| well as downtown Gatineau and Ottawa |








































































