Gatineau (Aylmer)
Property description
Detached two-story house (1987) offering 1,567 sq. ft. of living space + fully finished 6-foot basement! 3 bedrooms + 2 offices, 2 bathrooms + 1 powder room. Living room with wood-burning fireplace, functional kitchen, large family room on the ground floor. Versatile basement: family room, 2 offices, laundry room. Wall-mounted heat pump. 5,867 sq. ft. landscaped lot on a corner with patio and shed. Pre-sale inspection completed! Close to schools, parks, and bike path. Intergenerational living possible.
Open houses
Sunday 1 March from 14:00 to 16:00Details
Located near
Highway, Golf, Park - green area, Elementary school, High school, Public transport, University, Bicycle path, Cross-country skiing, Daycare centre
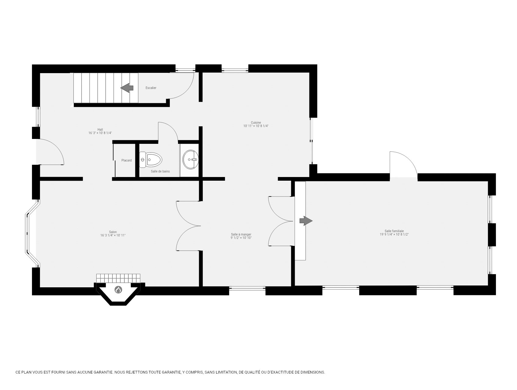
Room dimension
| Room | Floor | Dimensions | Floor covering |
|---|---|---|---|
| Hallway | 1st level/Ground floor | 5.6x7.9 P | Ceramic tiles |
| Washroom | 1st level/Ground floor | 4x6.1 P | Ceramic tiles |
| Living room | 1st level/Ground floor | 11.1x14.3 P | Wood |
| Dining room | 1st level/Ground floor | 11.1x8.11 P | Wood |
| Kitchen | 1st level/Ground floor | 11.3x8.10 P | Ceramic tiles |
| Family room | 1st level/Ground floor | 10.8x19.9 P | Floating floor |
| Master bedroom | 2nd floor | 13.6x12.10 P | Floating floor |
| Bedroom | 2nd floor | 9.0x10.11 P | Floating floor |
| Bathroom | 2nd floor | 8.5x7.4 P | Flexible floor coverings |
| Bedroom | 2nd floor | 9.1x8.10 P | Floating floor |
| Storage | Basement | 8.10x2.10 P | Concrete |
| Family room | Basement | 7.3x19.9 P | Ceramic tiles |
| Home office | Basement | 10.7x11.11 P | Floating floor |
| Bathroom | Basement | 7.6x4.7 P | Linoleum |
| Home office | Basement | 10.6x9.2 P | Floating floor |
| Laundry room | Basement | 10.6x3.10 P | Floating floor |
Taxes and expenses
| Municipal Taxes | $3,931 |
| School taxes | $356 |
Building and interior of the property
| Bedrooms | 3 |
| Bathrooms | 2 |
| Washrooms | 1 |
| Number of rooms | 17 |
| Number of rooms above ground | 3 |
| Living area | 145.6 SM |
| Items included in the sale | Refrigerator, dishwasher, stove, washer, dryer, snow blower, lawn mower |
| Dimension of the front of the building | 7.44 M |
| Dimension of the depth of building | 14.5 M |
| Land area | 545.1 SM |
| Dimension of the front of the land | 15.24 M |
| Dimension of the depth of the land | 36.34 M |
| Year built | 1987 |
| Municipal assessment (land) | $197,500 |
| Municipal assessment (building) | $337,900 |
| Municipal assessment (total) | $535,400 |
| Assessment year | 2026 |
| Irregular building | Yes |
| Area of the building | 83.22 SM |
| Irregular land | Yes |
| Driveway | Asphalt |
| Landscaping | Land / Yard lined with hedges, Landscape, Patio |
| Cupboard | Wood |
| Heating system | Electric baseboard units |
| Water supply | Municipality |
| Heating energy | Electricity |
| Equipment available | Wall-mounted air conditioning, Wall-mounted heat pump |
| Windows | PVC |
| Foundation | Poured concrete |
| Hearth stove | Wood fireplace |
| Siding | Brick, Pressed fibre |
| Distinctive features | Street corner |
| Available services | Fire detector |
| Basement | 6 feet and over, Finished basement |
| Parking | Outdoor |
| Sewage system | Municipal sewer |
| Window type | Tilt and turn |
| Roofing | Asphalt shingles |
| Topography | Flat |
| Zoning | Residential |





























































