Gatineau (Gatineau)
Property description
Located at 49 Terrasse-David, this bright and impeccably maintained property will charm you from the moment you arrive. Carefully cared for by the same owner for 20 years, it sits in a peaceful, family-friendly and highly sought-after neighborhood, close to schools and all services. It features 3 bedrooms, 2 bathrooms, ample storage, and a basement with many possibilities. Several renovations have been completed over the years, with invoices available. Enjoy a spacious, private backyard bordered by hedges and mature trees. An opportunity not to be missed!
Details
Located near
Park - green area, Elementary school, High school, Public transport, Daycare centre
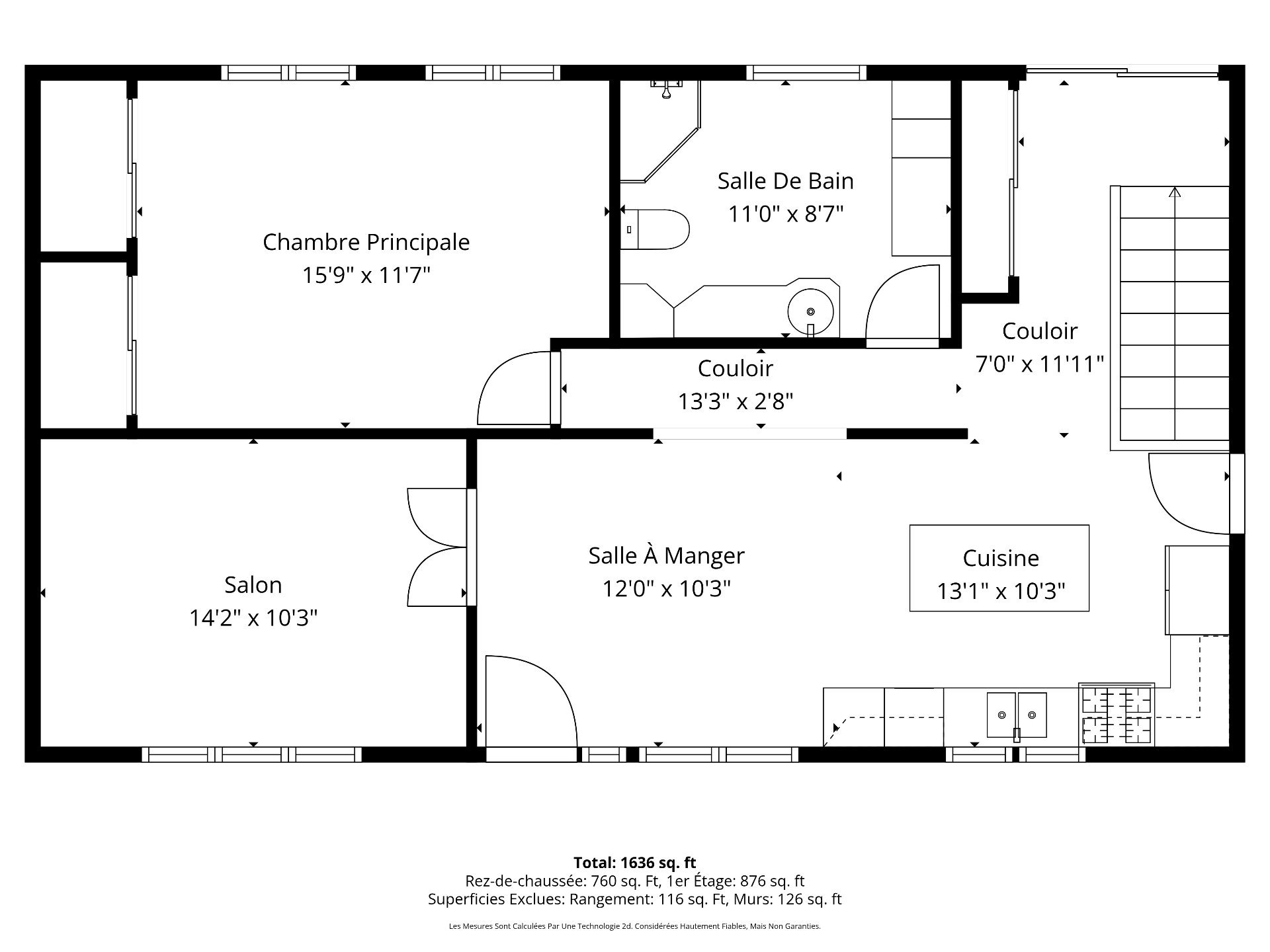
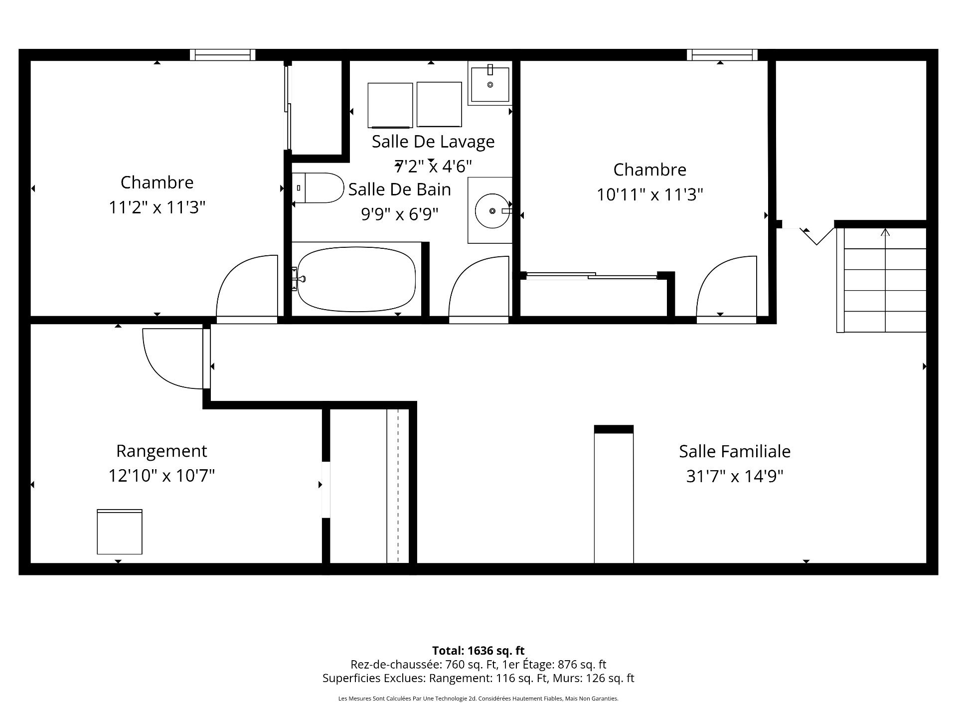
Room dimension
| Room | Floor | Dimensions | Floor covering |
|---|---|---|---|
| Hallway | 1st level/Ground floor | 3.0x4.0 P | Ceramic tiles |
| Kitchen | 1st level/Ground floor | 13.1x10.3 P | Ceramic tiles |
| Living room | 1st level/Ground floor | 14.0x10.3 P | Wood |
| Dining room | 1st level/Ground floor | 12.0x10.3 P | Wood |
| Hallway | 1st level/Ground floor | 3.0x3.0 P | Wood |
| Master bedroom | 1st level/Ground floor | 15.9x11.7 P | Wood |
| Bathroom | 1st level/Ground floor | 11.0x8.7 P | Ceramic tiles |
| Family room | Basement | 31.7x14.9 P | Floating floor |
| Bedroom | Basement | 11.3x10.11 P | Floating floor |
| Bedroom | Basement | 11.3x11.3 P | Floating floor |
| Bathroom | Basement | 9.9x6.9 P | Ceramic tiles |
| Laundry room | Basement | 6.2x4.6 P | Ceramic tiles |
| Storage | Basement | 12.10x10.7 P | Concrete |
Taxes and expenses
| Municipal Taxes | $3,733 |
| School taxes | $321 |
Building and interior of the property
| Bedrooms | 3 |
| Bathrooms | 2 |
| Number of rooms | 13 |
| Number of rooms above ground | 1 |
| Number of basement bedrooms | 2 |
| Living area | 1007 SF |
| Items included in the sale | Dishwasher, water heater, blinds, curtains, 3 storage cabinets, light fixtures, kitchen table with 6 chairs, dining room sideboard, shed, and wall-mounted air conditioning unit |
| Items excluded in the sale | Refrigerator, stove, washer, dryer, and living room sectional (available for purchase separately from the transaction) |
| Dimension of the front of the building | 46 F |
| Dimension of the depth of building | 24 F |
| Land area | 650.3 SM |
| Dimension of the front of the land | 21.34 M |
| Dimension of the depth of the land | 30.47 M |
| Year built | 1976 |
| Municipal assessment (land) | $253,000 |
| Municipal assessment (building) | $219,400 |
| Municipal assessment (total) | $472,400 |
| Assessment year | 2026 |
| Area of the building | 1104 SF |
| Driveway | Asphalt |
| Landscaping | Land / Yard lined with hedges |
| Heating system | Electric baseboard units |
| Water supply | Municipality |
| Heating energy | Electricity |
| Equipment available | Wall-mounted air conditioning |
| Windows | PVC |
| Foundation | Poured concrete |
| Siding | Wood |
| Bathroom / Washroom | Seperate shower |
| Basement | 6 feet and over, Finished basement |
| Parking | Outdoor |
| Sewage system | Municipal sewer |
| Window type | Sliding, French window, Crank handle |
| Roofing | Asphalt shingles |
| Topography | Flat |
| Zoning | Residential |
Addendum
| CARACTÉRISTIQUES GÉNÉRALES / KEY FEATURES |
| Propriétaire unique : Même propriétaire depuis 2005 (20 ans |
| de soins méticuleux). / Same owner since 2005 (20 years of |
| meticulous care). |
| Luminosité : Fenestration abondante offrant une lumière |
| naturelle tout au long de la journée. / Abundant windows |
| providing natural light throughout the day. |
| Espace de vie : 3 chambres à coucher, 2 salles de bain |
| complètes et un sous-sol offrant plusieurs possibilités |
| d'aménagement (salle familiale, bureau ou gym). / 3 |
| bedrooms, 2 full bathrooms, and a basement with endless |
| possibilities (family room, office, or gym). |
| EXTÉRIEUR / EXTERIOR |
| Intimité : Cour arrière privée bordée de haies et d'arbres |
| matures sur tout le pourtour de la propriété. / Private |
| backyard lined with mature hedges and trees surrounding the |
| property. |
| Aménagements : Balcon et remise pratique pour le rangement |
| extérieur. / Balcony and practical shed for outdoor storage. |
| RÉNOVATIONS ET ENTRETIEN / RENOVATIONS & MAINTENANCE |
| Propriété entretenue avec soin au fil des ans. / Property |
| meticulously maintained over the years. |
| Factures disponibles pour les travaux suivants : / Invoices |
| available for the following work: |
| Toiture / Roofing |
| Balcon / Balcony |
| Gouttières / Gutters |
| LOCALISATION / LOCATION |
| Quartier paisible, familial et très recherché. / Quiet, |
| family-oriented, and highly sought-after neighborhood. |
| À distance de marche des écoles primaires, secondaires et |
| de tous les services essentiels. / Walking distance to |
| primary and secondary schools and all essential services. |
| INCLUSIONS SPÉCIFIQUES |
| Lave-vaisselle, chauffe-eau, stores, rideaux, 3 armoires de |
| rangement, luminaires, table de cuisine et 6 chaises, |
| buffet de la salle à manger, remise, climatiseur mural. / |
| Dishwasher, water heater, blinds, curtains, 3 storage |
| cabinets, light fixtures, kitchen table & 6 chairs, dining |
| room sideboard, shed, wall-mounted AC. |
| NOTE AUX ACHETEURS / NOTE TO BUYERS |
| Les électroménagers (réfrigérateur, cuisinière, laveuse, |
| sécheuse) ainsi que le sectionnel du salon peuvent être |
| vendus séparément de la transaction immobilière. / The |
| appliances (fridge, stove, washer, dryer) and the living |
| room sectional may be purchased separately from the real |
| estate transaction. |









































