Cantley
Property description
**BARGAIN** 175 000$ UNDER CITY APPRAISAL!!! PRESTIGE, PANORAMIC VIEW AND INTERGENERATIONAL HOME! Welcome to this unique and spacious intergenerational property of over 4,000 SQ.FT. Located in a cul-de-sac, this exceptional property offers an ideal living environment for families seeking space, comfort and tranquility. You will be charmed by its vast and bright rooms, its 4 bedrooms, and its 2 full bathrooms. The intergenerational unit offers great flexibility, with an independent entrance. Priced below municipal evaluation. An exceptional opportunity to seize -- cheaper than the price paid in 2022!
Details
Located near
Highway, Golf, Park - green area, Elementary school, Alpine skiing, Daycare centre
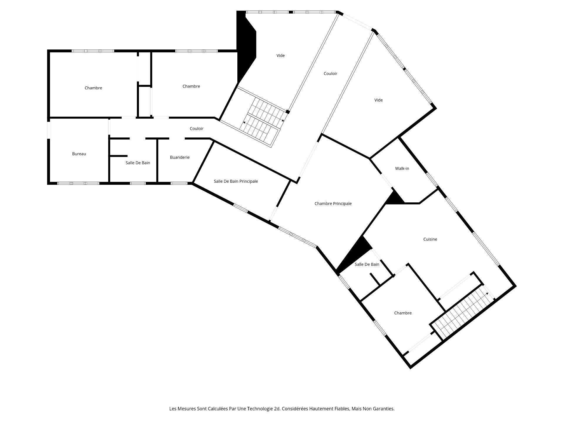
Room dimension
| Room | Floor | Dimensions | Floor covering |
|---|---|---|---|
| Hallway | 1st level/Ground floor | 6.10x9.3 P | Ceramic tiles |
| Kitchen | 1st level/Ground floor | 18.10x18.3 P | Ceramic tiles |
| Dining room | 1st level/Ground floor | 21.11x6.0 P | Wood |
| Washroom | 1st level/Ground floor | 8.9x6.1 P | Ceramic tiles |
| Living room | 1st level/Ground floor | 17.7x21.11 P | Wood |
| Storage | 1st level/Ground floor | 27.0x24.4 P | Concrete |
| Storage | 1st level/Ground floor | 14.9x8.2 P | Wood |
| Master bedroom | 2nd floor | 17.6x19.1 P | Wood |
| Bathroom | 2nd floor | 15.7x8.8 P | Ceramic tiles |
| Laundry room | 2nd floor | 8.5x9.7 P | Ceramic tiles |
| Bedroom | 2nd floor | 11.7x15.8 P | Wood |
| Bedroom | 2nd floor | 11.7x16.4 P | Wood |
| Home office | 2nd floor | 12.3x11.0 P | Wood |
| Family room | Basement | 40.10x47.0 P | Concrete |
| Storage | Basement | 25.4x24.3 P | Concrete |
| Bathroom | Basement | 6.4x12.6 P | Concrete |
| Mecanical room | Basement | 11.0x12.3 P | Concrete |
Taxes and expenses
| Municipal Taxes | $6,859 |
| School taxes | $675 |
Building and interior of the property
| Bedrooms | 4 |
| Bathrooms | 2 |
| Washrooms | 1 |
| Number of rooms | 18 |
| Number of rooms above ground | 4 |
| Living area | 3204 SF |
| Expected delay of occupancy | 30 days |
| Items included in the sale | Dishwasher, refrigerator (2), stove (2), washer and dryer, combined washer/dryer in suite, wall-mounted tv in the living room, cameras (8) and security system, water filtration system, central vacuum, PAX storage in closet. |
| Land area | 4947.8 SM |
| Year built | 2013 |
| Municipal assessment (land) | $124,200 |
| Municipal assessment (building) | $901,700 |
| Municipal assessment (total) | $1,025,900 |
| Assessment year | 2023 |
| Area of the building | 2160 SF |
| Driveway | Asphalt, Plain paving stone, Double width or more |
| Landscaping | Patio, Landscape |
| Heating system | Air circulation, Electric baseboard units |
| Water supply | Artesian well |
| Heating energy | Wood, Electricity |
| Equipment available | Ventilation system, Water softener, Wall-mounted air conditioning, Central air conditioning, Level 2 charging station, Alarm system, Central vacuum cleaner system installation |
| Windows | PVC |
| Foundation | Poured concrete |
| Hearth stove | Wood fireplace, Wood burning stove |
| Garage | Attached, Fitted, Double width or more |
| Siding | Wood, Stone |
| Distinctive features | No neighbours in the back, Cul-de-sac, Wooded |
| Bathroom / Washroom | Adjoining to the master bedroom, Seperate shower |
| Basement | 6 feet and over, Separate entrance, Unfinished |
| Parking | Outdoor, Garage |
| Sewage system | Purification field, Septic tank |
| Window type | Sliding, French window, Crank handle |
| Roofing | Asphalt shingles |
| Topography | Steep |
| View | Mountain, Panoramic |
| Zoning | Residential |
Addendum
| ** Unique and spacious style |
| ** 4 bedrooms |
| ** 2 full bathrooms + 1 powder room |
| ** Double garage with charging station |
| ** Parking for several cars |
| ** Central vacuum system |
| ** Central and wall-mounted air conditioning |
| ** Air exchanger |
| ** Wood-burning fireplace |
| ** Plenty of windows |
| ** Heavily wooded, private lot. |













































