$239,900
11 Ch. Lakeview
Alleyn-et-Cawood
Alleyn-et-Cawood
Type
Split-level
Bedrooms
2
Living area
1230 PC
Bathrooms
1
MLS® 25232116
Property description
Escape to tranquility at 11 Chemin Lakeview! Nestled on a double wooded lot spanning 82,365.44 sq ft with WATER ACCESS, this 2 bedroom, bathroom home offers peace and privacy in a serene natural setting. Enjoy the walkout basement for extra space and easy outdoor access. A perfect private retreat surrounded by nature ideal for weekend getaways or year-round living.
Details
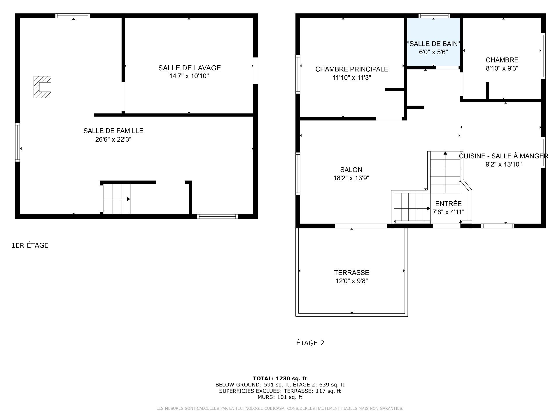
Room dimension
| Room | Floor | Dimensions | Floor covering |
|---|---|---|---|
| Living room | 1st level/Ground floor | 18.2x13.9 P | Vinyl |
| Kitchen | 1st level/Ground floor | 9.2x13.10 P | Vinyl |
| Master bedroom | 1st level/Ground floor | 11.10x11.3 P | Vinyl |
| Bathroom | 1st level/Ground floor | 6.0x5.6 P | Ceramic tiles |
| Bedroom | 1st level/Ground floor | 8.10x9.3 P | Vinyl |
| Family room | Basement | 26.6x22.3 P | Floating floor |
| Storage | Basement | 14.7x10.10 P | Floating floor |
Taxes and expenses
| Municipal Taxes | $1,514 |
| School taxes | $58 |
| Common expenses/Rental | $600 |
Building and interior of the property
| Bedrooms | 2 |
| Bathrooms | 1 |
| Number of rooms | 7 |
| Number of rooms above ground | 2 |
| Living area | 1230 SF |
| Expected delay of occupancy | 30 days |
| Items included in the sale | All appliances and furniture |
| Items excluded in the sale | All personal items |
| Land area | 7652 SM |
| Dimension of the front of the land | 54.86 M |
| Dimension of the depth of the land | 147.42 M |
| Year built | 1991 |
| Municipal assessment (land) | $56,900 |
| Municipal assessment (building) | $134,700 |
| Municipal assessment (total) | $191,600 |
| Assessment year | 2023 |
| Driveway | Not Paved |
| Cupboard | Wood |
| Heating system | Electric baseboard units |
| Water supply | Artesian well |
| Heating energy | Electricity |
| Equipment available | Water softener, Furnished |
| Windows | Wood |
| Foundation | Concrete block |
| Hearth stove | Wood burning stove |
| Siding | Vinyl |
| Distinctive features | Water access, Resort/Cottage, Wooded |
| Basement | 6 feet and over, Separate entrance, Finished basement |
| Parking | Outdoor |
| Sewage system | Purification field, Septic tank |
| Window type | Sliding |
| Roofing | Asphalt shingles |
| Topography | Flat |
| Zoning | Residential |






















