$499,900
19 Rue Félix-Renaud
Gatineau (Aylmer)
Gatineau (Aylmer)
Type
Two or more storey
Bedrooms
4
Living area
1637 PC
Bathrooms
1
MLS® 25916733
Property description
Superb 4-bedroom semi-detached home located in Aylmer, Gatineau. 1 bathroom, 1 powder room, open concept, hardwood and ceramic floors, abundant windows, and finished basement. Private lot with patio and heated above-ground pool. Possibility of adding inclusions. Several parking spaces. Peaceful area close to essential services.
Details
Located near
Highway, Park - green area, Elementary school, High school, Public transport, Bicycle path, Daycare centre
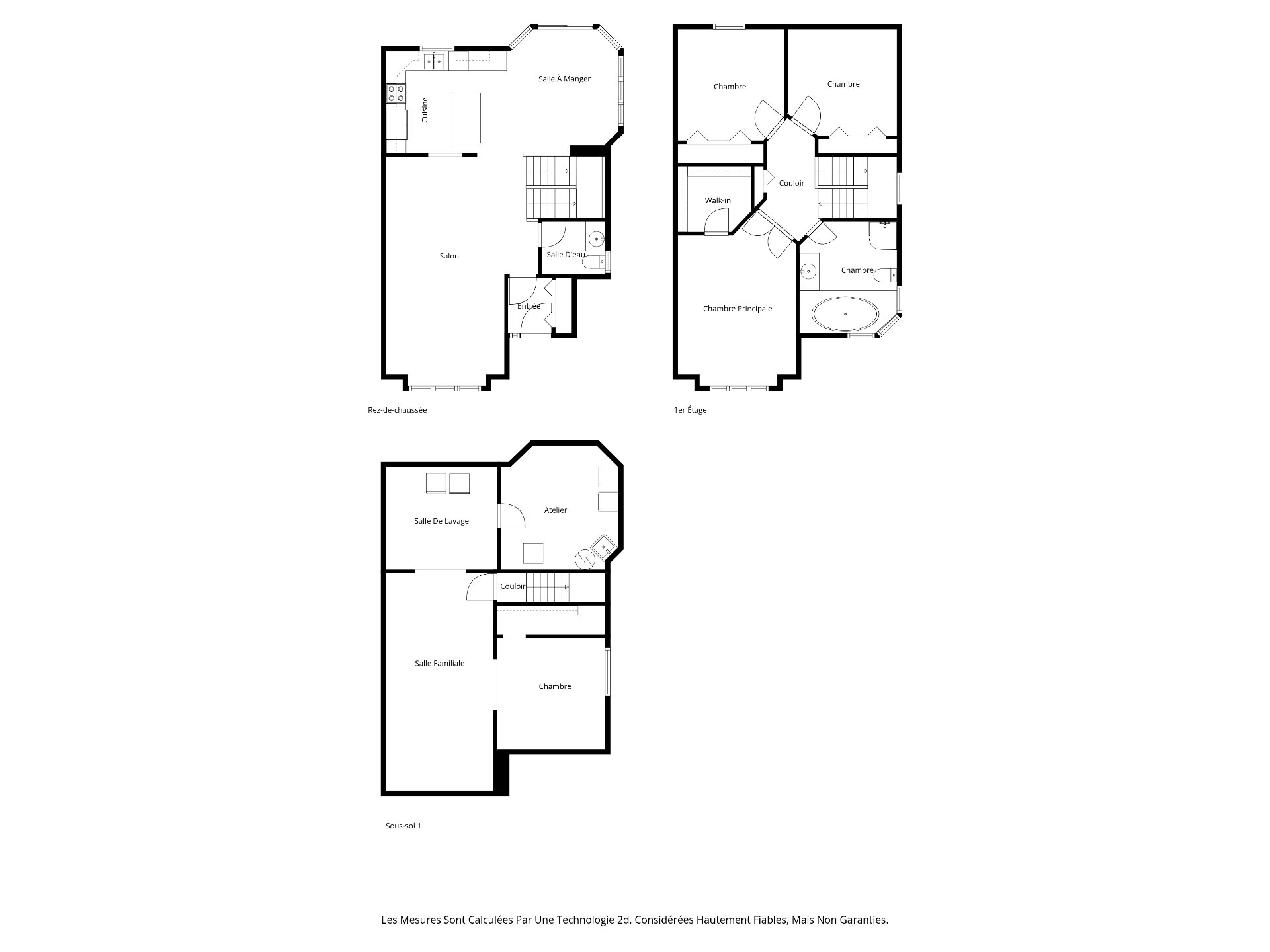
Room dimension
| Room | Floor | Dimensions | Floor covering |
|---|---|---|---|
| Hallway | 1st level/Ground floor | 6.7x5.9 P | Ceramic tiles |
| Living room | 1st level/Ground floor | 12.2x22.11 P | Wood |
| Washroom | 1st level/Ground floor | 5.4x5.8 P | Ceramic tiles |
| Dining room | 1st level/Ground floor | 12.4x11.2 P | Ceramic tiles |
| Kitchen | 1st level/Ground floor | 12.11x11.4 P | Ceramic tiles |
| Bathroom | 2nd floor | 9.3x12.5 P | Flexible floor coverings |
| Master bedroom | 2nd floor | 17x22.2 P | Wood |
| Bedroom | 2nd floor | 11.1x10.9 P | Wood |
| Bedroom | 2nd floor | 10.7x10.9 P | Wood |
| Family room | Basement | 11.10x22.6 P | Floating floor |
| Bedroom | Basement | 9x11.6 P | Floating floor |
| Storage | Basement | 9.9x10.11 P | Concrete |
| Laundry room | Basement | 11.10x11.9 P | Concrete |
Taxes and expenses
| School taxes | $300 |
| Municipal Taxes | $3,438 |
| Energy cost | $3,931 |
Building and interior of the property
| Bedrooms | 4 |
| Bathrooms | 1 |
| Washrooms | 1 |
| Number of rooms | 14 |
| Number of rooms above ground | 3 |
| Number of basement bedrooms | 1 |
| Living area | 1637 SF |
| Expected delay of occupancy | 60 days |
| Items included in the sale | Blinds, curtain rods, curtains, light fixtures, central vacuum system, air conditioning, and dishwasher. |
| Items excluded in the sale | Water heater rental ($19/month) and furnace (46$/month), basement speakers, building automation and/or security system, including all associated equipment and/or subscriptions, and possible inclusions: Napoleon BBQ ($1,200) and $9,800 shed. |
| Land area | 5020 SF |
| Dimension of the front of the land | 9.95 M |
| Dimension of the depth of the land | 46.87 M |
| Year built | 1996 |
| Municipal assessment (land) | $145,000 |
| Municipal assessment (building) | $296,400 |
| Municipal assessment (total) | $441,400 |
| Assessment year | 2026 |
| Driveway | Asphalt |
| Landscaping | Fenced, Patio |
| Heating system | Air circulation |
| Water supply | Municipality |
| Heating energy | Natural gas |
| Equipment available | Central vacuum cleaner system installation, Ventilation system, Central air conditioning |
| Windows | PVC |
| Foundation | Poured concrete |
| Siding | Brick, Vinyl |
| Pool | Heated, Above-ground |
| Bathroom / Washroom | Seperate shower |
| Basement | 6 feet and over, Finished basement |
| Parking | Outdoor |
| Sewage system | Municipal sewer |
| Window type | Sliding, French window, Crank handle |
| Roofing | Asphalt shingles |
| Topography | Flat |
| Zoning | Residential |
Addendum
| 19 Félix-Renaud Street, Gatineau: |
| - Semi-detached |
| - Area: Aylmer |
| - 4 bedrooms (3+1) |
| - 1 bathroom |
| - 1 powder room |
| - Open concept |
| - Hardwood & ceramic floors (ground floor) |
| - Abundant windows |
| - Finished basement |
| - VENMAR air exchanger (2019) |
| - Central A/C (2016) |
| - Possibility of adding a generator (connection already |
| made) |
| - Reno Climat certified home (2015) |
| - Fenced lot |
| - Patio area |
| - Heated above-ground pool |
| - 2 outdoor sheds |
| - Several parking spaces |
| - Roof (2016) |
| - Bell and Hydro easement on the property |
| - Family-friendly neighborhood |
| - Close to essential services |
| - 15 minutes from Ottawa |
| - 20 minutes from downtown |























































