Gatineau (Gatineau)
Property description
Single-story home from the original owners, offering a spacious and sunny living area. The spacious kitchen is equipped with numerous cabinets and excellent storage space. This home includes 2+1 bedrooms and a bathroom featuring a Roman tub and a separate shower. The basement, bright thanks to its large windows, offers additional space ideal for your needs. Central heating with air conditioning makes your summers more enjoyable. Enjoy a beautiful fenced yard, perfect for outdoor activities. Located within walking distance of shops, the Jacques-Cartier promenade, and bike paths.
Details
Located near
Golf, Park - green area, Public transport
Room dimension
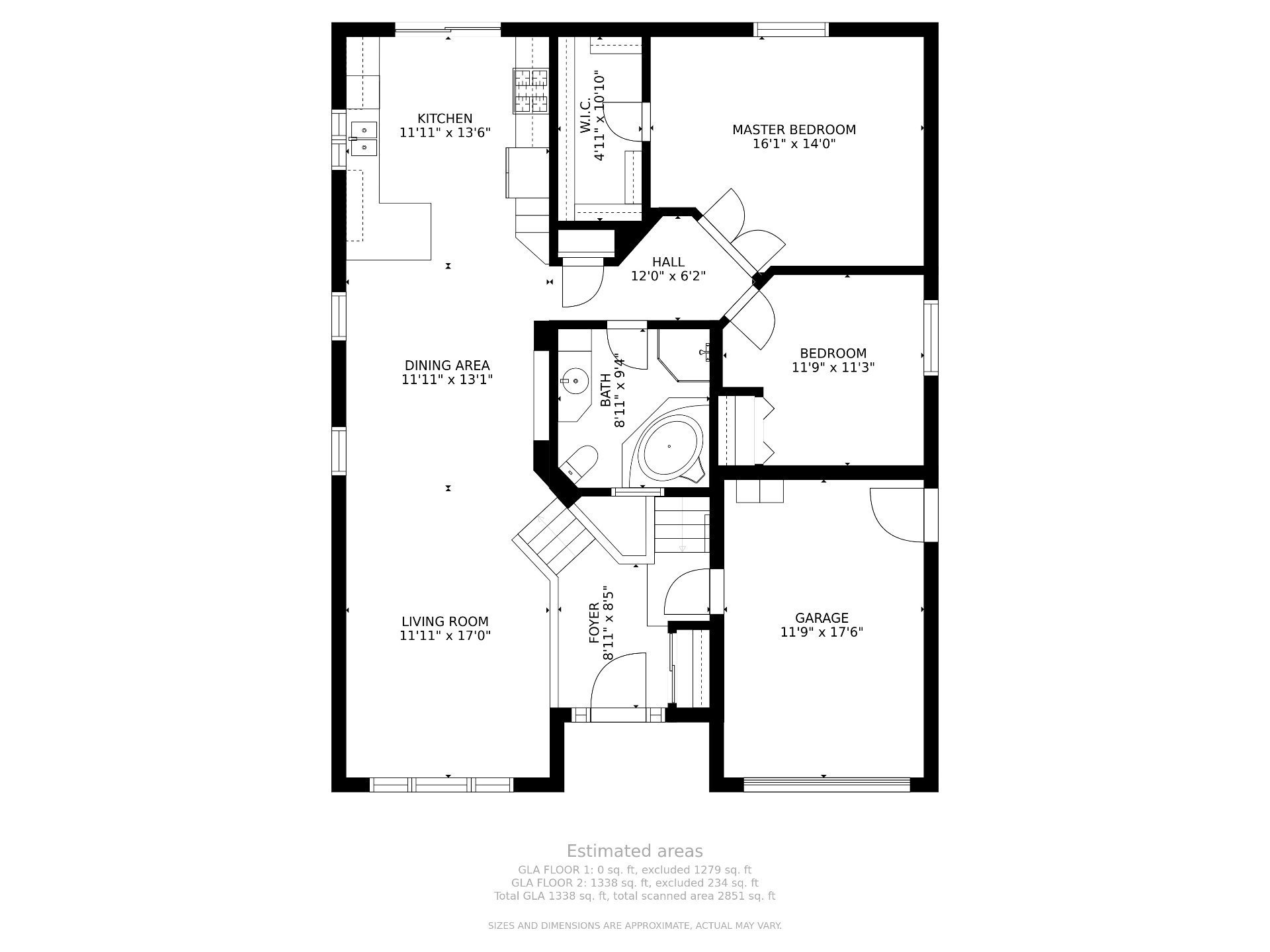
| Room | Floor | Dimensions | Floor covering |
|---|---|---|---|
| Hallway | 1st level/Ground floor | 8.11x8.5 P | Ceramic tiles |
| Living room | 1st level/Ground floor | 11.11x17.0 P | Wood |
| Dining room | 1st level/Ground floor | 11.11x13.1 P | Wood |
| Kitchen | 1st level/Ground floor | 11.11x13.6 P | Ceramic tiles |
| Bathroom | 1st level/Ground floor | 8.11x9.4 P | Ceramic tiles |
| Bedroom | 1st level/Ground floor | 11.9x11.3 P | Wood |
| Master bedroom | 1st level/Ground floor | 16.1x14.0 P | Wood |
| Family room | Basement | 19.10x29.2 P | Carpet |
| Storage | Basement | 8.11x12.7 P | Concrete |
| Bedroom | Basement | 12.3x20.4 P | Carpet |
| Bathroom | Basement | 8.8x8.10 P | Linoleum |
| electrical room | Basement | 12.3x13.4 P | Concrete |
Taxes and expenses
| School taxes | $423 |
| Municipal Taxes | $5,083 |
| Energy cost | $780 |
| Common expenses/Rental | $756 |
Building and interior of the property
| Bedrooms | 3 |
| Bathrooms | 2 |
| Number of rooms | 13 |
| Number of rooms above ground | 2 |
| Number of basement bedrooms | 1 |
| Living area | 147 SM |
| Expected delay of occupancy | 30 days |
| Items included in the sale | Refrigerator, stove, dishwasher, washer and dryer, alarm, window covering, garage door opener, central a/c. |
| Items excluded in the sale | hot water tank and furnace are rented |
| Land area | 438 SM |
| Dimension of the front of the land | 14.6 M |
| Dimension of the depth of the land | 30 M |
| Year built | 2007 |
| Municipal assessment (land) | $190,100 |
| Municipal assessment (building) | $414,000 |
| Municipal assessment (total) | $604,100 |
| Assessment year | 2025 |
| Driveway | Asphalt |
| Landscaping | Fenced, Landscape |
| Cupboard | Melamine |
| Heating system | Air circulation |
| Water supply | Municipality |
| Heating energy | Electricity, Natural gas |
| Equipment available | Ventilation system |
| Windows | PVC |
| Foundation | Poured concrete |
| Hearth stove | Gaz fireplace |
| Garage | Attached |
| Rental appliances | Heating appliances, Water heater |
| Siding | Rock immitation, Vinyl |
| Bathroom / Washroom | Seperate shower |
| Basement | Partially finished |
| Parking | Outdoor, Garage |
| Sewage system | Municipal sewer |
| Window type | Crank handle |
| Roofing | Asphalt shingles |
| Topography | Flat |
| Zoning | Residential |































































