Gatineau (Hull)
Property description
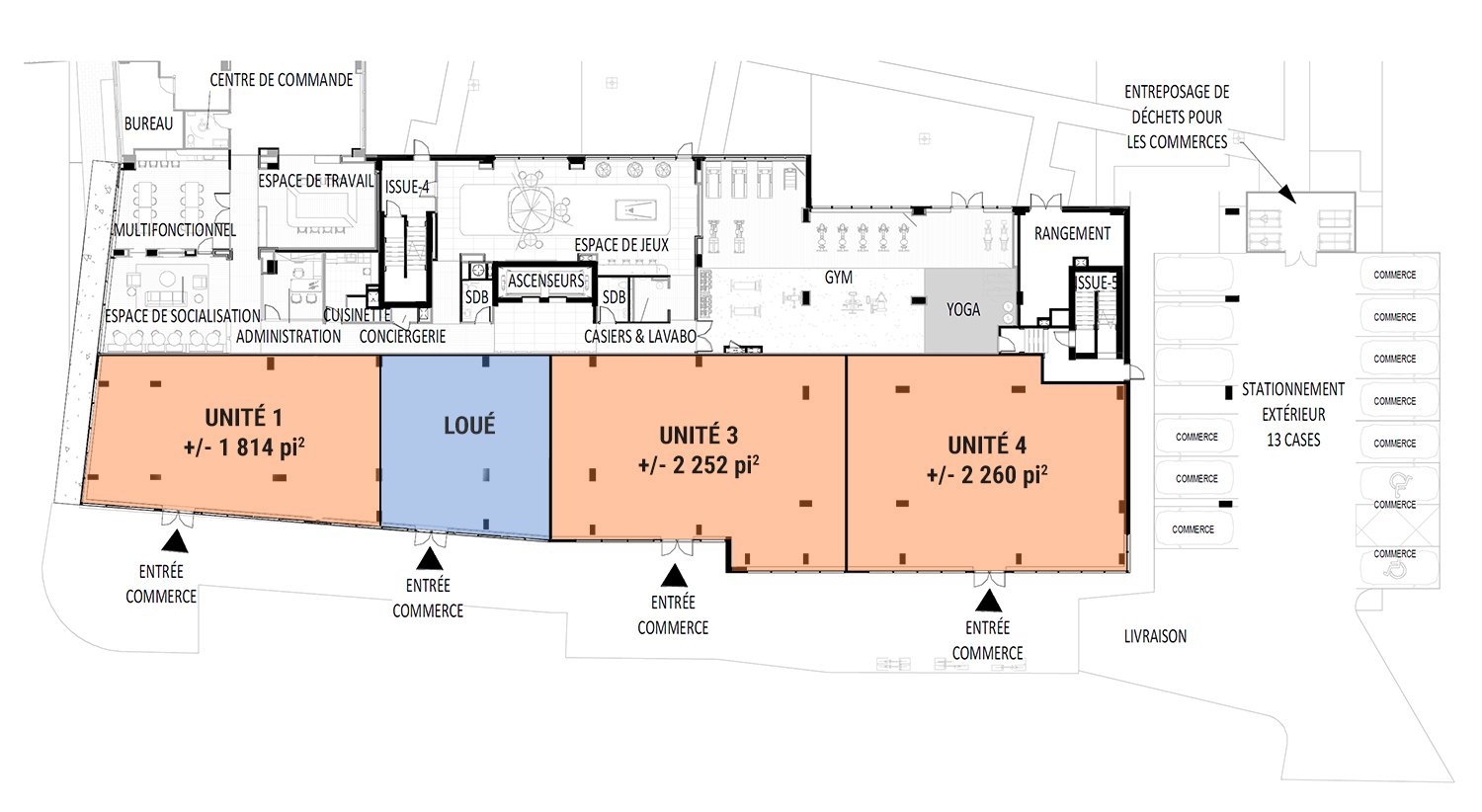
Ground-floor corner unit retail spaces are available for lease in the newly built "Bloome," which includes 380 residential units. Located at the intersection of Saint-Joseph Boulevard and Montclair Boulevard, this site offers good visibility and high pedestrian traffic. You will be close to Galerie de Hull, as well as grocery stores, pharmacies, and a wide selection of restaurants, providing a dynamic environment for your business. It is just 10 minutes from the Portage Bridge leading to Ottawa. An ideal setting to grow your business!
Details
Located near
Highway, Public transport
Taxes and expenses
| Municipal Taxes | $125,279 |
| School taxes | $309 |
Building and interior of the property
| Expected delay of occupancy | 15 days |
| Land area | 11814 SF |
| Dimension of the front of the land | 87.36 M |
| Dimension of the depth of the land | 98.14 M |
| Year built | 2024 |
| Municipal assessment (land) | $8,145,000 |
| Municipal assessment (building) | $1 |
| Municipal assessment (total) | $8,145,001 |
| Assessment year | 2024 |
| Type of ownership | Divided |
| Water supply | Municipality |
| Sewage system | Municipal sewer |
| Zoning | Commercial |
Addendum
| *** 304 Bd Saint-Joseph, Local 1, Gatineau, QC J8Y 3Y3 *** |
| Ground floor retail spaces available for lease in the newly |
| built "Bloome," which includes 380 residential units. |
| Strategic location: Located on a busy boulevard, this space |
| offers good visibility and easy access, attracting more |
| customers. |
| Proximity to services: The area provides amenities such as |
| restaurants, shops, and services, which are advantageous |
| for attracting both customers and employees. |
| Dynamic commercial zone: Being in a developing area fosters |
| business growth, with the potential for increased clientele. |
| Accessibility: Good access to public transport and main |
| roads makes it easy for customers and employees to arrive. |
| Collaboration opportunities: Being near other businesses |
| can offer chances for partnerships or collaboration. |
| Brand image: A well-located space helps strengthen your |
| company's brand image and create a positive impression on |
| customers. |
| Layout options: Depending on the type of space, there may |
| be possibilities for customization to meet your specific |
| business needs. |
| This location is just 10 minutes from the Portage Bridge |
| leading to Ottawa. An ideal setting to grow your business! |











