Gatineau (Hull)
Property description
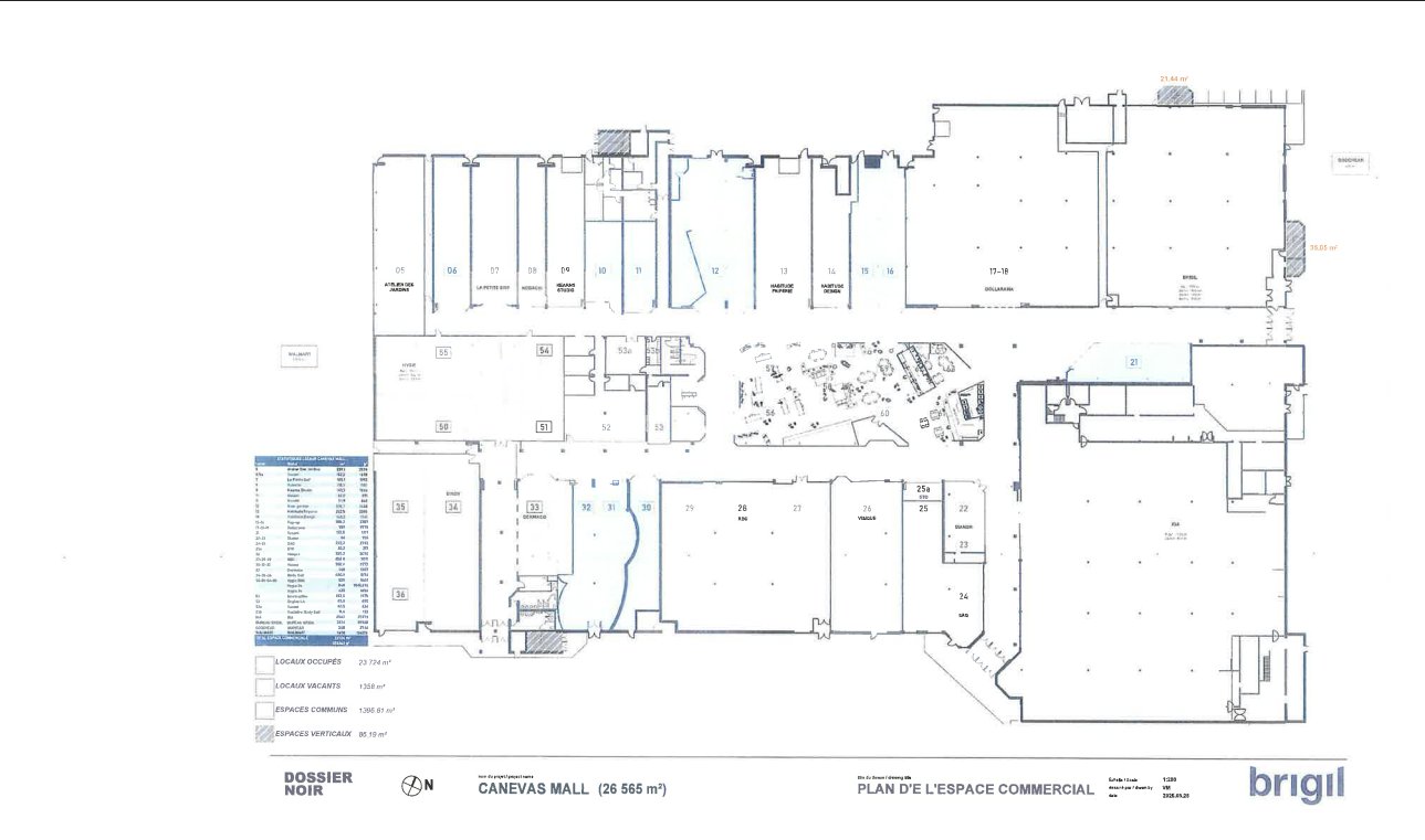
Commercial Space for Lease - Located in a prime area of Gatineau, this building offers modern and functional commercial spaces, perfect for offices, clinics, or retail businesses. Benefit from exceptional visibility on St-Joseph and convenient access to main roads and public transportation. Each space is bright, well-designed, and can be tailored to suit your needs. Parking is available for both clients and employees, ensuring a comfortable and accessible experience. Don't miss this opportunity to establish your business in a highly sought-after location.
Details
Taxes and expenses
| Municipal Taxes | $1,068,361 |
Building and interior of the property
| Expected delay of occupancy | 15 days |
| Land area | 63118 SM |
| Municipal assessment (land) | $19,095,600 |
| Municipal assessment (building) | $4,957,700 |
| Municipal assessment (total) | $24,053,300 |
| Assessment year | 2025 |
| Area of the building | 347 SM |
| Zoning | Commercial |











