Gatineau (Hull)
Description de la propriété
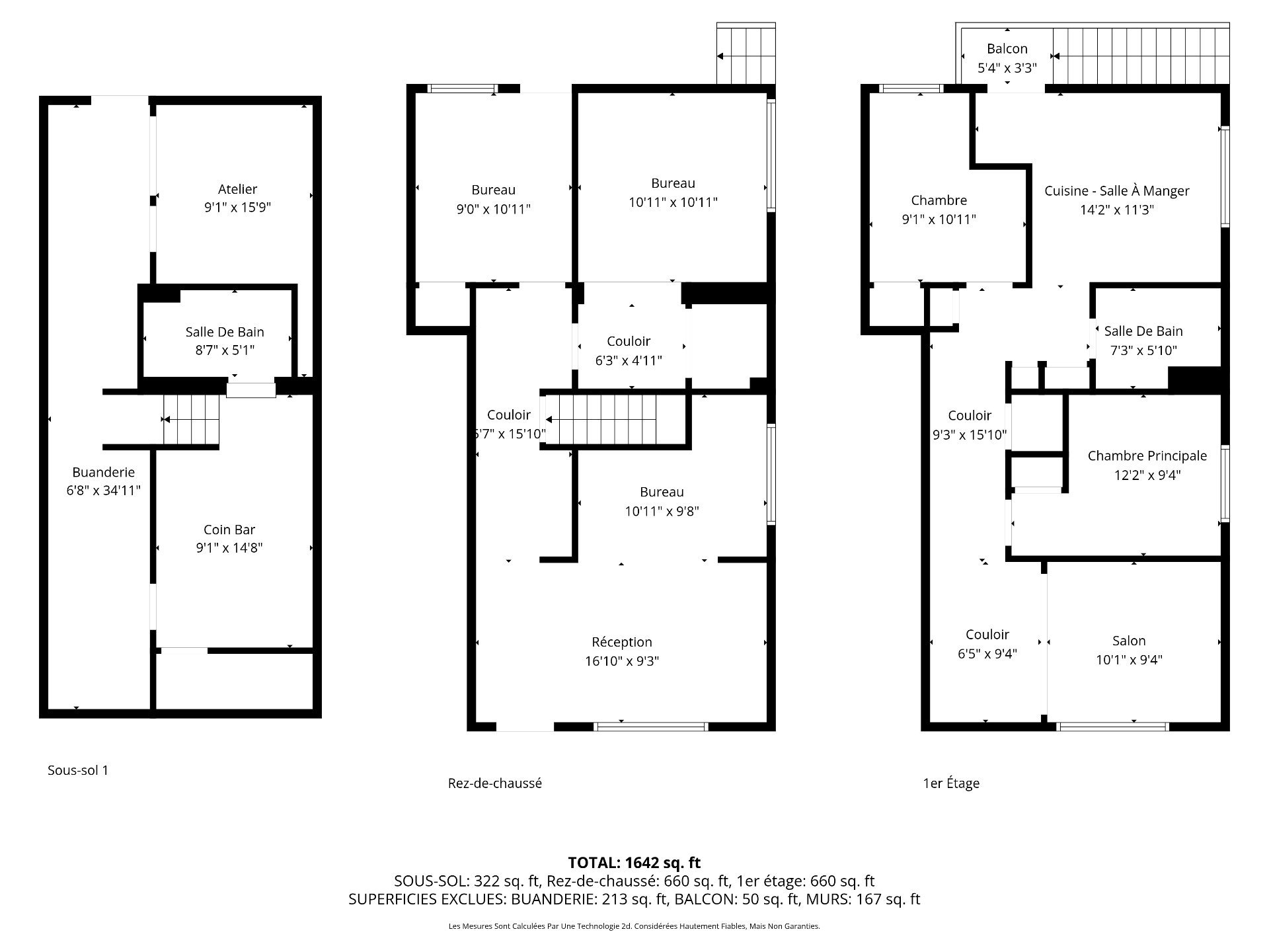
Immeuble à usage mixte (commercial et résidentiel) de 2 unités offrant une opportunité rare pour investisseurs ou propriétaires occupants, situé directement sur le Boul.St-Joseph, une artère principale de Hull. Le rdc est un local commercial comprend 3 bureaux, une réception d'une cuisinette, une salle de bain complète et beaucoup de rangement, idéal pour y établir votre entreprise de service. À l'étage, un logement résidentiel de 2 chambres entièrement meublé (sauf réfrigérateur). Les deux unités sont vacantes, permettant une mise en location ou une occupation immédiate. Quatre stationnements complètent cette propriété à fort potentiel.
Détails
Proximité
Autoroute/Voie rapide, Transport en commun
Taxes et dépenses
| Taxes municipales | 8 184 $ |
| Taxes scolaires | 280 $ |
Bâtiment et intérieur de la propriété
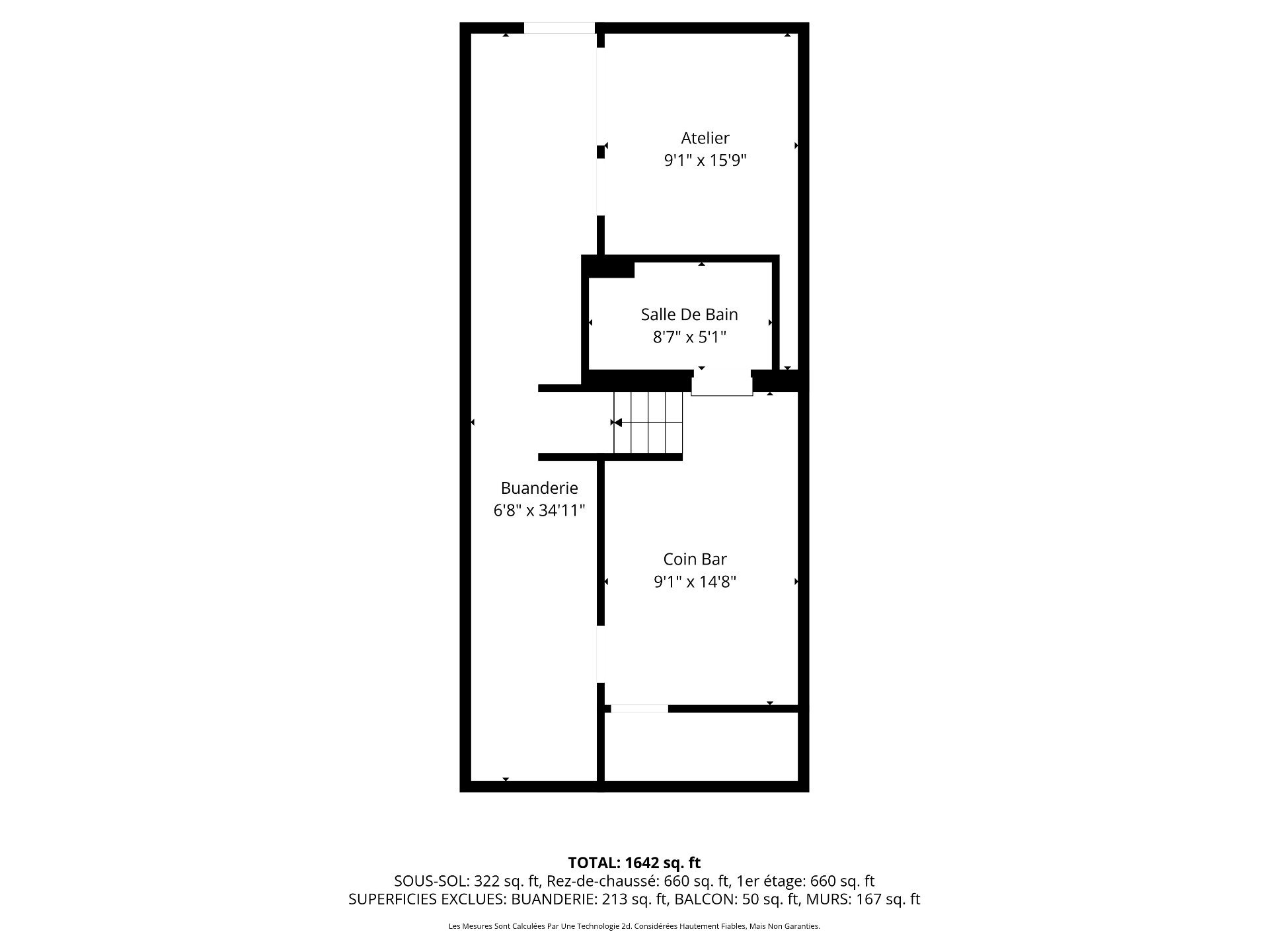
| Aire habitable | 1457.98 PC |
| Délai d'occupation prévu | 15 jours |
| Éléments inclus lors de la vente | Tout le mobilier de bureau et classeurs au rdc + le mobilier au sous-sol + cuisinière, laveuse et sécheuse ainsi que le mobilier dans le logement au 2e étage sauf les tables du salon. Le vendeur ne sait pas si les électroménagers fonctionnent. Système d'a |
| Éléments exclus lors de la vente | Réfrigérateur dans le logement, les tables du salon du logement, le banc avec rangement dans l'entrée arrière, La télévision au sous-sol, les imprimantes et les écrans d'ordinateurs |
| Dimension de la façade du bâtiment | 6.52 M |
| Dimension de la profondeur du bâtiment | 11.62 M |
| Superficie du terrain | 2441.44 PC |
| Année de construction | 1947 |
| Évaluation municipale (terrain) | 181 500 $ |
| Évaluation municipale (bâtiment) | 223 200 $ |
| Évaluation municipale (total) | 404 700 $ |
| Année d'évaluation | 2022 |
| Nombre d'étages | 2 |
| Bâtiment irrégulier | Oui |
| Allée | Asphalte |
| Mode de chauffage | Air soufflé, Radiant, Plinthes à convection |
| Approvisionnement en eau | Municipalité |
| Énergie pour le chauffage | Gaz naturel |
| Équipement disponible | Système d'alarme |
| Fenêtres | PVC |
| Fondation | Béton coulé, Bloc de béton |
| Genre de commerce | Comptabilité |
| Revêtements | Aluminium |
| Particularités | Coin de rue |
| Sous-sol | 6 pieds et plus, Totalement aménagé |
| Stationnement | Extérieur |
| Système d'égouts | Municipal |
| Type de commerce/Industrie | Service |
| Toiture | Bitume et gravier |
| Zonage | Commercial, Résidentiel |
Addendas
| - Immeuble de 2 unités (1 commercial / 1 résidentiel) |
| - Local commercial au rez-de-chaussée, ancien bureau de |
| comptable |
| - Vaste zonage commercial offrant plusieurs possibilités |
| d'usage |
| - Local commercial muni de 3 bureaux, un bureau d'accueil, |
| d'une cuisinette et d'une salle de bain |
| - Valeur locative estimée du local commercial : 2 000 $ / |
| mois |
| - Logement résidentiel au 2e étage comprenant 2 chambres |
| - Logement au 2e étage entièrement meublé (sauf |
| réfrigérateur) |
| - Valeur locative estimée du logement : 1 400 $ / mois |
| - Les deux unités sont actuellement vacantes / possession |
| rapide possible |
| - Opportunité idéale pour investisseurs ou propriétaire |
| occupant |
| - Potentiel de revenus bruts annuels estimés à 40 800 $ |
| annuellement |
| - Situé sur une artère principale de Hull, Boul. St Joseph |
| - Excellente visibilité et accessibilité |
| - À distance de marche des 2 pavillons de l'UQO et à |
| quelques minutes d'Ottawa. |
| - Quatre (4) espaces de stationnement |
| - Terrain de coin en face d'un parc |








































