Gatineau (Gatineau)
Description de la propriété
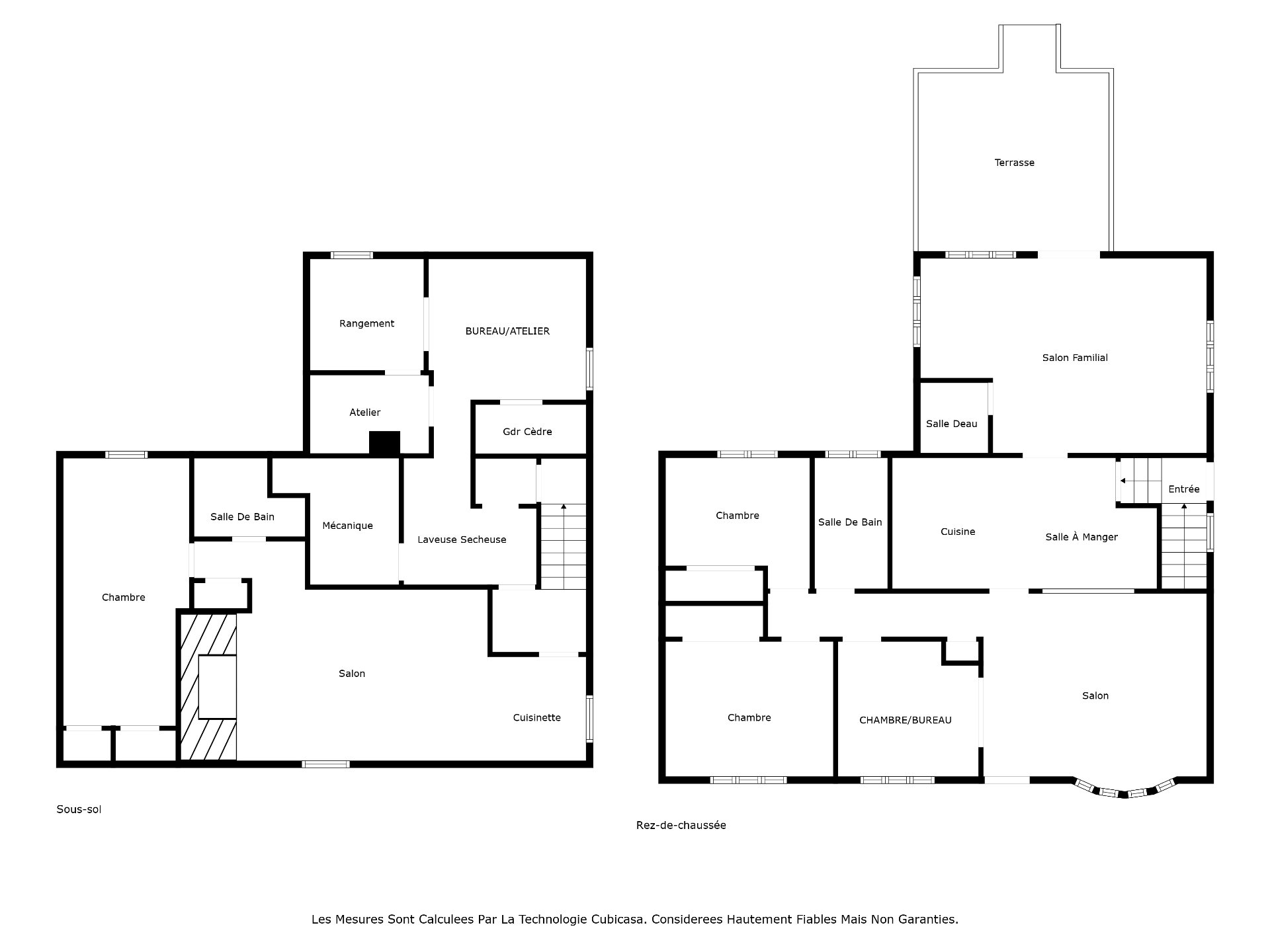
Maison lumineuse et bien entretenue dans le secteur recherché de Saint-Rosaire. Propriété ayant eu un seul propriétaire, offrant 1 240 pi² de superficie habitable sur un terrain de 7 600 pi². Garage détaché 14x24 pi et grande remise. 3 chambres possibles au RDC + 1 au sous-sol, 2 salles de bain complètes et 1 salle d'eau. Cuisinette au sous-sol avec entrée indépendante, idéale pour garderie, bureau ou intergénération. Agrandissement sur fondation de blocs avec sous-sol complet. Emplacement central, près de tous les services! La vente est faite sans garantie légale de qualité, aux risques et périls de l'acheteur.
Détails
Proximité
Cegep, Parc-espace vert, École primaire, École secondaire, Transport en commun, Piste cyclable, Garderie/CPE
Dimension des pièces
| Pièce | Niveau | Dimensions | Couvre plancher |
|---|---|---|---|
| Salon | 1er niveau/RDC | 16.4x13.2 P | Parqueterie |
| Cuisine | 1er niveau/RDC | 9.5x9.6 P | Céramique |
| Salle à manger | 1er niveau/RDC | 9.4x9.5 P | Céramique |
| Chambre à coucher principale | 1er niveau/RDC | 9.8x9.11 P | Plancher flottant |
| Chambre à coucher | 1er niveau/RDC | 10.4x9.3 P | Plancher flottant |
| Chambre à coucher | 1er niveau/RDC | 10.3x9.8 P | Plancher flottant |
| Salle de bains | 1er niveau/RDC | 9.2x4.9 P | Céramique |
| Salle d'eau | 1er niveau/RDC | 4.9x4.8 P | Céramique |
| Salle familiale | 1er niveau/RDC | 20.0x13.8 P | Plancher flottant |
| Cuisine | Sous-sol | 7.6x9.6 P | Céramique |
| Salle familiale | Sous-sol | 13.1x16.0 P | Plancher flottant |
| Chambre à coucher | Sous-sol | 9.2x19.4 P | Plancher flottant |
| Atelier | Sous-sol | 9.0x9.7 P | Bois |
| Salle de bains | Sous-sol | 5.2x4.9 P | Céramique |
| Salle de lavage | Sous-sol | 4.6x6.0 P | Céramique |
| Rangement | Sous-sol | 7.2x8.9 P | Tapis |
| Atelier | Sous-sol | 3.7x8.8 P | Tapis |
| Salle mécanique | Sous-sol | 5.0x8.2 P | Béton |
Taxes et dépenses
| Taxes municipales | 3 568 $ |
| Taxes scolaires | 306 $ |
Bâtiment et intérieur de la propriété
| Chambres | 4 |
| Salles de bain | 2 |
| Salles d'eau | 1 |
| Nombre de pièces | 19 |
| Nombre de chambres hors sol | 3 |
| Nombre de chambres au sous-sol | 1 |
| Aire habitable | 1240 PC |
| Délai d'occupation prévu | 15 jours |
| Éléments inclus lors de la vente | Cuisinière du rdc et sous-sol, lave-vaisselle, meuble encastré dans la chambre à coucher |
| Dimension de la façade du bâtiment | 40 P |
| Dimension de la profondeur du bâtiment | 24 P |
| Superficie du terrain | 712.8 MC |
| Dimension de la façade du terrain | 16.76 M |
| Dimension de la profondeur du terrain | 42.53 M |
| Année de construction | 1971 |
| Évaluation municipale (terrain) | 239 500 $ |
| Évaluation municipale (bâtiment) | 220 100 $ |
| Évaluation municipale (total) | 459 600 $ |
| Année d'évaluation | 2025 |
| Bâtiment irrégulier | Oui |
| Superficie du bâtiment | 1240 PC |
| Terrain irrégulier | Oui |
| Allée | Asphalte |
| Aménagement du terrain | Clôturé |
| Mode de chauffage | Air soufflé, Plinthes électriques |
| Approvisionnement en eau | Municipalité |
| Énergie pour le chauffage | Électricité |
| Équipement disponible | Climatiseur central, Porte de garage électrique |
| Fondation | Béton coulé, Bloc de béton |
| Foyers-poêles | Foyer au bois |
| Garage | Détaché |
| Appareils en location | Chauffe-eau |
| Sous-sol | Totalement aménagé |
| Stationnement | Extérieur, Au garage |
| Système d'égouts | Municipal |
| Toiture | Bardeaux d'asphalte |
| Topographie | Plat |
| Zonage | Résidentiel |
Addendas
| Maison lumineuse et bien entretenue -- secteur Saint-Rosaire |
| Une opportunité rare! Charmante propriété ayant appartenu à |
| un seul propriétaire, située dans un secteur central et |
| recherché de Saint-Rosaire. Offrant une superficie |
| habitable de 1 240 pi², cette maison se distingue par son |
| vaste terrain de 7 600 pi², son aménagement fonctionnel et |
| ses nombreuses possibilités. |
| Caractéristiques principales : |
| Superficie habitable : 1 240 pi² |
| Terrain : 7 600 pi² |
| Garage détaché : 14 x 24 pi |
| Grande remise pour rangement supplémentaire |
| Puits de lumière dans la cuisine apportant une belle |
| lumière naturelle |
| Agrandissement sur fondation de blocs avec sous-sol complet |
| 3 chambres possibles au rez-de-chaussée + 1 au sous-sol |
| 2 salles de bain complètes + 1 salle d'eau |
| Cuisinette au sous-sol avec entrée indépendante sur le côté |
| Idéal pour un logement intergénérationnel, une garderie à |
| domicile ou un bureau à la maison |
| Emplacement privilégié : |
| Située à proximité de tous les services : écoles, parcs, |
| commerces, transports en commun et accès rapide aux grands |
| axes routiers. Un quartier paisible, familial et central. |
| À noter : Cette propriété offre un potentiel unique pour |
| adapter les espaces selon vos projets personnels ou |
| professionnels. Une visite vous convaincra! |
| La vente est faite sans garantie légale de qualité, aux |
| risques et périls de l'acheteur. Un nouveau certificat de |
| localisation est en production. |















































