Gatineau (Aylmer)
Description de la propriété
Superbe jumelé construit en 2012 dans un secteur recherché de Gatineau. Lumineuse et bien divisée, la propriété offre un salon ouvert sur la salle à manger avec accès à la cour, ainsi qu'une cuisine fonctionnelle avec îlot et rangement abondant. Salle d'eau et accès direct au garage au rez-de-chaussée. À l'étage, vaste chambre principale avec walk-in et salle de bain attenante avec douche indépendante. Sous-sol entièrement aménagé avec salle familiale et salle de bain complète. Cour clôturée aménagée. Propriété entretenue par son unique propriétaire, sans animaux. À proximité des services et à quelques minutes d'Ottawa.
Visites libres
Dimanche 3 mai de 14:00 à 16:00Détails
Proximité
Autoroute/Voie rapide, Cegep, Golf, Hôpital, Parc-espace vert, École primaire, École secondaire, Transport en commun, Université, Piste cyclable, Garderie/CPE
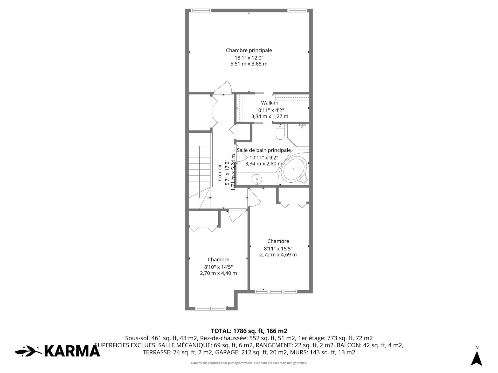
Dimension des pièces
| Pièce | Niveau | Dimensions | Couvre plancher |
|---|---|---|---|
| Salon | 1er niveau/RDC | 10.1x16.1 P | Bois |
| Salle à manger | 1er niveau/RDC | 7.11x12.0 P | Céramique |
| Cuisine | 1er niveau/RDC | 9.2x11.1 P | Céramique |
| Salle d'eau | 1er niveau/RDC | 3.3x6.8 P | Céramique |
| Hall d'entrée | 1er niveau/RDC | 4.7x14.1 P | Bois |
| Chambre à coucher principale | 2ième étage | 18.1x12.0 P | Tapis |
| Salle de bains | 2ième étage | 10.11x9.2 P | Céramique |
| Chambre à coucher | 2ième étage | 8.1x15.5 P | Tapis |
| Chambre à coucher | 2ième étage | 8.10x14.5 P | Tapis |
| Salle familiale | Sous-sol | 18.0x23.1 P | Tapis |
| Salle mécanique | Sous-sol | 5.6x12.6 P | Béton |
| Rangement | Sous-sol | 3.3x6.9 P | Tapis |
| Salle de bains | Sous-sol | 6.1x11.7 P | Céramique |
Taxes et dépenses
| Taxes scolaires | 373 $ |
| Taxes municipales | 4 450 $ |
| Coût d'énergie | 660 $ |
Bâtiment et intérieur de la propriété
| Chambres | 3 |
| Salles de bain | 2 |
| Salles d'eau | 1 |
| Nombre de pièces | 14 |
| Nombre de chambres hors sol | 3 |
| Aire habitable | 162.7 MC |
| Éléments inclus lors de la vente | Réfrigérateur, four, lave-vaisselle, fournaise, laveuse et sécheuse. |
| Éléments exclus lors de la vente | Chauffe-eau (location). |
| Superficie du terrain | 180 MC |
| Dimension de la façade du terrain | 6 M |
| Dimension de la profondeur du terrain | 30 M |
| Année de construction | 2012 |
| Évaluation municipale (terrain) | 95 400 $ |
| Évaluation municipale (bâtiment) | 439 800 $ |
| Évaluation municipale (total) | 535 200 $ |
| Année d'évaluation | 2026 |
| Allée | Asphalte |
| Aménagement du terrain | Clôturé, Paysager |
| Mode de chauffage | Air soufflé |
| Approvisionnement en eau | Municipalité |
| Énergie pour le chauffage | Gaz naturel |
| Équipement disponible | Climatiseur central, Échangeur d'air |
| Fenêtres | PVC |
| Fondation | Béton coulé |
| Garage | Attaché, Simple largeur |
| Appareils en location | Chauffe-eau |
| Salle de bains/salle d'eau | Attenante à la chambre principale |
| Sous-sol | 6 pieds et plus, Totalement aménagé |
| Stationnement | Extérieur, Au garage |
| Système d'égouts | Municipal |
| Type de fenêtre | Coulissante, Manivelle |
| Toiture | Bardeaux d'asphalte |
| Topographie | Plat |
| Zonage | Résidentiel |
Addendas
| Superbe jumelé construit en 2012, idéalement situé dans un |
| secteur recherché de Gatineau. Dès l'entrée, cette |
| propriété soigneusement entretenue par son unique |
| propriétaire séduit par sa luminosité et sa division |
| harmonieuse des espaces. |
| Le salon lumineux s'ouvre sur une salle à manger |
| conviviale, adjacente à la porte patio menant à la cour |
| arrière. La cuisine, fonctionnelle et bien pensée, offre un |
| généreux espace de rangement ainsi qu'un îlot central |
| pratique. |
| Une salle d'eau complète le rez-de-chaussée, de même qu'un |
| accès direct au garage, ajoutant une commodité appréciable |
| au quotidien. À l'étage, la chambre à coucher principale se |
| distingue par ses belles dimensions et son vaste walk-in, |
| ainsi que par sa salle de bain attenante, équipée d'une |
| douche indépendante. |
| Le sous-sol entièrement aménagé propose une grande salle |
| familiale polyvalente, idéale pour répondre aux besoins de |
| toute la famille, en plus d'une salle de bain complète avec |
| installation laveuse-sécheuse. |
| À l'extérieur, profitez d'une cour arrière clôturée et |
| aménagée, parfaite pour vos moments de détente. À noter |
| qu'aucun animal n'a habité la propriété depuis sa |
| construction, un atout recherché pour plusieurs acheteurs. |
| Située à proximité de toutes les commodités essentielles, |
| cette propriété bénéficie également d'un accès rapide aux |
| axes routiers et se trouve à seulement quelques minutes du |
| centre-ville d'Ottawa, facilitant vos déplacements |
| quotidiens. |





































