Gatineau (Aylmer)
Description de la propriété
Située dans le prisé quartier Champlain, cette propriété exceptionnelle offre un cadre de vie unique sur un terrain privé de 1,42 acre, sans voisin à l'arrière et entourée d'arbres matures et cabane a sucre(sur terrain de la ville. La maison, pleine de cachet, compte quatre avec possibilité de cinq chambres à coucher et propose des planchers de bois franc et de céramique au rez-de-chaussée. Les pièces communes, vastes et baignées de lumière naturelle, comprennent un salon avec un élégant espace bar et de magnifiques poutres en bois d'origine, ainsi qu'une cuisine récente chaleureuse avec coin repas et armoires en bois comptoir de porcelaine.
Détails
Proximité
Autoroute/Voie rapide, Golf, Parc-espace vert, Piste cyclable, Ski de fond
Dimension des pièces
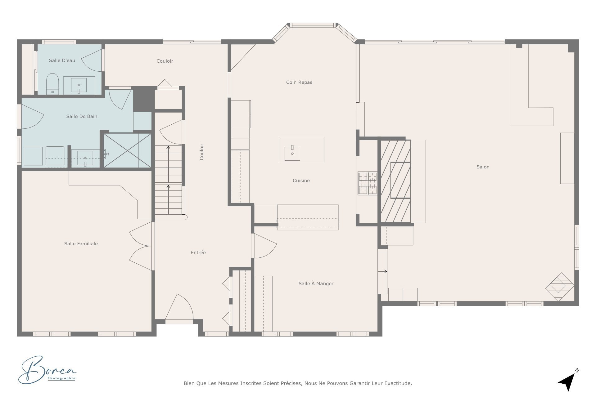
| Pièce | Niveau | Dimensions | Couvre plancher |
|---|---|---|---|
| Hall d'entrée | 1er niveau/RDC | 6.10x8 P | Céramique |
| Salon | 1er niveau/RDC | 13.11x17.8 P | Bois |
| Salle à manger | 1er niveau/RDC | 11.10x13.2 P | Bois |
| Cuisine | 1er niveau/RDC | 8.11x15.6 P | Céramique |
| Coin repas | 1er niveau/RDC | 11.5x13.8 P | Céramique |
| Salle familiale | 1er niveau/RDC | 20x20.7 P | Bois |
| Salle d'eau | 1er niveau/RDC | 5x7 P | Céramique |
| Salle de lavage | 1er niveau/RDC | 7x12.7 P | Céramique |
| Chambre à coucher principale | 2ième étage | 17.6x21.8 P | Bois |
| Chambre à coucher | 2ième étage | 9.10x14.11 P | Plancher flottant |
| Chambre à coucher | 2ième étage | 9.9x12.7 P | Linoléum |
| Salle d'eau | 2ième étage | 3.10x6.7 P | Céramique |
| Chambre à coucher | 2ième étage | 10x12.2 P | Bois |
| Salle de bains | 2ième étage | 9.5x13.6 P | Céramique |
| Chambre à coucher | 2ième étage | 10.2x12 P | Plancher flottant |
| Salle de bains | 2ième étage | 6.1x9.8 P | Céramique |
| Salle de jeux | Sous-sol | 13.4x29.3 P | Céramique |
| Salle familiale | Sous-sol | 13.5x19 P | Céramique |
| Salle d'eau | Sous-sol | 5.4x6.1 P | Céramique |
| Atelier | Sous-sol | 7.11x10.9 P | Céramique |
| Rangement | Sous-sol | 5.7x22 P | Béton |
| Salle mécanique | Sous-sol | 9.11x14.11 P | Béton |
Taxes et dépenses
| Taxes scolaires | 720 $ |
| Taxes municipales | 7 477 $ |
| Coût d'énergie | 5 850 $ |
Bâtiment et intérieur de la propriété
| Chambres | 5 |
| Salles de bain | 3 |
| Salles d'eau | 2 |
| Nombre de pièces | 22 |
| Nombre de chambres hors sol | 5 |
| Aire habitable | 3470 PC |
| Délai d'occupation prévu | 62 jours |
| Éléments inclus lors de la vente | Réfrigérateur, lave-vaisselle, poêle au propane, stores, hot tub (en fin de vie), table de pool, Chauffe-eau |
| Éléments exclus lors de la vente | Fixtures de TV, réservoir de propane en location |
| Dimension de la façade du bâtiment | 32 P |
| Dimension de la profondeur du bâtiment | 61 P |
| Superficie du terrain | 61980 PC |
| Dimension de la façade du terrain | 67 P |
| Dimension de la profondeur du terrain | 437 P |
| Année de construction | 1976 |
| Évaluation municipale (terrain) | 317 600 $ |
| Évaluation municipale (bâtiment) | 762 600 $ |
| Évaluation municipale (total) | 1 080 200 $ |
| Année d'évaluation | 2025 |
| Bâtiment irrégulier | Oui |
| Superficie du bâtiment | 1855 PC |
| Terrain irrégulier | Oui |
| Allée | Asphalte, Double largeur ou plus |
| Aménagement du terrain | Paysager |
| Armoires | Bois |
| Mode de chauffage | Air soufflé |
| Approvisionnement en eau | Puits artésien |
| Énergie pour le chauffage | Électricité |
| Fenêtres | PVC |
| Fondation | Béton coulé |
| Foyers-poêles | Foyer au bois, Poêle à bois, Foyer au gaz |
| Garage | Attaché, Double largeur ou plus |
| Revêtements | Granulat (agrégat), Pierre |
| Particularités | Boisé |
| Sous-sol | 6 pieds et plus, Totalement aménagé |
| Stationnement | Extérieur, Au garage |
| Système d'égouts | Champ d'épuration, Fosse septique |
| Toiture | Bardeaux d'asphalte |
| Topographie | Plat |
| Zonage | Résidentiel |
Addendas
| Cette demeure offre un confort de vie exceptionnel, alliant |
| charme, espace et chaleur. Plusieurs foyers au bois |
| ajoutent à l'ambiance chaleureuse, notamment dans la salle |
| de séjour, la chambre principale (foyer non fonctionnel) |
| ainsi que dans la salle familiale du sous-sol. Un poêle au |
| gaz trône fièrement au salon, créant un lieu de détente |
| idéal pour les soirées d'hiver. |
| La chambre principale propose un véritable espace de |
| tranquillité avec sa salle de bains attenante et privée. |
| Pour encore plus de commodité, une salle d'eau récemment |
| rénovée est également située au rez-de-chaussée, offrant un |
| parfait équilibre entre fonctionnalité et raffinement. |
| Le sous-sol, entièrement aménagé, propose une vaste salle |
| de jeux, une salle familiale accueillante, ainsi que de |
| nombreux espaces de rangement bien pensés pour répondre aux |
| besoins de toute la famille. |
| À l'extérieur, la propriété ne cesse d'impressionner. Un |
| garage double intégré permet un stationnement pratique et |
| sécurisé. La cour arrière, soigneusement aménagée, est un |
| véritable havre de paix : elle comprend un grand patio en |
| pavé uni, idéal pour les réceptions estivales, ainsi qu'un |
| aménagement paysager professionnel qui rehausse le cachet |
| de la maison. |
| Un atout unique complète cette propriété d'exception : à |
| l'arrière du terrain, une charmante cabane à sucre est |
| nichée sur une parcelle appartenant à la Ville, offrant une |
| touche rustique et authentique qui rappelle la beauté |
| naturelle du Québec. Elle constitue un décor enchanteur et |
| une rareté dans le secteur. |
| Cette propriété coup de coeur marie parfaitement le confort |
| moderne à l'élégance intemporelle, dans un environnement |
| paisible et recherché. Une occasion unique à ne pas manquer. |

































































