Gatineau (Gatineau)
Description de la propriété
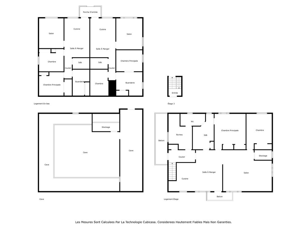
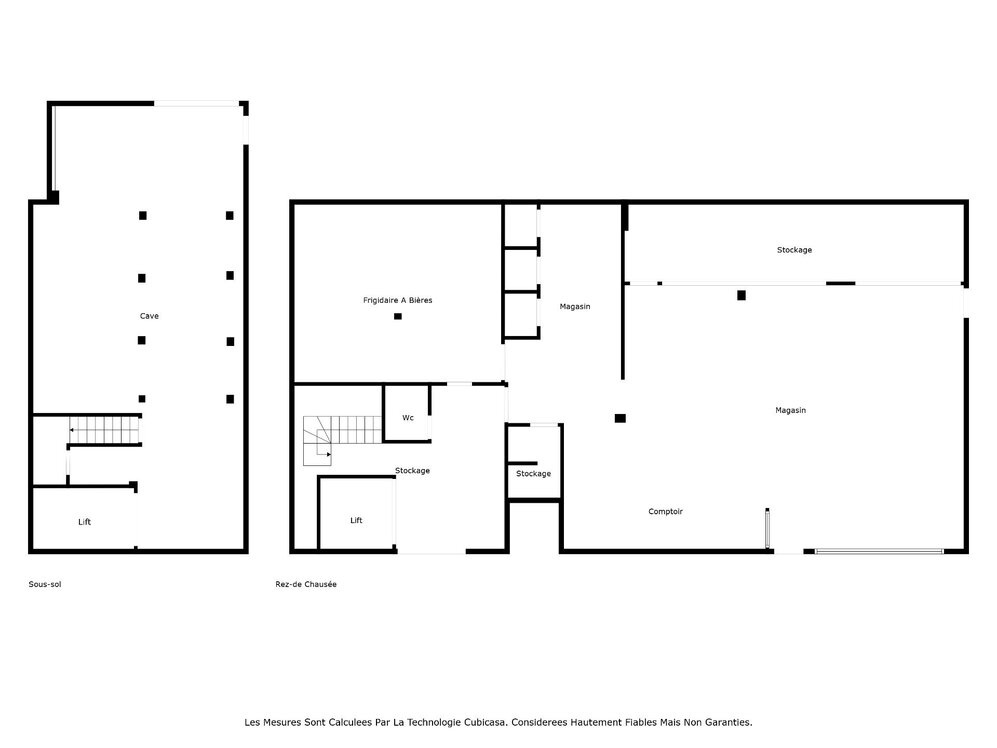
Opportunité d'affaire, devenez propriétaire de immeuble et d'un dépanneur très bien établi depuis plusieurs années offrant un excellent chiffre d'affaire. D'une propreté impeccable et tous y est bien pensé, espace plancher utilisé d'environ 1600 p.c. . Espace de rangement d'environ 2400 p.c., lift élevateur, plusieurs inclusions donnant une bonne valeur et flexibilité avec vos fournisseurs. Grand stationnement et très facile d'accès sur une voie publique très achalandée. Aussi avec des revenus de 31 800$ annuellement pour les trois logements. Très bien entretenu au fils des années.
Détails
Proximité
Autoroute/Voie rapide, Transport en commun
Taxes et dépenses
| Taxes municipales | 14 079 $ |
| Taxes scolaires | 555 $ |
Bâtiment et intérieur de la propriété
| Délai d'occupation prévu | 30 jours |
| Éléments inclus lors de la vente | Réfrigérateur à deux portes (Coke), réfrigérateur à trois portes, réfrigérateur à deux portes (vin blanc), congélateur intérieur pour la glace, congélateur pour produits congelés, chariot élévateur électrique, deux chariots manuels, système informatique, |
| Éléments exclus lors de la vente | L'inventaire. Liste à fournir Contrats de service et de location visant les appareils et équipements devant être pris en charge par l'acheteur.Liste sera fournie avec entente de confidentialité. |
| Dimension de la façade du bâtiment | 20.62 M |
| Superficie du terrain | 1537.5 MC |
| Dimension de la façade du terrain | 26.82 M |
| Année de construction | 1962 |
| Évaluation municipale (terrain) | 357 400 $ |
| Évaluation municipale (bâtiment) | 513 800 $ |
| Évaluation municipale (total) | 871 200 $ |
| Année d'évaluation | 2025 |
| Bâtiment irrégulier | Oui |
| Superficie du bâtiment | 2400 PC |
| Terrain irrégulier | Oui |
| Allée | Asphalte |
| Mode de chauffage | Plinthes électriques |
| Approvisionnement en eau | Municipalité |
| Énergie pour le chauffage | Électricité |
| Équipement disponible | Climatiseur mural |
| Fondation | Béton coulé, Bloc de béton |
| Genre de commerce | Dépanneur |
| Revêtements | Aluminium, Vinyle |
| Sous-sol | 6 pieds et plus, Entrée indépendante, Non aménagé |
| Stationnement | Extérieur |
| Système d'égouts | Municipal |
| Type de commerce/Industrie | Detail, Grossiste |
| Toiture | Bardeaux d'asphalte, Membrane élastomère |
| Zonage | Commercial, Résidentiel |














































