Gatineau (Hull)
Description de la propriété
Élégante propriété au coeur de Hull, nichée dans un quartier prisé où se marient tranquillité et vie urbaine. Rénovée avec des matériaux de qualité, cette demeure de deux étages propose un style de vie raffiné et pratique. Elle offre trois chambres, un bureau, un salon aux hauts plafonds ainsi qu'une cuisine et salle à manger fonctionnelle. Une superbe addition arrière crée un espace lumineux avec vue sur la cour privée et paysagée. Deux salles de bains complètes et une pratique salle de lavage à l'étage. La maison offre beaucoup de rangement. À proximité de tout les services et commodités. Une occasion à ne pas manquer!
Détails
Proximité
Cegep, Hôpital, École primaire, École secondaire, Transport en commun, Garderie/CPE
Dimension des pièces
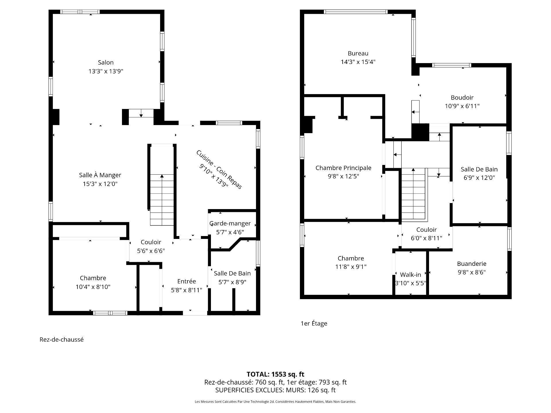
| Pièce | Niveau | Dimensions | Couvre plancher |
|---|---|---|---|
| Hall d'entrée | 1er niveau/RDC | 5.8x8.1 P | Bois |
| Salle de bains | 1er niveau/RDC | 5.7x8.9 P | Céramique |
| Cuisine | 1er niveau/RDC | 9.1x13.9 P | Bois |
| Salle à manger | 1er niveau/RDC | 15.3x12 P | Bois |
| Salon | 1er niveau/RDC | 13.3x13.9 P | Bois |
| Chambre à coucher | 1er niveau/RDC | 10.4x8.1 P | liège |
| Chambre à coucher | 2ième étage | 11.8x9.1 P | Bois |
| Chambre à coucher principale | 2ième étage | 9.8x12.5 P | Bois |
| Bureau à domicile | 2ième étage | 14.3x15.4 P | Bois |
| Boudoir | 2ième étage | 10.9x6.1 P | Bois |
| Salle de bains | 2ième étage | 6.9x12 P | Bois |
| Salle de lavage | 2ième étage | 9.8x8.6 P | Céramique |
Taxes et dépenses
| Taxes scolaires | 269 $ |
| Taxes municipales | 3 216 $ |
| Coût d'énergie | 156 $ |
Bâtiment et intérieur de la propriété
| Chambres | 3 |
| Salles de bain | 2 |
| Nombre de pièces | 14 |
| Nombre de chambres hors sol | 3 |
| Aire habitable | 1831 PC |
| Délai d'occupation prévu | 30 jours |
| Éléments inclus lors de la vente | Lave-vaiselle, bibliothèque au bureau du 2e étage, télévision et support dans la cuisine, micro-ondes hotte, luminaires ( sauf celui de la salle à manger), stores, table et chaises dans la cuisine, tablettes visées aux murs |
| Éléments exclus lors de la vente | rideaux et pôles, luminaire de la salle à manger, chauffe eau en location. |
| Dimension de la façade du bâtiment | 13.24 M |
| Dimension de la profondeur du bâtiment | 8.24 M |
| Superficie du terrain | 4598 PC |
| Dimension de la façade du terrain | 15.24 M |
| Dimension de la profondeur du terrain | 28.04 M |
| Année de construction | 1949 |
| Évaluation municipale (terrain) | 216 300 $ |
| Évaluation municipale (bâtiment) | 176 900 $ |
| Évaluation municipale (total) | 393 200 $ |
| Année d'évaluation | 2022 |
| Superficie du bâtiment | 946 PC |
| Allée | Asphalte |
| Approvisionnement en eau | Municipalité |
| Appareils en location | Chauffe-eau |
| Revêtements | Brique, Stuc |
| Salle de bains/salle d'eau | Douche indépendante |
| Sous-sol | Aucun sous-sol |
| Stationnement | Extérieur |
| Système d'égouts | Municipal |
| Toiture | Bardeaux d'asphalte |
| Topographie | Plat |
| Zonage | Résidentiel |
Addendas
| Située dans l'un des quartiers les plus recherchés de Hull, |
| combinant parfaitement tranquillité, accessibilité et |
| charme urbain. |
| - Résidence rénovée avec des matériaux haut de gamme, |
| assurant confort, esthétique et durabilité. |
| - Agrandissement professionnelle conçue par un architecte |
| pour optimiser l'espace de vie. |
| - Offre 3 chambres à coucher de belles dimensions ainsi |
| qu'un bureau idéal pour le télétravail, la création ou |
| l'étude. |
| - Grandes fenêtres laissant entrer une lumière abondante et |
| offrant une vue imprenable sur la cour paysagée, créant une |
| ambiance paisible. |
| - La maison offre beaucoup de rangement |
| - Deux salles de bains complètes au design soigné, avec |
| finitions de qualité. |
| - Salle de lavage à l'étage, un atout rare offrant une |
| fonctionnalité au quotidien. |
| - Cour arrière magnifiquement aménagée et intime, idéale |
| pour la détente, les repas extérieurs ou des moments de |
| convivialité. |
| - Secteur recherché, à distance de marche de nombreux |
| services : |
| * Écoles, parcs, commerces, restaurants |
| * Transport en commun et pistes cyclables |
| * Accès rapide au centre-ville de Gatineau et d'Ottawa |
| - Propriété idéale pour les amateurs de maisons de |
| caractère souhaitant bénéficier du meilleur de la vie |
| urbaine et de l'élégance d'un quartier mature. |













































